查看完整案例


收藏

下载
© Studio Bauhaus, Ryuji Inoue
(C)Bauhaus工作室,Inoue Ryuji
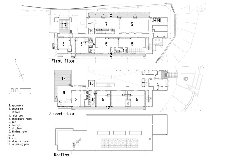
架构师提供的文本描述。该地块位于住宅开发的北部,距苗县慈州市约10公里。
Text description provided by the architects. The site is located at north of housing development, which is about 10 kilometers from Tsu City in Mie Prefecture.
这是一个充满自然和绿色的地区,你可以感受到季节的变化,如田野,池塘,森林和其他,此外,舒适的风吹。
It is an area surrounded by sufficient nature with green where you can feel change of season such as field, pond, forest, woods and others, and in addition, comfortable wind blows.
© Studio Bauhaus, Ryuji Inoue
(C)Bauhaus工作室,Inoue Ryuji
© Studio Bauhaus, Ryuji Inoue
(C)Bauhaus工作室,Inoue Ryuji
对于居住在这个地区的人来说,他们可以从这个地方看到的田野、池塘和树木不是特别的,而是靠近他们的。随着季节的变化,他们可以感受到大自然的变化,这教会了孩子们一年中各种不同的事实。夏天,田野里到处都是水,秋天树木变红,冬天下雪,春天开始开花。在这个项目中,我们强调,这些自然感受到的风景是深深地输入到孩子们的身体中,他们是通过经验来学习的。
For those who live in this area, the field, pond and trees they can see from the site are not special but close to them. The change of the nature they can feel by season teaches children variable facts throughout a year. In summer, water spreads in the field, trees turn red in autumn, snow falls in winter and flowers start blooming in spring. In this project, we emphasized that this scenery they feel naturally is input into the body of the children deeply and they learn by experience.
© Studio Bauhaus, Ryuji Inoue
(C)Bauhaus工作室,Inoue Ryuji
在餐厅里,一个大窗户被设置在两个阶段,在那里他们可以看到风景,如田野和池塘。在这样的环境下,他们可以在一年中看到风景的变化而享受美食。在前面,设置了一个露台,他们可以通过感受阳光和皮肤上的风来吃午餐,就像他们在美好的日子里野餐一样。为了激发孩子们的想像力,在大厅里,我们随意地放了一盏灯,就像他们从这里看到的星座一样。通过自己发现星座,互相教导,他们发展了发现的喜悦,探索的头脑和好奇心。在大厅的露台顶部设计了蓄水装置,并利用汽化热将冷空气带入建筑物。在夏天炎热的日子里,它被用作阿什米祖(踏入水中降温),在那里他们可以有乐趣,从而他们可以生活而不依赖空调。
In dining room, a large window is set at two phases where they can see the scenery such as the field and pond. By this setting, they can enjoy eating while seeing change of the scenery throughout a year. At front, a terrace is set, and they can have lunch by feeling sunlight and wind at their skin as if they were having a picnic on nice day. To stimulate imagination of the children, in the hall, we set a light at random as if it were constellation they can see from here. By discovering the constellation by themselves and teaching each other, they develop joy of discovery, mind of searching and curiosity. A device of accumulating water is designed on top of the terrace in the hall, and cooled air is brought into the building by using vaporization heat. On hot days in summer, it is used as an Ashimizu (putting foot in the water to cool down) where they can have fun, and thereby they can live without relying on air conditioner.
© Studio Bauhaus, Ryuji Inoue
(C)Bauhaus工作室,Inoue Ryuji
作为发展一个地区和建立一个社区的场所,我们创建了一个支持抚养儿童的地方。它的目的不仅是减轻抚养子女有问题的父母的照顾儿童的压力,而且母亲和该地区的母亲可以很容易地相互沟通。这个空间就像一个开放的咖啡厅,让游客感到轻松,并提供了一个他们可以方便地进行咨询的环境。
As a place for developing an area and establishing a community, we created a place where raising of the children is supported. Its purpose is not only to reduce stress of child care of the parent who has a problem in raising children but also mothers and those in the area can communicate each other easily. The space as if it were an open café lounge makes visitors feel relaxed and provides an environment where they can easily consult.
© Studio Bauhaus, Ryuji Inoue
(C)Bauhaus工作室,Inoue Ryuji
在花园里种了各种各样的树,如结果实的树。他们把这些水果带到厨房,自己煮,然后吃。通过这种经历,他们培养了敏感性、好奇心和求知欲。
In the garden, a variety of trees such as the one producing fruit are planted. They bring this fruit to the kitchen, cook it by themselves and eat. By this experience, they develop sensitivity, curiosity and mind of searching.
© Studio Bauhaus, Ryuji Inoue
(C)Bauhaus工作室,Inoue Ryuji
© Studio Bauhaus, Ryuji Inoue
(C)Bauhaus工作室,Inoue Ryuji
最近,由于有许多游戏,他们不使用他们的身体在建筑物,他们缺乏各种经验,他们需要的时候,他们长大了。它导致越来越多的儿童不能很好地与他人沟通。在这个项目中,我们创造了这样一个环境:当他们看到美的时候,他们就会有美丽的感觉;当他们吃美味的食物时,他们会感觉到美味。我们创造了一个环境,让他们通过自己的经历,一直感受到大自然对他们皮肤的丰富。
Recently, as there are numerous plays where they do not use their body in the building, they lack a variety of experiences they need when they are growing up. It leads to increase of children who cannot communicate with others well. In this project, we created an environment where they develop the mind that they feel beautiful when they see the beauty and feel delicious when they eat delicious food by creating an environment where they feel bounty of nature at their skin all the time through their experience.
© Studio Bauhaus, Ryuji Inoue
(C)Bauhaus工作室,Inoue Ryuji
© Studio Bauhaus, Ryuji Inoue
(C)Bauhaus工作室,Inoue Ryuji
Architects HIBINOSEKKEI, Youji no Shiro
Location Mie Prefecture, Japan
Category Kindergarten
Area 1242.37 sqm
Project Year 2016
客服
消息
收藏
下载
最近




































