查看完整案例

收藏

下载
Concursul pentru extinderea Centrului de Cultură Arhitecturală al UAR CORPUL BIBLIOTECĂ-ARHIVE
Alexandru PANAITESCU
Posibilitatea extinderii a fost de la început unul din argumentele importante care, în anul 2010, au fundamentat decizia Uniunii Arhitecților din România de cumpărare a imobilul din strada Jean Louis Calderon, nr. 48, monument istoric în stil neogotic, datând din jurul anului 1900, în vederea constituirii Centrului de Cultură Arhitecturală. Pe lângă desfășurarea de evenimente culturale din domeniul arhitecturii (expoziții, întâlniri profesionale, conferințe etc.), cât și pentru funcționarea publicaților UAR, acesta s-a dorit să asigure spații corespunzătoare pentru punerea în valoare și conservarea patrimoniului mobil, incluzând bunuri moștenite încă de la Societatea Arhitecților Români și completat în ultimele decenii prin achiziții ale UAR, dar și cu donații ale membrilor săi.
În mare parte, patrimoniul cultural mobil al UAR este format din: biblioteca UAR (circa 14.000 de volume, cărți și reviste, din care circa 1.000 de volume cărți și reviste vechi și rare, anterioare anului 1945); arhivele de proiecte ale unor arhitecți (donate sau depuse în custodie la UAR); arhivele de documente ale UAR; fototeca UAR, inclusiv a revistei „Arhitectura” (fondată în 1906); panourile unor expoziții de arhitectură; colecția de obiecte de artă și de mobilier, inclusiv de machete. În prezent, mare parte din bibliotecă ocupă, destul de restricționat, spații nerelaționate funcțional între ele, de la subsolul, parterul și etajul I al corpului principal de clădire din str. J. L. Calderon nr. 48. Arhivele documentelor UAR sunt adăpostite într-o anexă parter aflată pe latura posterioară a aceleiași incinte din str. J. L. Calderon. Arhivele de proiecte, cât și o parte, destul de importantă, din arhivele documentelor UAR sunt depozitate în continuare în spații improprii, închiriate într-un alt imobil din Calea Victoriei nr. 126, alături de materiale valoroase de la foste expoziții de arhitectură, machete etc.
Dată fiind situația menționată, se impunea ca necesară realizarea unei extinderi a sediului Centrului de Cultură Arhitecturală, care să cuprindă spații special construite și amenajate pentru bibliotecă și arhivele tehnice, care să ofere condiții adecvate pentru cercetarea și consultarea acestui patrimoniu.
Pentru a selecționa un proiect pentru acest obiectiv arhitectural, în 27 februarie 2015, Senatul Uniunii Arhitecților din România a hotărât lansarea unui concurs public de arhitectură, într-o singură fază. Concursul a fost deschis pentru toți arhitecții din România, cu dreptul de semnătură activ și care profesează în birouri individuale de arhitectură, asocieri constituite de birouri individuale de arhitectură, precum și persoane juridice (societăți comerciale de proiectare), fie individual, fie în asociere.
Concursul a fost lansat în data de 24 martie 2015, având la bază o temă îndelung studiată, mai ales pentru definirea limitelor amplasamentului noii construcții, având în vedere condițiile existente în teren și restricționările urbanistice ale zonei impuse prin PUZ-zone protejate, cât și prin alte documentații de urbanism anterioare concursului, dar care nu mai erau valabile la data lansării acestuia. Problemele ridicate de amplasament, dar și cele funcționale sau de încadrare într-un mediu construit caracterizat de o mare specificitate au constituit, în mod sigur, pietrele de încercare pe care le-au avut de depășit cele 47 de echipe concurente admise în jurizare, la care se mai adaugă alte două echipe descalificate din motive procedurale.
Predarea proiectelor a avut loc în data de 16 iunie 2015, ora 16.00, iar jurizarea s-a desfășurat în zilele de 24, 25 și 26 iunie 2015, în sala de expoziție a UAUIM, unde au fost prezentate public până în 3 iulie 2015 proiectele participante, dată când s-a desfășurat și festivitatea de premiere a câștigătorilor.
Deoarece proiectele intrate în concurs nu au răspuns integral cerințelor temei de proiectare, juriul, format din prof. dr. arh. Peter Derer, președintele juriului, prof. dr. arh. Mircea Ochinciuc, prof. dr. arh. Zeno Bogdănescu, conf. dr. arh. Radu Teacă, conf. dr. arh. Dan Marin, arh. Ion Popușoi și ing. Dragoș Marcu, a decis redistribuirea bugetului de premiere, acordând un premiu și trei mențiuni de valoare egală, dar ierarhizate, după cum urmează:
Premiu – 2.000 euro
Proiectul nr. 86, autor: BIA arh. Alexandra Maria Afrăsinei; coautor: arh. Cornelia Maria Țuglui, colaborator: arh. Alina Cristea.
Mențiunea I – 1.000 euro
Proiectul nr. 88, autor: ENE+ENE ARHITECTURA SRL; arh. Mihai Ene; coautor: arh. Adela Ene.
Mențiunea II – 1.000 euro
Proiectul nr. 55, autor: CRIȘAN ARCHITECTURE & ENGINEERING SRL; arh. Alexandru Crișan; coautori: arh. Ana-Maria Crișan, arh. Ioana Turcanu; colaborator: arh. Tudor Vasiliu.
Mențiunea III – 1.000 euro
Proiectul nr. 54, autor: ENTERPRISE architecture & design SRL; arh. Carmen Tănase; coautor: arh. Andreea Bogdan; colaborator: stud.-arh. Denisa Bădoi.
În ansamblu, juriul a apreciat participarea relativ numeroasă și interesul concurenților, diversitatea soluțiilor și ținuta generală a proiectelor. Din analiza acestora, juriul a constatat însă următoarele:
subdimensionarea spațiilor necesare arhivei; comandări funcționale nepotrivite; ignorarea unor norme specifice spațiilor de bibliotecă; neglijarea unor exigențe de natură tehnică; interes scăzut față de adoptarea unor soluții moderne (construcție pasivă, energie regenerabilă);
expresia arhitecturală nu reflectă logica interacțiunii exterior-interior, caracter inadecvat funcțiunii de bibliotecă; lipsa preocupării pentru coerența finală a întregului ansamblu; soluții structurale ale subsolului și relații cu vecinătățile fără a se ține seama de dimensiunile reale necesare în execuție.
În final, trebuie apreciat că la buna desfășurare a concursului au contribuit, în primul rând, participarea relativ numeroasă, dar și sprijinul primit în organizarea sa din partea UAUIM, care a oferit gratuit spațiul pentru desfășurarea jurizării și expunerii proiectelor, cât și Filialei București a OAR, care a pus la dispoziție unele facilități curente necesare, de asemenea, jurizării, motiv pentru care le exprimăm cuvenitele mulțumiri.
arh. Alexandru Panaitescu, Comisar concursuri UAR
Premiu
text: Alexandra AFRĂSINEI, Cornelia Maria ȚUGLUI
Fațada dinspre strada Jean Louis Calderon;
Integrare în context
Prin problematică și constrângeri, contextul cu valoare istorică și arhitecturală indică o serie de direcții de intervenție ce implică raportarea la vecinătăți și relația cu casa monument, sediu al Uniunii Arhitecților. Direcția de intervenție pe care o propunem reprezintă o alternativă la introducerea unui nou volum construit alipit la limitele de proprietate și la construcția monument istoric, prin inserția unui volum detașat care se articulează punctual cu clădirea existentă. Prin detașare, materialitate și lumină volumul din sticlă translucidă încearcă să mențină un raport de subordonare față de clădirea monument istoric. Acest rol secundar asumat, de extindere, al noii inserții este întărit de proporții, înălțime și de retragerea față de limite, menținându-și un caracter discret și încercând să se integreze imaginii de ansamblu a întregului context.
Intervenția se caracterizează prin dispunerea a două corpuri articulate – funcțiunile principale se organizează în volumul central, translucid și detașat, în timp ce funcțiunile complementare sunt preluate de un corp secundar, alipit construcției existente. Astfel, închiderea sitului pe latura nord-est se face printr-un corp de aceeași înălțime ce preia caracterul clădirii monument la nivel de finisaje și textură.
Lumina reprezintă un factor determinant atât în organizarea spațiului, cât și prin perspectiva modalității de intervenție în sit, întrucât coaja din sticlă translucidă, permeabilă vizual, permite ca prin modul în care se inserează în spațiul îngust să nu obtureze vecinătățile. Pe de altă parte, funcțiunea necesită un spațiu intens luminos, dar care să mențină cărțile și obiectele expuse protejate de lumina directă.
Raportarea la clădirea monument istoric se face printr-un detaliu discret la nivelul fațadelor, generat de alternanța transparenței și a translucidității cojii de sticlă în funcție de compoziția fațadei casei existente. Sticla translucidă devine transparentă în zonele de apropiere cu clădirea monument, raportându-se în mod diferit, în funcție de vecinătăți și de nevoia de lumină.
Coaja exterioară a volumului, din sticlă translucidă, filtrează lumina care inundă spațiul și, împreună cu pardoseala reflectantă, generează un joc de imagini indirecte și filtrate, un joc al siluetelor de vegetație și al percepției. Spațiul interior este învăluit de această lumină difuză și creează un mediu omogen ce induce o stare favorabilă lecturii.
Organizare spațială
Organizarea spațială a propunerii depinde de context și de raportarea la vecinătăți, pe de o parte, așa cum am prezentat anterior, și, pe de altă parte, funcțiunea propriu-zisă a bibliotecii este cea care va determina configurația spațială interioară. O serie de spații concentrice cu caracter centripet se înfășoară către nucleul central – spațiul intermediar perimetral exterior, coaja de sticlă translucidă, zona de lectură și biblioteca, primul strat care se înfășoară peste circulația verticală aflată în miezul nucleului.
Astfel, spațiul interior se organizează în jurul nucleului central, care are atât rol funcțional, cât și structural, cu structură metalică, fiind alcătuit din rafturi fixe destinate depozitării vizibile (și ușor accesibile) a cărților. Circulația verticală reprezintă miezul nucleului (lift transparent și scară metalică), având continuitate pe toată înălțimea volumului principal. Spațiul generat de nucleul central și coaja exterioară, din punct de vedere funcțional, se organizează ca un spațiu deschis, fluid și omogen, iar dispunerea flexibilă a elementelor de mobilier modulare depinde de tipul activităților.
Relația cu exteriorul se face în mod diferențiat. Astfel, parterul, care cuprinde cafeneaua și cartoteca digitală, permite deschiderea spre toate laturile, generând o relație directă cu spațiile exterioare, cu caracter intim, create între clădire și limite. Subsolul va comunica prin intermediul luminatoarelor dispuse perimetral cu curtea exterioară, iar nivelurile superioare vor avea o relație indirectă prin intermediul stratului exterior din sticlă translucidă.
Raportul cu contextul, relația de subordonare față de clădirea monument istoric, lumina și funcțiunea în sine a bibliotecii au reprezentat factorii determinanți ai soluției noii inserții.
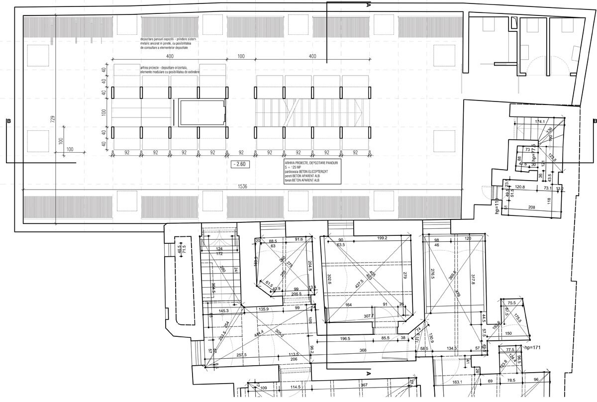
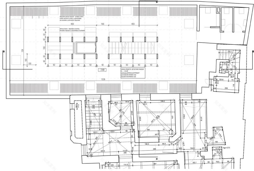
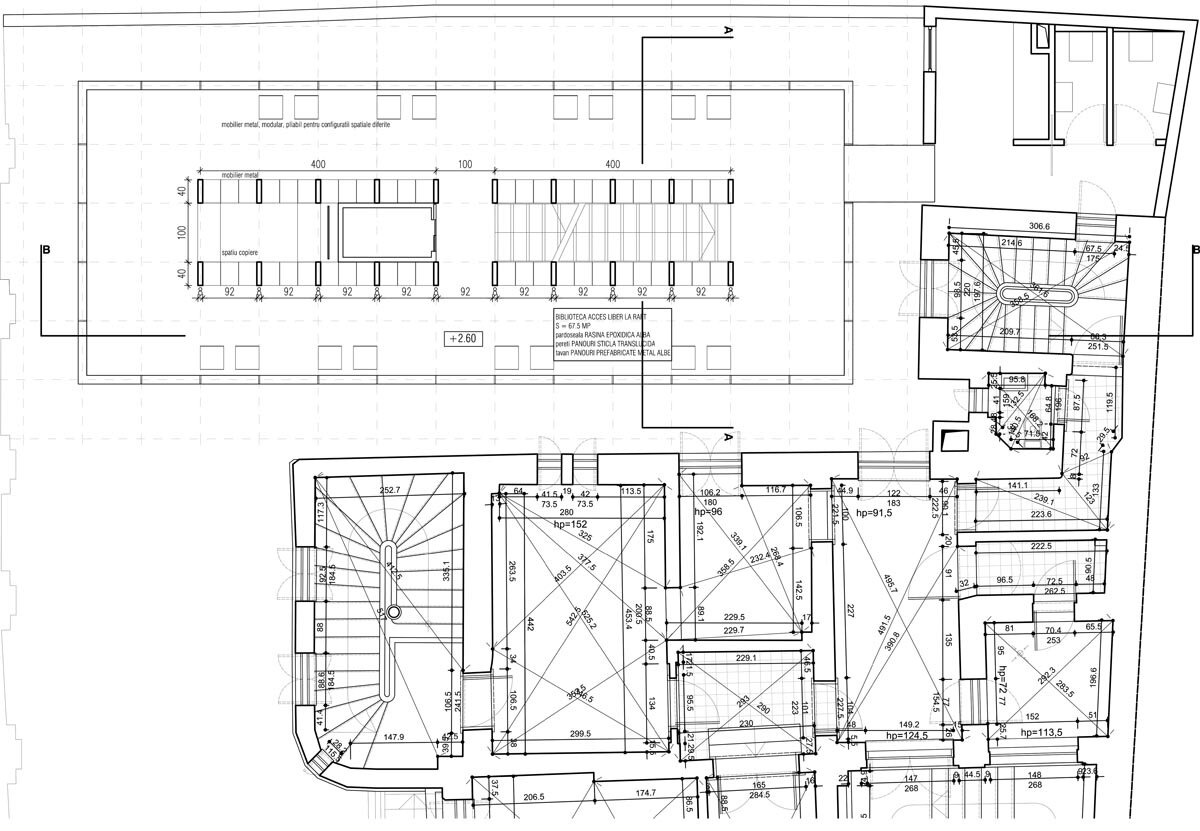
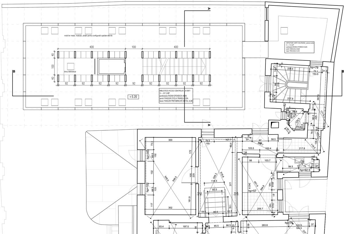
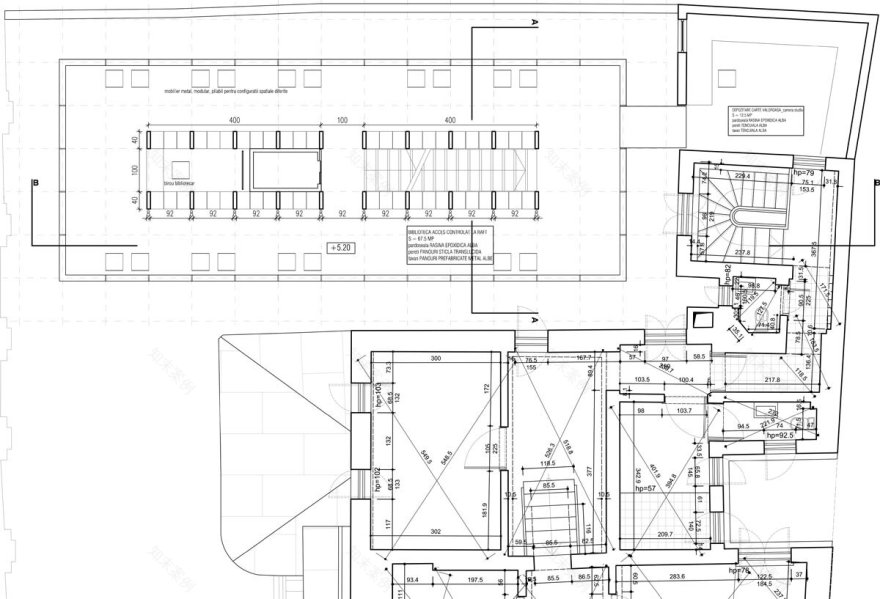
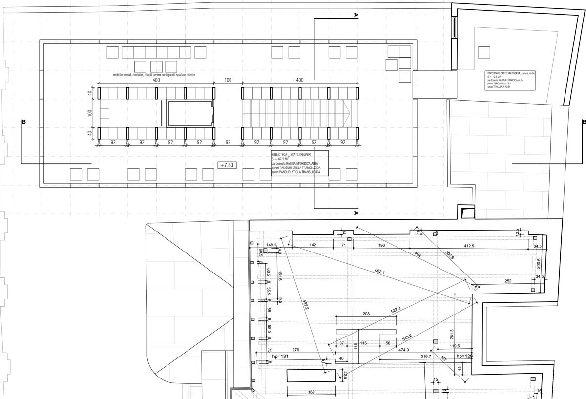
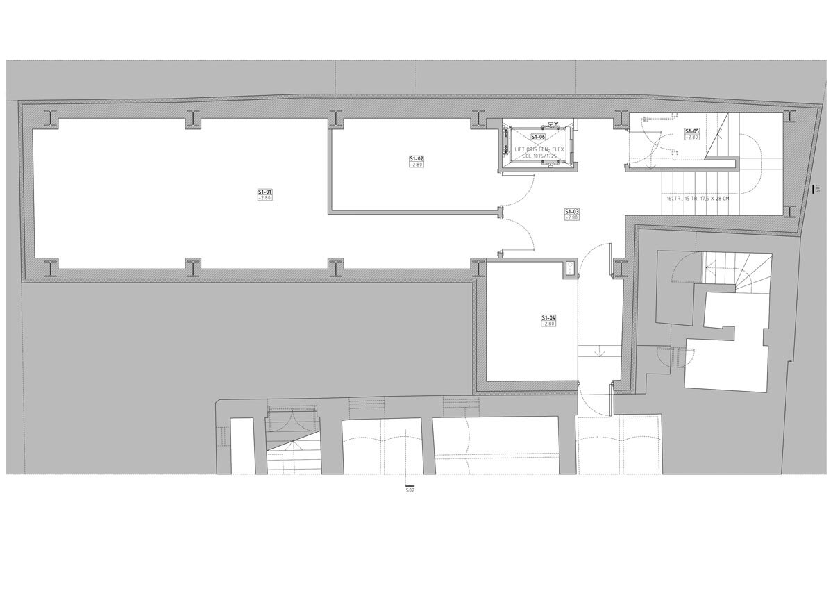
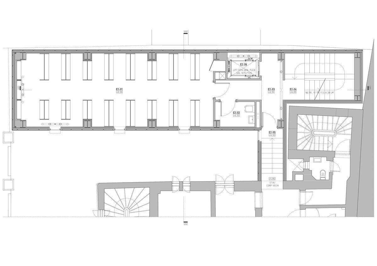
Proiectul nr. 86
Autor: BIA arh. Alexandra Maria Afrăsinei.
Coautor: arh. Cornelia Maria Țuglui.
Colaborator: arh. Alina Cristea.
Perspectivă interioară
Secțiune transversală
Fațadă longitudinală
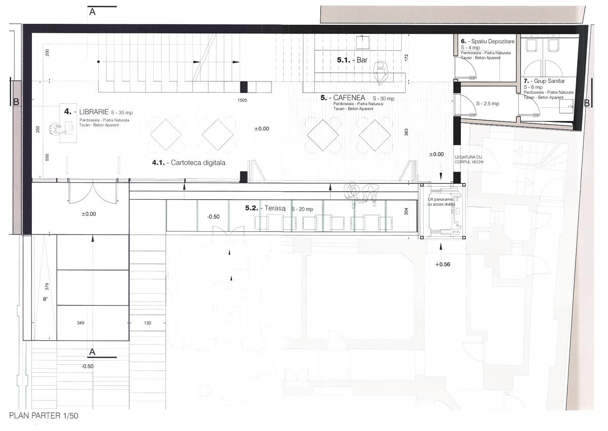
Plan parter
Plan subsol
Plan etaj 1
Plan etaj 2
Plan etaj 3
Aprecierea juriului
Juriul a apreciat că proiectul se detașează de restul propunerilor. Este o soluție cu o structură planimetrică și funcțională clară care, prin volumul simplu, cu materialitate diafană, se afirmă ca o intervenție sensibilă și discretă. Soluția propusă este flexibilă, poate să funcționeze atât în forma prezentată, detașată perimetral, dar și într-o altă ipoteză în care, avansând local până la limita de proprietate, poate fi corelată cu viitoare intervenții pe parcelele vecine. În același timp, scara existentă trebuie relocată pentru a servi și ca scară de evacuare; actualul nucleu se păstrează, căpătând funcțiuni anexe, specifice bibliotecii. Deși conceptul structurii de rezistență este sustenabil, dimensiunile elementelor sunt nerealiste.
Mențiunea I
text: Mihai ENE, Adela ENE
Ilustrare concept
Argument
La o primă vedere atitudinea privind posibilitățile de intervenție poate contura poziții variate care balansează între soluțiile discrete și cele de forță, însă o analiză atentă a contextului ne fundamentează opțiunea pentru o intervenție rezervată din perspectivă vizuală, dar care să întregească valorile existente. Extinderea propusă, rațională și neutră, fără referințe stilistice istorice, completează imaginea de ansamblu a incintei: un fundal arhitectural discret, aproape bidimensional, o scenografie pentru spațiul public al curții, care are rolul de a pune în evidență arhitectura eclectică, volumetrică a clădirii existente. Ca ilustrare a acestor intenții, volumul prismatic este și rezultatul constrângerilor de natură urbană și arhitecturală care îl modelează – coeficientul de utilizare a terenului, configurația suprafeței construibile și apropierea față de clădirea existentă.
Configurație generală și organizare funcțională
Clădirea propusă, o prismă dreptunghiulară cu lățimea de 4,5 m, lungimea de 19,55 m, se aliniază la limitele estice, nordice și vestice ale terenului, ocupând la sol suprafața maximă permisă de regulamentul de urbanism. Se dezvoltă egal pe înălțimea a patru niveluri (H cornișă = 12,90 m), cu excepția ultimului etaj, retras cu 1,5 m pe latura vestică (H totală = 16,00 m). Distanța dintre cele două clădiri permite iluminarea naturală a spațiilor, atât a celor nou - propuse, cât și a încăperilor din imobilul existent, precum și amenajarea la nivelul parterului a unei terase exterioare pentru întâlniri în aer liber și cafenea. Amplasarea nucleului de circulații verticale, compus din scară și lift în apropierea scării secundare din clădirea existentă, în extremitatea sud - vestică a sitului, are o dublă motivare: exploatează la maximum configurația restrictivă a terenului și, în același timp, respectă cerințele impuse pentru căile de evacuare. Legătura dintre cele două corpuri, cel existent și cel nou propus, se face prin intermediul unui volum cu lățimea interioară de 1,20 m, care asigură și preluarea diferențelor de cotă ale etajelor. Fațada ritmată (folosind același modul de 60 cm atât pentru suprafețele opace, cât și pentru cele transparente) este expresia firească a unei organizări definite de elemente de mobilier modulare, repetitive, specifică acestui program.
Sistemul structural
Pentru a răspunde cerințelor cerute prin temă legate de adaptarea la condițiile de construire pe un teren cu acces, geometrie și dimensiuni foarte restrictive, am adoptat o strategie bazată pe modularitate. Cu excepția subsolului, imaginat în sistem de diafragme și planșee de beton armat turnat
in situ, toate elementele ce alcătuiesc corpul nou propus sunt prefabricate, modulare și utilizează tehnologii uscate. Structura metalică, folosind stâlpi și grinzi din europrofile de oțel are patru travee de 3,60 m și o alta atipică pentru corpul ce găzduiește scara, deschiderea de 3,80 m și înălțimea de nivel de 3,15 m. Pentru rigiditate laterală structura este contravântuită pe două direcții, sistemul fiind ales astfel încât să nu deranjeze circulația în dreptul scării. Planșeele sunt și ele gândite în sistem prefabricat, fiind formate din fâșii cu goluri din beton armat cu grosime de 20 cm, lățime de 1,15 m și lungime de 3,65 m. Acestea se sprijină pe talpa inferioară a grinzilor perimetrale și necesită o suprabetonare pentru solidarizare și suportul pardoselii.
Fațade
Logica structurii, determinată de ideile de modularitate și prefabricare se continuă și la nivelul fațadelor. Peretele exterior este alcătuit din casete structurale prevopsite de 10 cm grosime, 50 cm înălțime, poziționate orizontal și alcătuiesc suportul pentru termoizolația din vată minerală bazaltică, finisajul interior de gips carton precum și cel exterior din plăci de fibrociment alb. Pentru a obține efectul de fundal neutru și uniform toate ferestrele au sticlă serigrafiată cu un raster cu 60% acoperire, în aceeași culoare ca fibrocimentul (alb). Fațada vestică a parterului este complet transparentă și se deschide către spațiul curții exterioare.
Proiectul nr. 88
Autor: ENE+ENE ARHITECTURA SRL; arh. Mihai Ene.
Coautor: arh. Adela Ene.
Fațada dinspre strada Jean Louis Calderon;
Perspectivă interioară
Fațadă vest și fațadă nord
Plan Subsol cota -2,80 m
Plan parter
Plan etaj 1 cota +3,15 m
Plan etaj 2 cota +6,30 m
Plan etaj 4 cota +12,60 m;
Aprecierea juriului
Juriul a apreciat că proiectul corespunde atât cerințelor funcționale specifice, cât și exigenței unei soluții structurale raționale, ușor de executat. Volumul exterior compact creează o limită clară față de parcelele învecinate, făcând posibilă racordarea la viitoare intervenții pe acestea. De asemenea, a fost remarcată claritatea tratării accesului principal. Totuși, există o serie de aspecte criticabile: spațiul curții este prea generos, în detrimentul suprafețelor utile interioare; circulațiile interioare sunt lungi, cu un acces greu la nodul de circulație; imaginea fațadei este confuză, fără o regulă clară a poziționării ferestrelor.
Mențiunea II
text: Alexandru CRIȘAN, Ana-Maria CRIȘAN
Perspectivă interioară
Perspectivă exterioară, zona intrării
Concept
Din punct de vedere conceptual, propunerea prezintă tipologia spațială a dezvoltării între două calcane, un volum interior de plinuri și goluri dezvoltate pe verticală. Dialogul creat între goluri și plăcile flotante destinate spațiului de lectură este unificat de lumina zenitală prevăzută la partea superioară a atriumului interior. Volumetria dezvoltată între cele două coji (pe limita de proprietate și limita sediului UAR) antrenează fațada clădirii monument, asimilând-o în noul volum ca fațadă interioară. Tectonica betonului aparent, materialul principal utilizat în compunerea spațială interioară, evidențiază dialogul dintre cele două corpuri de clădire. Paradoxal, plăcile aparent grele plutesc în spațiul interstițial, un efect datorat deplasării perimetrale a structurii și eliberării partiurilor interioare.
Dispunere funcțională
Soluția vizează integrarea spațiului alocat intervenției și alipirea la calcanul casei monument în vederea eficientizării spațiale la nivelul parterului. Clădirea dezvoltată pe 3 etaje mizează pe jocul spațial interior al plăcilor destinate bibliotecii, retrase diferențiat una de cealaltă în vederea eficientizării fluxului luminos necesar spațiului de studiu. Platformele destinate studiului sunt dezvoltate în interiorul anvelopantei determinate de cei doi pereți laterali din beton aparent, respectiv calcanul propus pe latura estică și cel rezultat prin dublarea peretelui fațadei clădirii monument pe latura vestică. Platformele interioare sunt interconectate prin intermediul unei cursive amplasate de-a lungul spațiului bibliotecii, care realizează legătura cu nodurile de circulație verticale amplasate la extremitățile acesteia. Din punct de vedere volumetric, clădirea se dezvoltă asemenea unui parazit, fiind atașată clădirii existente. Volumul principal se articulează pe verticală și orizontală prin intermediul corpului transparent, realizând astfel o trecere graduală raportată volumului clădirii monument.
Rezistență
Din punct de vedere structural, soluția propusă mizează pe cele două diafragme din beton armat amplasate pe laturile de est și vest, respectiv latura lungă spre vecinătate și dublarea peretelui existent al clădirii monument cu păstrarea golurilor acestuia. Planșeele respectă tipologia dală groasă cu elemente ceramice sau corpuri de umplutură din polistiren în grosimea căreia sunt amplasate traseele pentru instalațiile de ventilare-climatizare.
Luminatorul central amplasat deasupra ultimului nivel are prevăzute la partea superioară a lamelelor din sticlă celule fotovoltaice. Sistemul de control solar înmagazinează energia acumulată pe parcursul zilei prin intermediul acumulatorilor, preluând astfel parțial consumurile necesare utilizării corpului bibliotecii.
Finisaje
Materialele utilizate pentru corpul bibliotecii transpun elementele specifice unei inserții contemporane folosind preponderent betonul aparent ca formă de exprimare plastică, metalul și sticla pentru închideri și pardoseli din rășini epoxidice pentru suprafețele orizontale. Pentru suprafețele orizontale de închidere, intradosuri plăci, tavane etc. au fost utilizate finisaje din beton aparent amprentat, sticlă și metal, variind în funcție de dispunerea volumetrică.
Proiect nr. 55
Concurent: CRIȘAN ARCHITECTURE & ENGINEERING SRL
Autor: arh. Alexandru Crișan
Coautori: arh. Ana - Maria Crișan, arh. Ioana Turcanu
Colaboratori arhitectură: arh. Tudor Vasiliu
Colaboratori structură: ing. Mircea Crișan
Colaboratori specialități: ing. Alexandru Iatan
Fațada dinspre strada Jean Louis Calderon, zona accesului și secțiune transversală, zona accesului
Scheme
Plan subsol; Plan parter; Plan etaj 1; Plan etaj 2; Plan etaj 3
Aprecierea juriului
Juriul a apreciat calitatea spațială a proiectului, modul în care, în limitele unei formule unice, susținută prin iluminatul zenital, reușește să individualizeze și să nuanțeze diferite spații. Fațada neutră, exprimând sintetic un volum introvertit, pune în valoare clădirea principală, dar rezolvarea intrării este deficitară. În același timp însă, spectacolul spațiului interior se face cu prețul unor pierderi de suprafață și cu cel al ignorării, prin scara deschisă, a normelor de protecție la foc.
Mențiunea III
text: Carmen TĂNASE
Fațada spre strada Jean Louis Calderon
Conceptul urbanistic
Soluția de amplasare a corpului nou-propus respectă prevederile Planurilor de Urbanism de Detaliu întocmite pentru ambele imobile de pe str. J. L. Calderon, nr. 48 și nr. 50.
PUD-ul pentru imobilul de la nr. 50 a fost continuat printr-un PAC și, implicit, un PAC care impun un calcan de 5,5 m la limita de proprietate cu imobilul de la nr. 48, la 2 m față de proprietatea din spate.
Prin soluția propusă respectăm atât reglementările de distanță, cât și reglementările cu privire la regimul de înălțime: respectiv H max=16 m și Rh=S+P+4E și alinierea la cornișă.
Integrarea în datele din PUD se face în spiritul conturării și accentuării ansamblului arhitectural urbanistic din care fac parte cele două imobile, o oportunitate de a reconcilia istoriile – la un moment dat comune – ale celor două case.
Cele două imobile de tip „Hotel-Particulier” au fost construite la sfârșitul sec. al XIX-lea de către Aron Iacob, în calitate de investitor și beneficiar, el fiind și autorul unui alt ansamblu de pe str. Thomas Masarik, nr. 6-8, unde imobilele reprezentative sunt unite între ele printr-un element de trecere. În același spirit, soluția pe care o propunem creează un element de legătură între cele două imobile reprezentative (astăzi, cu proprietari diferiți) element care, prin discreția soluției, devine un ecran-fundal pe care cele două case monument se proiectează și sunt puse în valoare.
Conceptul de arhitectură
Fațada
Adăpostirea funcțiunii Bibliotecă și Arhivă U.A.R. ridică, deopotrivă, problema identității și reprezentării. Aducerea acestor elemente în limbajul unei intervenții care se dorește cât mai neutră nu se poate face printr-o exuberanță formală sau expresivă, ci doar prin subtilitatea detaliului. Astfel, fațada devine o textură în care lastre din piatră serigrafiate sau gravate cu imagini din arhiva UAR sunt țesute într-un ecran filtrant pentru lumina care pătrunde în bibliotecă.
Ecranul fațadei se continuă pe planul de călcare, clădirea anunțându-se în modul cel mai modest, astfel încât identitatea i se dezvăluie vizitatorului treptat, prin plăci de piatră în pardoseală, serigrafiate cu proiecte, în timp ce textura fațadei este descifrată pe măsura apropierii.
Succesiunea de ecrane
Continuând acest gest al ecranului devenit element principal, întreaga clădire este gândită pe baza unor filtre care definesc și organizează spațiul. Celălalt ecran important care închide compoziția este calcanul din spatele lotului. Acesta, pentru relaționarea cu lotul din spate, este păstrat din corpul vechi de anexă, dar este înnobilat în interior de bibliotecă. Biblioteca însă se transformă și în scară, inițial din motive pragmatice, dar devenind mai apoi un spațiu celebrat al clădirii, iluminat printr-un luminator care urmărește scara pe tot parcursul ei. Acesta oferă o continuare a parcursului început la intrare și se oprește într-o ușă secretă, element aproape indispensabil unei biblioteci. Ușa ascunsă are și rolul de a separa fluxurile de circulație prin restricționarea accesului la etajele superioare, dar asigură, în același timp, calea de evacuare.
Între clădirea bibliotecii și construcția veche se mai creează un spațiu-tampon între cele două clădiri. O curte mică de lumină oferă prilejul unui dialog cu clădirea veche, peretele acesteia putând fi animat de instalații de lumină și culoare, de proiecții de film sau expoziții. Toate acestea vor crea punți între cele două clădiri, transformând ceea ce la început părea un spațiu rezidual într-un nucleu al ansamblului.
În final, ceea ce rezultă nu este un obiect arhitectural, ci un proces care vine să completeze o evoluție în timp și se bazează pe grefarea pe această evoluție continuă. Plăcile de pe fațadă se vor schimba, la fel și cărțile care ,,decorează” interiorul sau evenimentele care animă curtea de lumină.
Proiect nr. 54
Concurent: ENTREPRISE architecture & design SRL
Autor: arh. Carmen Tănase
Coautor: arh. Andreea Bogdan
Colaborator arhitectură: stud.-arh. Denisa Bădoi
Colaborator structură: ing. Adrian Zecheru
Bilanț suprafețe:
S teren=544 mp
S construită Corp A (corp vechi)=264 mp
S construită Corp B (corp nou – Bibliotecă)=89 mp
POT=65%
S desfășurată corp A=750 mp
S desfășurată corp B suprateran (corp nou – Bibliotecă)=480 mp
S desfășurată corp B subteran=135 mp
S desfășurată totală=1.365 mp
CUT=2,5 < CUT max.(3,25)
Rh=S+P+4E
H max=16 m
Sistem constructiv:
Stâlpi din B.A. în sistem BAR, cu armatură solidă și grinzi din beton armat
Instalații de încălzire-răcire:
Pompă de căldură aer-apă, cu funcționare electrică. De semenea, se pot monta două panouri solare pentru producerea apei calde menajere.
Perspectivă interioară
Perspectivă exterioară
Plan de situație
Secțiune transversală A-A;
Plan parter
Plan subsol; Plan etaj 1; Plan etaj 2; Plan etaj 3
Aprecierea juriului
Juriul a apreciat înscrierea soluției într-o logică de ansamblu, corelând-o cu posibile intervenții pe parcelele vecine. În acest sens, ideea unui volum unitar pe fundal, ca închidere a spațiului dintre cele două imobile în oglindă, este corectă, dar nu în formula propusă pentru fațadă. Soluția funcțională necesită ameliorări, pentru că unele rezolvări sunt forțate.
客服
消息
收藏
下载
最近


































