查看完整案例

收藏

下载
Winthrop Library
The Methow Valley has a combined year-round population of 14,000-20,000 part- and full-time residents, reaching a population of up to 30,000 during the ski and summer seasons. The area is currently served by two libraries, each smaller than 2,000 SF, resulting in inadequate access to resources and services.
The new Winthrop Library will remedy these issues while responding to a unique site, complementing the rugged natural environment and prevailing architectural vernacular of Winthrop.
Inspired by the open-air agrarian buildings in the region, the design for the new Winthrop Library includes broad overhangs, open roof trusses, and visible structure. The massing is familiar and welcoming, but its simplicity belies its sophistication. Completing numerous daylighting and energy studies, the design team shifted window openings, doorways, overhangs, and a slatted wooden scrim to best control heat gain and glare during the Methow Valley’s arid summers.
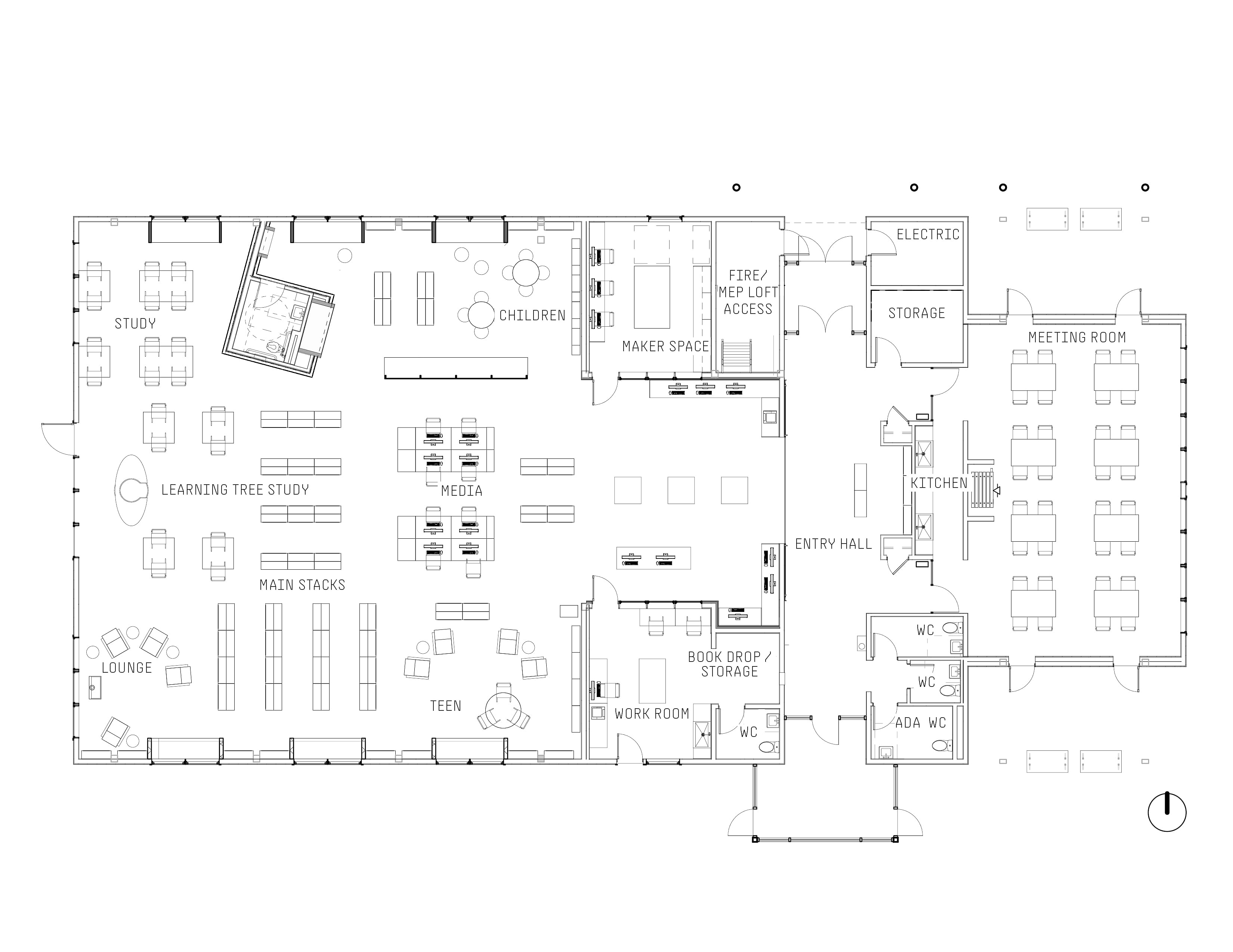
In collaboration with Prentiss Balance Wickline Architects of Winthrop, the 7,300 SF facility was designed with extensive involvement by the community and spearheaded by the Friends of Winthrop Library organization. Responding to hundreds of requests and comments collected through JA’s Hopes & Dreams charrette process, the new library will serve as a community gathering space as well, with a large meeting room accessible after hours. Designed to hold a collection of over 20,000 materials, it also includes study tables, computers to provide internet access, casual counter seating for study or work, and lounge seating. Along the perimeter of the library, tucked between the book collection, are 12 inviting window seats, perfect reading nooks. An inviting fireplace beckons patrons from the front door to the far end of the space, where large windows frame the unique Methow landscape.
Status:
Built
Location:
Winthrop, WA, US
Additional Credits:
Associate Architects: Prentiss Balance Wickline Architects
客服
消息
收藏
下载
最近




















