查看完整案例

收藏

下载
Kuću karakteriše i fasada sa smaknutom opekom; Foto: Tomaž Gregorič
Stepenasta kuća u Ljubljani s perforiranom fasadom od opeke
Pored toga što ova kuća pleni pažnju svojim izgledom, OFIS arhitekti su je projektovali tako da bude veoma obazriva prema okolini zahvaljujući ugrađenim energetski efikasnim rešenjima.
Objekat Step Level House nalazi se u stambenoj četvrti slovenačke prestonice, na granici između grada i prigradske zone gde je teren blago brdovit. Kako bi se rešila visinska razlika delova parcele, koja je između nivoa ulice i naspramnog krajnjeg dela parcele 2,5 metara, volumen kuće izdeljen je tako da je dobijena stepenasta struktura kuće.
To je omogućilo stvaranje vrtova na svakom nivou i pružanje čistih pogleda na okruženje sa svake terase.
Kako je visinska razlika u parceli 2,5 metara, kuće je izdeljena pa je tako dobijena stepenasta struktura.
Klijent arhitektonske firme OFIS arhitekti bila je slovenačko-engleska porodica, čija je primarna želja bila stvaranje kuće sa dve dnevne sobe. Jedna od njih namenjena je za prijem gostiju i druženje sa prijateljima. Zato je ulaz u nju organizovan sa nivoa ulice, dok je druga dnevna soba namenjena porodičnom okupljanju i ona je na nižem nivou bašte. Na ovaj način je stepenasta geometrija kuće očita i u programskoj organizaciji prostora.
Odvojene zone
Dakle, nivo prizemlja je namenjen druženju sa gostima i sličnim aktivnostima, dok je jezgro porodičnog nivoa na nižem nivou koji ima direktan pristup zadnjem dvorištu. U ovoj zoni se nalazi pomenuta dnevna soba, kao i kuhinja sa trpezarijom.
Na prvom spratu su organizovane sobe članova porodice, dok je najviši nivo u formi penthausa namenjen za smeštaj gostiju.
Podela prostora može se videti u u vertikalnoj osi, gde su sa jedne strane združeni unutrašnji funkcionalni sadržaji, dok su sa druge garažni prostor i terase, kao i otvor koji prodire kroz kuću ali i vizuelno povezuje zonu glavnog ulaza i zadnje dvorište.
Fasada od opeke je mestimično perforirana, što noću rezultuje zanimljivim igrama svetlosti koje prodire iz unutrašnjosti kuće.
Dobijeni stepenasti volumen obavijen je u fasadu od opeke, koja je mestimično perforirana, što noću rezultuje zanimljivim igrama svetlosti koje prodire iz unutrašnjosti kuće.
Zadnja fasada ka dvorištu u potpunosti je otvorena zahvaljujući prozorima velikih dimenzija.
Održivost kuće
Prilikom projektovanja arhitekte su u znatnoj meri na umu imale i održivost, te su primenjeni razni sistemi za energetsku efikasnosti poput sistema ventilacije sa rekuperacijom toplote, toplotna pumpa sistema zemlja-voda, sistem za hlađenje koji je ugrađen u plafon, dvostruka toplotna izolacija, trostruko zastakljeni drveni prozori, a pritom su i stakleni delovi fasade orijentisani su u pravcu sever-jug. Primenjeni su ekološki materijali u eksterijeru i minimalizovana je upotreba plafonskih i zidnih obloga u unutrašnjosti.
3D prikaz ulične fasade
3D prikaz dvorišne fasade
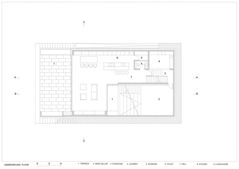
Osnova suterena
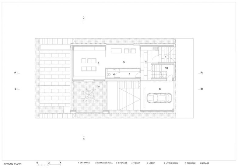
Osnova prizemlja
Osnova prvog sprata
Osnova drugog sprata
Podužni presek Foto: Tomaž Gregorič
客服
消息
收藏
下载
最近
















