查看完整案例

收藏

下载
墨西哥市推動 PILARES 計畫:WORKac 與 Ignacio Urquiza Arquitectos 用綠色混凝土建造社區活動中心,在弱勢地區點燃希望之光
墨西哥市推動 PILARES 計畫:WORKac 與 Ignacio Urquiza Arquitectos 用綠色混凝土建造社區活動中心,在弱勢地區點燃希望之光
墨西哥市推動PILARES計畫:百座社區中心點亮城市角落
二〇一八年,墨西哥市政府啟動了一項名為「PILARES」的重大計畫,這組縮寫代表著「創新、自由、藝術、教育與知識據點」(Points of Innovation, Freedom, Art, Education, and Knowledge)。這項計畫擘劃在墨西哥市境內,特別是那些長期以來資源相對匱乏的社區,廣設一百座社區活動中心。這些PILARES建築的設計宗旨在於支持各式各樣的課程與工作坊,藉此增進市民的技能,同時也為每個社區帶來豐富的文化活動、多元的學習機會,以及安全的休閒空間,更重要的是,促進跨世代的交流與互動。
此舉不僅在硬體建設上有所提升,更著重於軟性的社會凝聚力,促進敦親睦鄰、社區交流,展現墨西哥市政府對於社區營造的重視。PILARES計畫的推動為城市帶來新的活力,更為居民提供實質的助益,提升整體生活品質。
PILARES墨西哥社區活動中心建築以簡潔的幾何量體呈現,採用綠色混凝土外牆,低調但醒目地融入街區紋理。街角的開放入口設計強化了公共空間的連結,外牆上的標語增添了人文氣息
室外半開放空間以斜角幾何設計,形成遮蔭步道並強調行人友善性,材質選用裸露綠色混凝土,粗糙質感呼應自然氣息。玻璃幕牆提供內外視覺連結,光影變化隨日照移動而生動
國際設計團隊協力:為PILARES注入全球視野與在地關懷
時間來到二〇二〇年一月,墨西哥政府做出一項重要的決策,他們決定延攬數個國際知名的設計團隊,共同參與PILARES計畫的推動。這些設計團隊的任務是負責其中二十六座 PILARES 活動中心的設計與興建監工。政府要求每個參與的團隊,都必須將基地的現況與當地的社會脈絡納入考量,以回應社區的特殊需求。同時,這些設計也必須遵循先前透過廣泛的社區參與所建立的計畫準則。
這項決策呈獻出墨西哥政府廣納百川的氣度,希望藉由國際團隊的專業知識與經驗,為PILARES計畫注入更豐富的內涵。他山之石,可以攻玉,借鏡國際經驗,提升在地建設的品質。
內部空間採用中庭設計,垂直視野與自然採光貫穿各樓層,強化了開放與透明的氛圍。金屬欄杆簡約輕巧,提供安全性且不干擾視線。裸露的混凝土結構呈現耐用特質,天窗引入日光,減少對人工照明的依賴
聚焦在地需求:PILARES中心的多樣化空間規劃
在由來自紐約的建築團隊WORKac與墨西哥在地建築師IUA Ignacio Urquiza Arquitectos共同負責的基地中,特別需要規劃出網路學校和機器人課程的專用空間,同時也要具備舉辦珠寶製作和絹印課程與工作坊的能力。這些需求反映了當代社會對於數位技能、創意產業以及終身學習的重視。
為了更深入了解每個PILARES中心如何與其所服務的社區產生連結,設計團隊展開密切的合作,共同研究現有的PILARES建築。透過仔細的分析與討論,WORKac發現PILARES中心最迫切的需求在於,首先,在街道層面建立室內與室外空間的緊密連結,讓社區居民可以輕易地進出戶外空間,並善用基地周邊的公共空間;其次,是提供足夠的彈性,讓空間可以隨著時間與需求自然地調整,並鼓勵多元的使用方式。對於WORKac而言,最重要的是在建築中內建一種能力,讓使用者可以完全依照自身的需求來使用與改造這些空間。
建築內部展現多層次的開放空間,樓梯與走道連結不同功能區域。裸露混凝土牆面和金屬欄杆營造堅固且簡潔的視覺效果,下層為社區活動區域。上層配置電腦工作區,可用於學習或數位技能培訓
社區中心設有數位工作區,明亮的自然光透過大片玻璃幕牆灑入,提供舒適的學習環境
深入剖析PILARES計畫與社區的連結
WORKac 與 Ignacio Urquiza Architects 展開密切合作,深入探究現有的 PILARES 建築,務求更精準地掌握每個中心如何與其所服務的特定社區產生連結。透過實地考察與訪談,美國建築師事務所 WORKac 逐漸明瞭,PILARES 中心最關鍵的需求有二。
首先,必須在街道層面建立室內與室外空間的緊密聯繫,讓社區居民可以輕易地進出戶外,並充分利用基地周邊的公共空間,營造出開放且親民的氛圍。
其次,是提供十足的彈性,讓空間可以隨著時間與社區需求自然地調整,並鼓勵多元的使用方式,例如舉辦不同類型的活動、課程或工作坊。
WORKac 認為,最核心的要素是,建築本身必須具備一種內建的能力,讓使用者可以完全依照自身的需求來使用與改造這些空間,使其真正成為社區居民生活的一部分。此舉可謂「求同存異」,在既有的架構下,尋求最大的彈性與可能性,以符合不同社區的獨特需求。
多層次空間結合寬敞樓梯與開放平台,形成自然採光的垂直動線。裸露混凝土牆面展現簡約粗獷風格,樓梯平台設計具有多用途,可作為活動觀賞或社區聚會區域
基地環境的考量:既有植栽與繁忙街角的巧妙應對
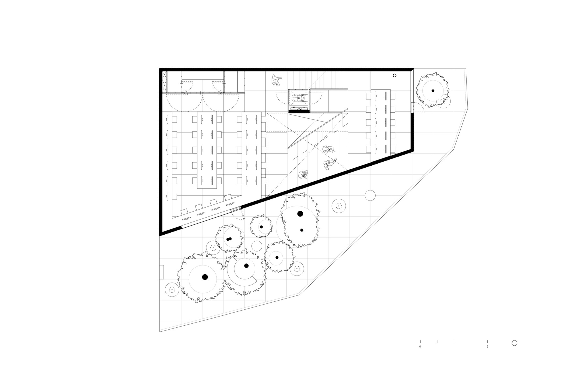
PILARES Lomas de Becerra 與 PILARES Azcapotzalco 兩座中心的基地,在實質特性上有著相似之處:兩者都座落於繁忙的十字路口,並且位於街角,基地上原先便有植栽,因地制宜是設計者對環境尊重與關懷應有的基本態度,因此,在建築的配置上,設計團隊審慎地考量了這些既有的樹木,並將它們巧妙地融入建築的造型之中,使其成為建築不可或缺的一部分,而非突兀的存在。此種做法不僅保留了珍貴的綠色資源,更讓建築與周遭環境產生自然的對話,營造出人與自然共存的景象。
斜角切割的設計語彙:創造流暢動線與多功能空間
在建築的底層,設計團隊運用了斜角切割的設計手法,創造出清晰且流暢的行人動線,讓使用者可以自由地在公園周圍散步,並輕易地進入建築內部。設置在廣場中的斜牆,則扮演了內外空間之間的緩衝與過渡角色,如同舞台的帷幕一般,引導人們從外部世界進入到中心的內部空間。PILARES Lomas de Becerra 的底層包含了一個進出平台,這個平台同時也具備雙重功能,既是禮堂,也是舉辦文化活動的階梯式座位區,充分展現了空間的多元使用彈性。此種設計可謂「一石二鳥」,在滿足基本功能需求的同時,更創造了額外的價值與可能性。
開放式底層設計:模糊室內外邊界,打造社區共享空間
兩座 PILARES 中心的底層皆採開放式設計,室內空間以輕盈的玻璃帷幕作為區隔,這道玻璃帷幕可以向外敞開,有效地將室內空間延伸至街道,讓行人與整個社區都能輕易進出,成為一個便於相遇、交流的場所,並在此享受文化與社交活動。模糊了室內與室外的界線,讓建築不再是封閉的個體,而是融入城市紋理的一部分,真正成為社區的公共客廳。開門見山的方式,直接地將建築與社區連結起來,創造出友善且歡迎的氛圍,增加空間的彈性使用,促進社區居民的互動與交流,提升公共空間的使用效益。
內部空間以原始混凝土牆面和裸露結構展現工業感,開放式樓梯間成為自然採光的焦點,形塑出豐富的垂直動線。空間的多功能性支持社區活動,階梯座椅平台可能同時兼作小型聚會或觀看區
三層樓的平台式空間:自然採光通風,多元機能並存
建築整體規劃為三層樓,每一層樓都包含四個平台,這些平台以中央樓梯為中心向外展開,這樣的配置不僅引入了充足的自然光線,也提供了良好的通風效果,營造出舒適宜人的環境。垂直動線的起點是中央樓梯,各個平台之間則透過樓梯與中央電梯相互連結,方便使用者在不同樓層之間移動。部分平台設有坡道,這些坡道同時也兼具多功能空間的用途,可以舉辦各種活動或展覽;而其他平台則針對特定的活動需求進行設計,提供專用的空間,例如工作室或教室等。這樣的設計方式不僅充分利用了空間,更考量到不同活動的需求,提供了客製化的解決方案。
空間的自主演化:活動中心展現蓬勃生命力
自從啟用以來,WORKac 與 IUA 共同設計的 PILARES 活動中心展現了蓬勃的生命力,各個空間也開始自主地演化。有些空間,像是配備書桌與電腦的工作室型環境,正如設計團隊的預期般被使用,提供使用者一個安靜且專注的工作或學習場所。而其他空間則保持較為開放的狀態,讓使用者可以進行各種肢體活動與課程,包括武術、舞蹈、嘻哈課程以及瑜珈等。
設計團隊樂見跨世代的居民在此共同參與活動,充分展現了人們對於一個可以活動、學習與生活的空間的渴望在此獲得滿足。生生不息的活力,令人見到空間與使用者之間的良好互動,以及因此可能衍生的無限可能性。
開放設計適合進行多種活動,例如健身課程或社區聚會,整體為社區提供彈性使用的多功能場地
建築圖
平面圖 Plan
平面圖 Plan
剖面圖 Section
剖面圖 Section
剖面圖 Section
立面圖 Elevation
作品資訊
作品名稱:Pilares Azcapotzalco Community Center
作品位置:墨西哥 墨西哥市
作品類型:活動中心、社區中心、公共建築、墨西哥建築、墨西哥建築師、美國建築師
竣工:2023年
設計單位:IUA Ignacio Urquiza Arquitectos, WORKac
主持建築師:Amale Andraos, Dan Wood (WORKac Principals)、Ignacio Urquiza (IUA Principal)
設計團隊:Wuyahuang Li (Design Lead)、Michela Lostia di Santa Sofía、Eder Hernández、María del Mar Carballo、Ana Laura Ochoa、Anet Carmona、Noé García、León Chávez、Fernando Tueme、Sacha Bourgarel
攝影:Ramiro del Carpio
客服
消息
收藏
下载
最近







































