查看完整案例

收藏

下载
Planirani objekat na Bežanijskoj kosi; Vizuelizacija: Dalmak
Na Bežanijskoj kosi GPA Construct planira ugaonu zgradu od 3.800 kvadrata. U objektu je projektovano 19 stanova, šest poslovnih prostora sa pripadajućim galerijama, kao i dve podzemne garaže sa ukupno 30 parking mesta.
Na uglu ulica Ljubinke Bobić i Raška Dimitrijevića na Bežanijskoj kosi uskoro bi mogla da nikne nova stambeno - poslovna četvorospratnica, za čiju izgradnju je izrađen urbanistički projekat koji se od 29. avgusta do 13. septembra nalazi na javnom uvidu na sajtu Grada Beograda.
Izrada predmetnog urbanističkog projekta poverena je preduzeću Dalmak d.o.o. iz Beograda, na čelu sa Branislavom Spasojevićem, dia, dok je investitor GPA Construct d.o.o, malo beogradsko preduzeće iza kog stoji više stambenih zgrada na teritoriji opštine Zemun.
Šira situacija sa obuhvatom urbanističkog projekta
Pristupi sa severoistočne i istočne strane
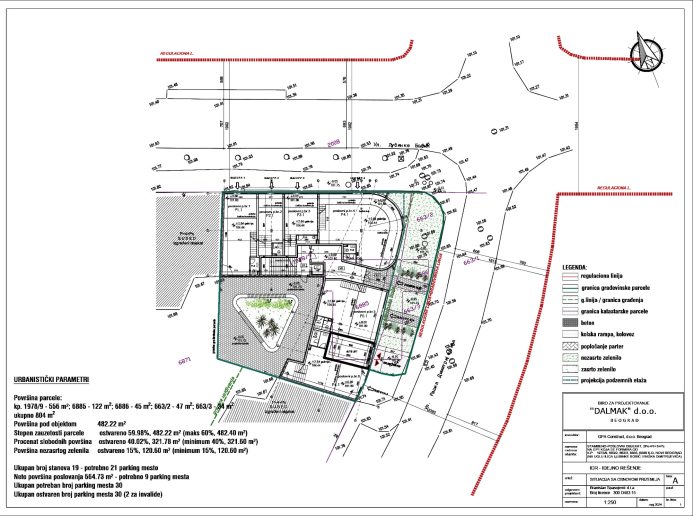
Građevinska parcela koja je predmet projekta sastoji se od KP 1978/9, 6885, 6886, 663/2 i 663/3 koje pripadaju teritoriji KO Novi Beograd.
Parcela ima pristup javnoj saobraćajnoj površini – Ulici Ljubinke Bobić, sa severoistočne strane i javnoj saobraćajnoj površini – Ulici Raška Dimitrijevića, sa istočne strane.
Građevinska parcela je nepravilnog oblika, zauzima površinu od 804 kvadratna metra, a teren je približno ravan.
U objektu je projektovano ukupno 19 stanova; Vizuelizacija: Dalmak
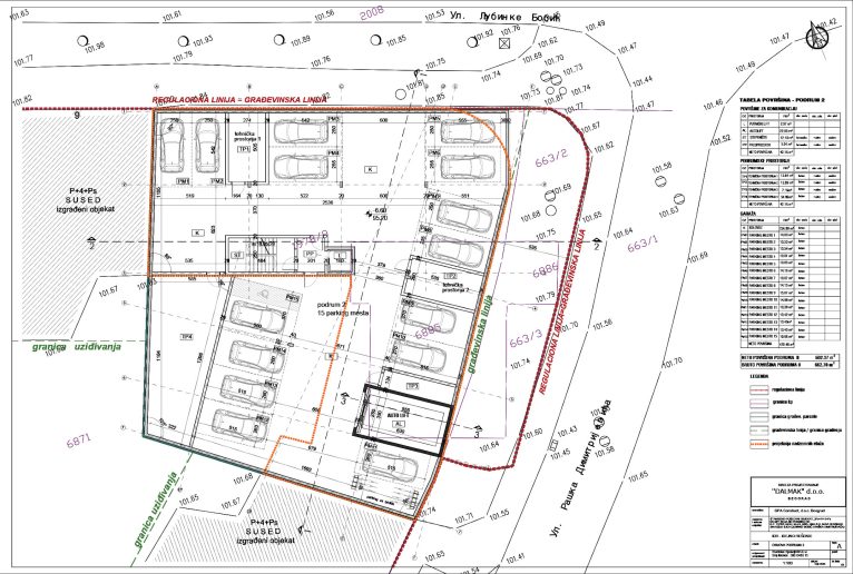
U podrumskim etažama su projektovane dve garaže sa po 15 garažnih mesta za automobile koje opslužuje jedan automobilski lift.
Na parceli se projektuje stambeno - poslovni objekat spratnosti 2Po+Pr+3+Ps, uzidan sa dve strane, na zapadnoj i južnoj strani parcele.
Objekat ima poslovnu namenu u prizemlju i galerijama i stambenu namenu na ostalim višim etažama.
Projektovane su dve podzemne etaže. U podrumskim etažama su projektovane dve garaže sa po 15 garažnih mesta za automobile koje opslužuje jedan automobilski lift.
Kolski pristup je projektovan iz ulice Raška Dimitrijevića, a pešački iz Ulice Raška Dimitrijevića i iz Ulice Ljubinke Bobić.
Vizuelizacija: Dalmak
Vizuelizacija: Dalmak
Projektovano 19 stambenih jedinica
Poslovni deo u prizemlju objekta sadrži šest poslovnih prostora sa pripadajućim galerijama. Ulazi u poslovne prostore su iz Ulice Ljubice Bobić i Ulice Raška Dimitrijevića.
Projektovano je ukupno 19 stanova i šest poslovnih prostora. Ukupno je ostvareno 30 parking mesta u podzemnoj garaži, od čega su dva parking mesta odvojena za osobe sa invaliditetom.
Ukupna neto površina stanova iznosi 1.510 m², a ukupna neto površina poslovanja 564 m². Odnos poslovanja i stanovanja iznosi 27,21% : 72.21%.
Ukupna bruto površina objekta po SRPS-u iznosi 3.831 metar kvadratni, od čega na nadzemni deo otpada 2.506 m², a na podzemni preostalih 1.325 m².
Situacija sa osnovom prizemlja
Osnova podruma 2
Osnova galerija
Osnova 1. sprata
Osnova povučenog sprata
Presek 1-1
Presek 2-2
客服
消息
收藏
下载
最近










