查看完整案例


收藏

下载
格拉斯哥学院的新校区由三块格栅玻璃砌块组成,其中包括航海和工科学生的设施,包括一艘轮船机舱的复制品(幻灯片)。
爱丁堡的迈克尔·莱尔德建筑师事务所、莱赫建筑师事务所和霍尔建筑师事务所为格拉斯哥市学院设计了价值2.28亿英镑的河滨校区。格拉斯哥学院是在该市的中央学院、大都会学院和航海学院于2010合并为一个单一学院时成立的。
河滨校区位于克莱德河畔。这是该学院两个新校区中的第一个,该学院将把以前在12个不同网站上运营的服务结合起来。
这两位建筑师说:“位于克莱德河的边缘,它标志着这座城市的一个门户,展示了学院作为一个公民机构的重要性,以及在格拉斯哥天际线上创造了一个值得纪念的新地标。”
他们补充说:“我们的目标是将学院以前的设置--在全市不同学科的筒仓--转变为学生和教职员工每天经过的空间的精心安排,从而激发混合学习和交叉学科的机会。”
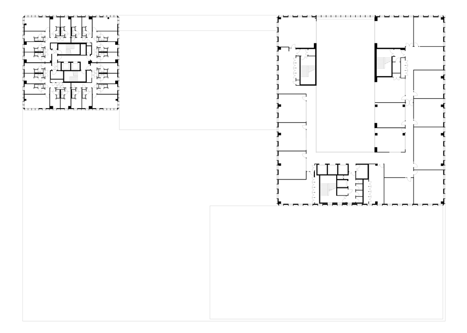
这三个街区都有网格玻璃正面,并组织在一个封闭的花园,提供河流的景观。
建筑师们解释说:“在庭院周围布置建筑,可以让校园里的所有房间都能直接或斜向看到河流和城市。”
这些街区包括航海和工程专业的专业设施,以及管理办公室、咖啡馆、学习资源中心和198个学生宿舍。
车间、教室和模拟空间包括一个船舶机舱的复制品和一个多学科工程大厅。
其中最大的一座建筑有一个戏剧性的七层中庭,旨在帮助航行。
中庭从一个巨大的天窗和建筑物的玻璃墙中照明,其特色是一个方形的木楼梯和白色的墙壁--与车间的工业外观形成鲜明对比。
该校校长兼首席执行官保罗·利特尔(Paul Little)表示:“它的七层中庭为这座生机勃勃的建筑的中心提供了一颗跳动的心脏,是世界上230所此类学院中最现代化、最先进、最具前景的海洋校园的入口。”
河滨校区被列入苏格兰皇家建筑师协会(RIAS)奖的入围名单。其他提名者包括由集体建筑公司雕刻的格拉斯哥妇女图书馆的延伸部分。
在23个入围项目中,BTE建筑公司和IcoseArchitect公司在苏格兰高地风景如画的地点有两座了望塔,以及工作室编织公司(StudioWeave)的一间镀锌艺术工作室。
摄影由埃德蒙·萨姆纳拍摄。
轴测图-点击以获得更大的图像
站点计划-单击以获得更大的图像
底层平面图-点击获取更大的图像
三楼图则-按一下以取得更大的影像
中庭部分-点击以获得更大的图像
客服
消息
收藏
下载
最近


















