查看完整案例


收藏

下载
© Martin Kocic
c.Martin Kocic
架构师提供的文本描述。位于布拉格的捷克生命科学大学校园建于上个世纪60年代,是当时城市和景观创造的一个杰出例子。校园包括校长办公室、教室、实验室、演讲厅等。整个建筑群采用单一的新功能主义建筑风格,由整体钢筋混凝土框架和镶嵌砖嵌片的整体钢筋混凝土框架所识别。个别学院的建筑以马赛克的颜色相互区分。由于其一致的格式和窗口结构,它创造了一个统一的风格,所有单独的建筑物。
Text description provided by the architects. Campus of Czech University of Life Sciences in Prague, Suchdol was built in the 60s of the last century and represents an exceptional example of urban and landscape creation of that time. Campus includes the rector's office, classrooms, laboratories, lecture hall etc. The entire complex is built in a single architectural style of neo functionalism, which is recognized by monolithic reinforced concrete frame with inserted sheet cladded with mosaic tiles. Buildings of individual faculties are distinguished from each other by color of the mosaic. Thanks to the consistent format and window structure, it creates a unified style for all individual buildings.
© Martin Kocic
c.Martin Kocic
在中庭建设开始前,现有的经济学院大楼和相邻的演讲厅建筑通过连接走廊连接起来。中庭未来完工的地点位于原连接走廊的位置。
Before start of Atrium construction, existing building of Faculty of Economics and adjacent building of lecture hall were interconnected by connecting corridor. Place for future completion of the atrium is located in the place of former connecting corridor.
© Martin Kocic
c.Martin Kocic
这座大楼取代了原来的连接走廊,后者不适合容量和功能。中庭的基本功能是将教师的两部分连接起来,并加强放松和社交活动的场所。这座建筑有助于解决教师能力不足的问题,并以越来越多的新生的冲击来应对公共空间的缺乏。目前的PEF空间对于学生的自由流动和分散来说是很差的,中庭将在课间为学生服务。这一空间将允许学生在自己的空闲时间在满意的条件下独立工作,并将为工作或娱乐提供空间。
This outbuilding replaces the original connecting corridor, which did not fit for the capacity and functionality. Basic functions of Atrium were to connect two parts of a faculty and to enhance place for relaxation and social activities. The building contributes to solve the lack of capacity of faculty and responds to the lack of common space with the onslaught of a growing number of new students. Current PEF space for the free movement and dispersal of students are poor and Atrium will serve students in the time between lectures. This space will allow students to work independently in their own free time in satisfactory conditions, and it will provide space for work or entertainment.
Section C - C
C-C节
中庭的设计与周围建筑的现有建筑保持了连续性,并在主建筑经济学院和演讲馆之间创造了一种自然的联系。它的形状来自周围的建筑,符合现有的环境。我们采用了同样的骨架结构体系,就像60年代周围的建筑一样。该建议的主要优点是,建筑位于理想的地点,因此学生可以进入花园的北部,这是以前对学生关闭的。学生们将能够在夏季期间积极利用花园,届时中庭的内部空间将被扩展。
The design of Atrium has a continuity to the existing architecture of the surrounding buildings and creates a natural connection between the main building Faculty of Economics and the lecture pavilion. Its shape comes from the surrounding buildings and it fits into an existing context. We applied same skeleton structural system like surrounding buildings from 60s. The main advantage of the proposal is that building is ideally situated on the site and therefore students gain access to the northern part of the garden that was previously for closed for students. Students will be able to actively use the garden in the summer period when inner space of atrium will be extended out.
© Martin Kocic
c.Martin Kocic
这座建筑是以直径600毫米或900毫米的钻孔桩为基础,在那里放置整体钢筋混凝土板,这些都围绕着目标平面的整个回路。这座建筑的支撑结构是由钢筋混凝土制成的。支撑柱的截面为350 mm×350 mm。轴承壁厚150,200,350毫米。一楼和二楼的吊顶结构为300 mm厚的钢筋混凝土结构。屋顶有扁平的设计。
The building is based on drilled piles in 600mm or 900mm diameter, where monolithic reinforced concrete plates are placed, these go around the whole circuit of the object grouplan. The supporting structure of the building is made from reinforced concrete. Supporting columns are of constant cross section of 350mm x 350mm. Bearing walls are thick 150, 200, 350 mm. Ceiling structure of the 1st and 2nd floor is made as a reinforced concrete in 300 mm thickness. The roof has flat design.
立面设计为可见钢筋混凝土墙与结构玻璃。
Facades are designed as visible reinforced concrete walls with structural glass.
© Martin Kocic
c.Martin Kocic
内部空间没有油漆,暴露了混凝土的质感。演讲馆的内墙是一堵声学墙,是由单面穿孔板制成的。
Inner space is without paint and exposes a texture of concrete. Interior wall attached to the lecture pavilion is an acoustic wall and is made of veneered perforated sheet.
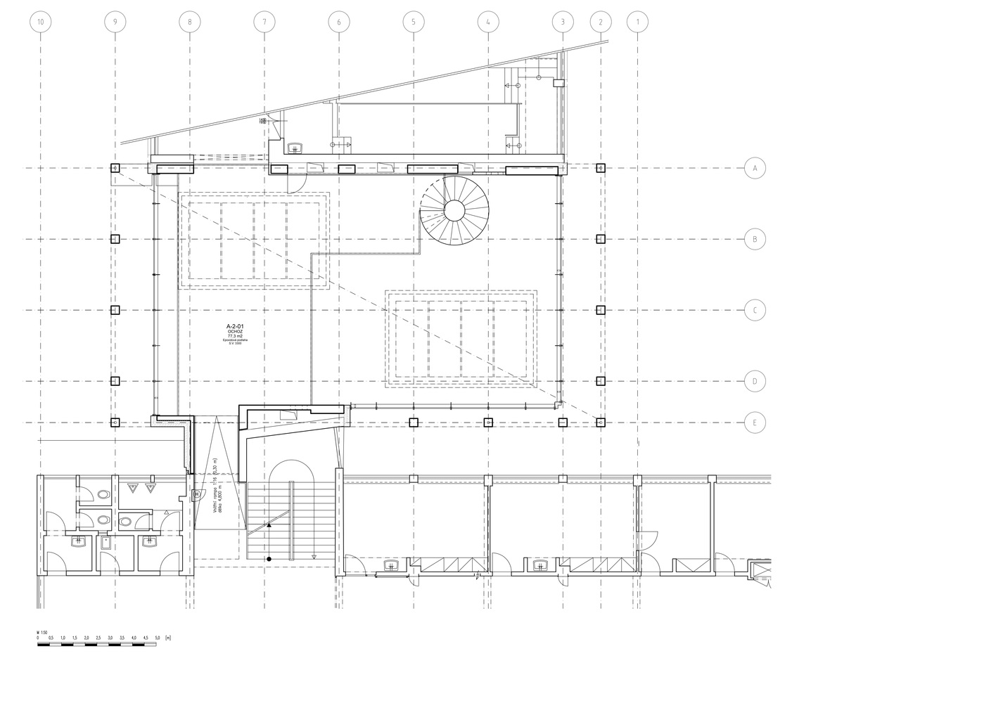
1st Floor Plan
一楼图则
玻璃幕墙采用铝制建筑系统。地板和天花板之间的高度是6800毫米。从建筑的角度来看,我们更喜欢垂直的特性,这是我们通过精简支撑铝柱,使之看起来像刀片来实现的。这些都是T形设计的。所有铝质表面均采用粉末色覆盖,颜色为Ral 7016精细纹理阴影。
Glass facades are made with aluminium construction system. The height between the floor and ceiling is 6800mm. From an architectural point of view we preferred vertical character, which we achieved by slimming the supporting aluminium columns so it looks like blades. Those are designed in T-shaped. All aluminium surfaces are covered by powder color in RAL 7016 FINE TEXTURE shade.
© Martin Kocic
c.Martin Kocic
所有的室内家具都是由IO工作室设计的。我们只使用天然材料,天然橡木天然皮革和钢铁。
All the interior furniture is designed atypically by IO Studio. We use only natural material, natural oak natural leather and steel.
© Martin Kocic
c.Martin Kocic
总建筑面积250.8平方米(-173.5平方米,1楼和2楼-77.3平方米)。总建筑面积为236.4平方米.中庭建筑主立面的方向看上去很南面。
Total floor area is 250.8 square meters ( -173.5 m2 1st floor and 2nd floor - 77.3 m2 ). The total built -up area is 236.4 square meters. The orientation of the building - main façade of atrium looks southern.
© Martin Kocic
c.Martin Kocic
Architects IO Studio
Location Kamýcká 129, 165 00 Praha-Praha-Suchdol, Czech Republic
Category University
Architect in Charge Luka Križek, Radek Bláha
Area 250.8 sqm
Project Year 2015
Photographs Martin Kocic
客服
消息
收藏
下载
最近

























