查看完整案例

收藏

下载
Transición hacia la producción de energía neutra. Edificio de bomba de calor Vuosaari por Virkkunen & Co Architects
[Helsinki] Finland
Transición hacia la producción de energía neutra. Edificio de bomba de calor Vuosaari por Virkkunen & Co Architects
El estudio de arquitectura finlandés
Virkkunen & Co Architects Ltd.
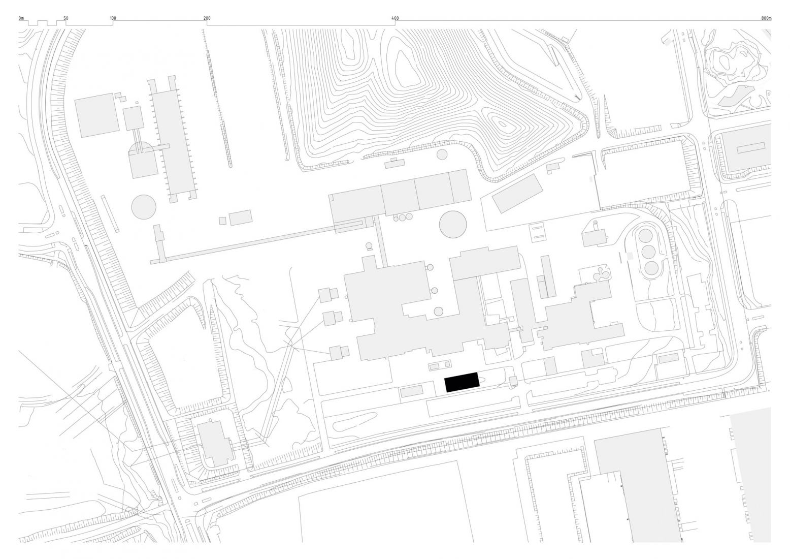
proyectó el edificio de bomba de calor Vuosaari, como una parte vital de la transición hacia la producción de energía neutra en carbono para 2030 para la empresa de electricidad, calefacción y refrigeración Helen Ltd., en la capital finlandesa, ubicada en el emplazamiento de una central eléctrica primaria existente en el este de Helsinki, cerca del puerto de Vuosaari y del mar Báltico.
El proyecto convierte el exceso de calor de proceso de la central eléctrica adyacente y el calor del agua de mar procedente del cercano Mar Báltico en calor urbano para enviarlo a los clientes.
El nuevo edificio de la bomba de calor se encuentra junto a dos hitos arquitectónicos dominantes: la central eléctrica A de Vuosaari de 1987 y la central eléctrica B de Vuosaari, construida en 1998 y proyectada por
Virkkunen & Co Architects.
Virkkunen & Co Architects
definió el proceso de proyecto y la logística prestando atención a la ubicación del edificio. Su forma y materiales se basan en el contexto. Los ladrillos rojos en forma de alas en los lados largos del edificio fueron hechos a medida para el proyecto.
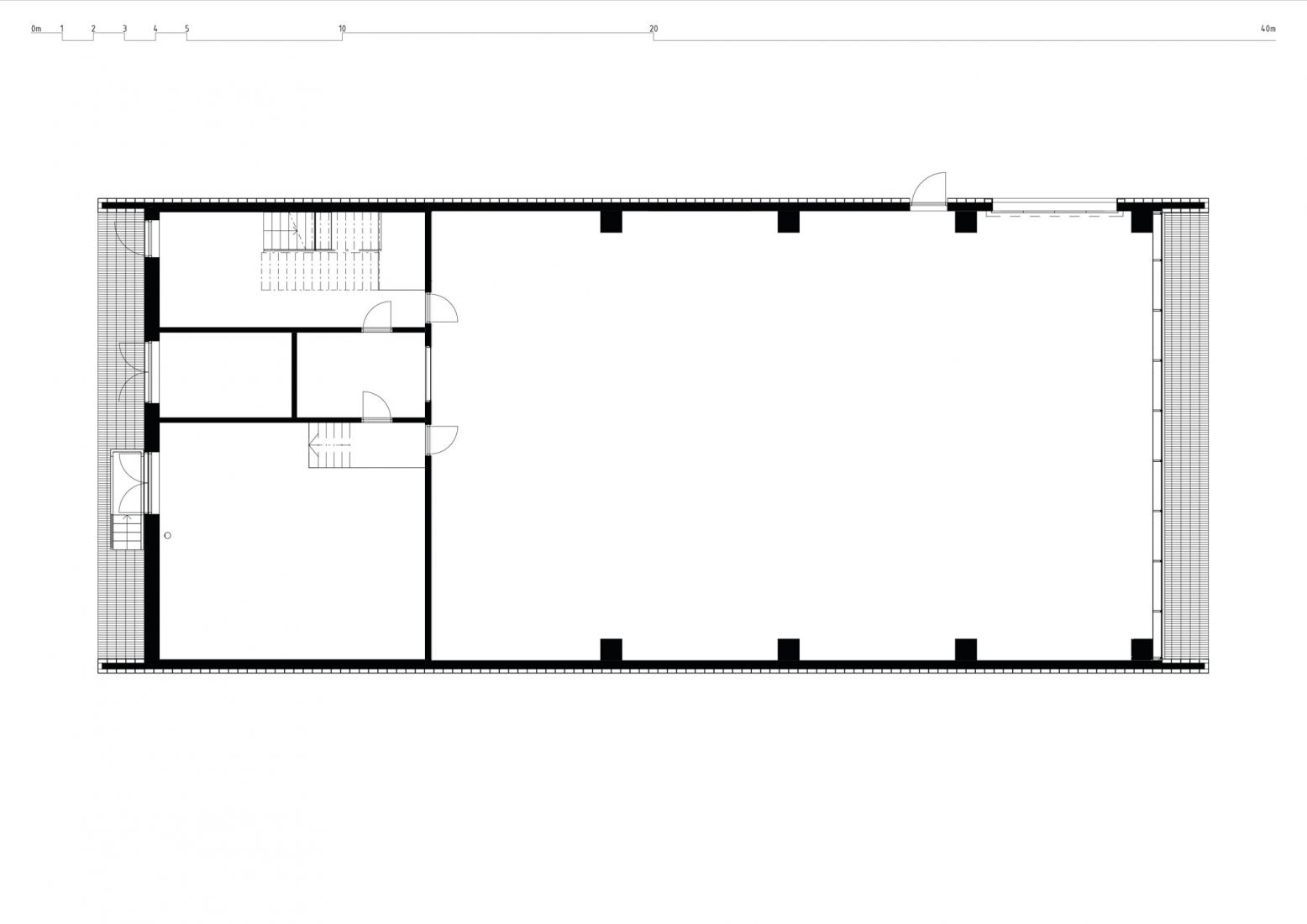
El edificio tiene dos plantas. La planta baja incluye una sala de equipos de proceso principal de doble altura, así como salas eléctricas y de control. Sobre esas estancias, en el segundo piso, se encuentra una sala de máquinas. Un conjunto de escaleras exteriores proporciona acceso desde el segundo piso hasta la azotea. La estructura y la envolvente del edificio se componen de piezas prefabricadas de hormigón.
Las fachadas longitudinales que dan a un estacionamiento y una calle adyacentes al sur y a la central eléctrica de Vuosaari B en el lado opuesto están revestidas con ladrillos rojos moteados en forma de ala, hechos a medida para el proyecto.
Las fachadas este y oeste son estructuras de doble piel. La fachada este tiene una capa interior formada por un muro cortina de vidrio revestido por una pantalla de tubos altos y delgados de acero pintado de blanco, que protege el espacio interior del sol. La fachada oeste da acceso a los espacios auxiliares de la planta baja, con una escalera recta de acero suspendida entre la pantalla exterior de varillas metálicas y una capa interior de hormigón in situ.
Edificio de bomba de calor Vuosaari por Virkkunen & Co Architects. Fotografía por Tuomas Kivinen.
Descripción del proyecto por
Virkkunen & Co Architects
Virkkunen & Co Architects Ltd. presenta el edificio de bomba de calor Vuosaari, una parte vital de la transición hacia la producción de energía neutra en carbono para 2030 para la empresa de electricidad, calefacción y refrigeración Helen Ltd., en la capital finlandesa, Helsinki. El proyecto convierte el exceso de calor de proceso de una planta de energía adyacente y el calor del agua de mar del cercano Mar Báltico en calor urbano que puede entregarse a los clientes.
El proyecto está ubicado en una central eléctrica primaria existente en el este de Helsinki, cerca del puerto de Vuosaari y del Mar Báltico. El nuevo edificio de la bomba de calor se encuentra junto a dos hitos arquitectónicos dominantes: la central eléctrica A de Vuosaari de 1987 y la central B de Vuosaari, construida en 1998 y proyectada por Virkkunen & Co Architects.
El nuevo edificio es una caja sencilla que encaja en el paisaje industrial existente. En el interior, una bomba de calor utiliza el exceso de calor de la circulación interna del agua de refrigeración de la central eléctrica existente en invierno y el calor del agua de mar durante aproximadamente la mitad del año. El cliente Helen Ltd considera que este tipo de instalaciones son un factor vital en su objetivo de lograr una producción de energía neutra en carbono de aquí a 2030.
El edificio de la bomba de calor tiene dos plantas. La planta baja incluye una sala de equipos de proceso principal de doble altura, así como salas eléctricas y de control. Sobre esas estancias, en el segundo piso, se encuentra una sala de máquinas. Un conjunto de escaleras exteriores proporciona acceso desde el segundo piso hasta la azotea. La estructura y la envolvente del edificio se componen de piezas prefabricadas de hormigón, producidas fuera de la obra y montadas como piezas prefabricadas en la obra. La arquitectura interior está informada por las superficies de hormigón expuestas de estas estructuras.
Edificio de bomba de calor Vuosaari por Virkkunen & Co Architects. Fotografía por Tuomas Kivinen.
Las fachadas longitudinales que dan a un aparcamiento y a una calle adyacentes al sur y a la central eléctrica de Vuosaari B en el lado opuesto están revestidas con ladrillo rojo moteado. Estas fachadas se basan en el contraste entre las variaciones vivas pero sutiles de color y forma de los ladrillos individuales y su disposición dentro de una cuadrícula rígida y exacta. El vínculo apilado hace referencia a los revestimientos de ladrillo rojo de la central eléctrica adyacente de Vuosaari B. Los ladrillos en forma de alas de las partes superiores de las paredes longitudinales del edificio de la bomba de calor se fabricaron a medida para el proyecto.
El edificio está ubicado junto a la entrada principal a toda el área de la central eléctrica. La fachada este que da a este punto de entrada es una estructura de doble piel con una capa interior que consiste en un muro cortina de vidrio revestido por una pantalla de tubos altos y delgados de acero pintado de blanco, que protege el espacio interior del exceso de calor y el resplandor de el sol. El edificio revela al público sus procesos internos.
Edificio de bomba de calor Vuosaari por Virkkunen & Co Architects. Fotografía por Tuomas Kivinen.
La fachada oeste da acceso a los espacios auxiliares de la planta baja. También presenta una estructura de doble piel, con una escalera recta de acero suspendida entre la pantalla exterior de varillas metálicas y una capa interior de hormigón in situ. Al igual que en la fachada este, las varillas se colocan en diagonal en el mismo ángulo que los ladrillos trapezoidales en los lados largos del edificio. Esta disposición tridimensional conecta los diferentes materiales y acabados en los cuatro lados del edificio.
Los tratamientos y detalles de la fachada siguen las divisiones de piso de los espacios interiores y las alturas de las habitaciones para comunicar los espacios internos del edificio con el exterior. Esto también lleva el edificio a una escala humana.
El proyecto recibió el Architecture MasterPrize en 2022. Este prestigioso reconocimiento enfatiza la perfecta integración del edificio en el paisaje industrial circundante, su enfoque energético sostenible y su cuidadosa combinación de materiales y acabados.
El diseño del proceso y la logística en el sitio definieron la ubicación del edificio. Su forma y materiales se basan en su contexto. Los ladrillos rojos en forma de alas en los lados largos del edificio fueron hechos a medida para el proyecto. El edificio eleva la calidad de su entorno industrial a través de medios arquitectónicos.
Virkkunen & Co Architects
Uros Kostic, Nina Rusanen.
Gestión de proyecto.- Paula Skog, Sami Sihvo, Helen Ltd.
Ingenieros.- Heikki Möttönen, M.Sc.(Techn.), Insinööritoimisto Heikki Möttönen Ltd.
Helen Ltd.
637 m².
2021.
Vuosaari, Helsinki, Finlandia.
Tuomas Kivinen.
Tuomas Kivinen, Nina Rusanen. Virkkunen and Co Architects Ltd
Virkkunen & Co Architects Ltd
es un estudio de arquitectura con sede en Helsinki, Finlandia, dirigido por
Tuomas Kivinen
y
Nina Rusanen
.. Fundada originalmente en 1954 como Arkkitehtitoimisto Erkko Virkkunen. Virkkunen & Co Architects tiene casi 70 años de experiencia en proyectos en Finlandia e internacionalmente.
La empresa se centra en el sector industrial, principalmente diseñando instalaciones de producción y distribución de energía. El trabajo de Virkkunen & Co Architects ha sido reconocido con diversas distinciones y premios nacionales e internacionales.
客服
消息
收藏
下载
最近































