查看完整案例

收藏

下载
Jugando entorno al pilar central. Escuela en Orsonnens por TED´A Arquitectes [Orsonnens. Friburg] Suiza
Jugando entorno al pilar central. Escuela en Orsonnens por TED´A Arquitectes
El proyecto de escuela agrícola in Orsonnens está en Suiza, un lugar alejado del Mediterraneo, la zona donde TEd’A arquitectes han desarrollado habitualmente su trabajo.
TEd’A arquitectes
El proyecto cambia los materiales terrosos utilizados por TEd’A arquitectes en proyectos como la vivienda de Jordi y Africa o la casa de Llúis y Eulàlia, pero en realidad su forma de trabajo es la misma, leer el entorno e interpretarlo, inteligentemente.
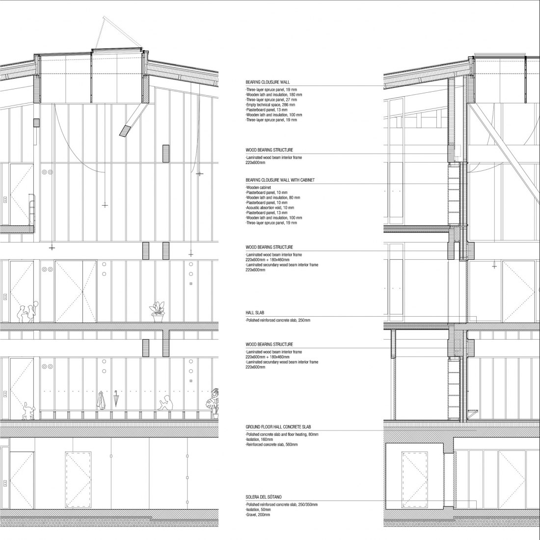
El proyecto del nuevo edificio escuela mira, no solo los materiales, también es reflejo de los modelos tradicionales de granjas agricolas de zona, de su claridad estructural y de sus espacios interiores, organizando el programa en el perimetro sobre un gran espacio central de varias alturas.
El proyecto, que acaba de ser premiado con el FAD Internacional 2018 (ex - aequo), fue valorado por el jurado en los siguientes terminos, "Un volumen compacto y neutro toma como modelo la construcción tradicional suiza para proyectar una mirada contemporánea sobre el sistema constructivo que lo define. El uso de la estructura no como mero actor mecánico, sino como estructurador espacial del programa, las circulaciones y la luz otorgan carácter al interior del volumen. La construcción atiende a las características de cada uno de los materiales usados sin que pierdan su independencia, pero aportando el valor que genera su convivencia: el peso reflejado en el apilado de la estereotomía de las piedras y la levedad del ensamblado tectónico de la madera. Las aulas se organizan de forma centrífuga alrededor de un vacío central que actúa de ágora del edificio, vacío habitado por una bella estructura arbórea definida por un pilar compuesto de madera. Un elemento constructivo capaz de explicar por si sólo todas las decisiones arquitectónicas de la obra, ejemplo de su coherencia."
TEd’A arquitectes
Una escuela agrícola (grangecole)
La propuesta lee el entorno y lo reinterpreta. La nueva escuela nace sobre la base de los modelos agrícolas tradicionales de esta zona. Estas granjas se caracterizan por un orden estructural claro que protagoniza el interior, una construcción honesta y un volumen neutral.
La estructura es espacio
En estos modelos tradicionales y en las nuevas orsonnens, la estructura escolar es el personaje principal, es el que da forma al interior del edificio. La claridad del orden estructural nos ayuda a resolver el programa y a caracterizar el interior.
La construcción es forma
La honestidad constructiva de los modelos tradicionales también está presente en el nuevo edificio de la escuela. Cada uno de los elementos constructivos se expresa formal e independientemente del resto.
Compacidad y neutralidad al aire libre
El edificio se compacta en una parte del área de estacionamiento actualmente ocupada, respetando la línea de árboles existentes dentro de la parcela y sin invadir el área que todavía es la naturaleza más allá de estos árboles.
Riqueza interna
Contra la neutralidad externa del volumen, el interior del edificio es complejo. El espacio interior es vertical y multiplica las relaciones visuales. Un pilar central se eleva escultóricamente al techo, donde se perfora para dejar pasar la luz.
La escuela alrededor de un vacío
El programa escolar está organizado alrededor de un espacio vacío. Las aulas giran alrededor de este vacío central. Este espacio será el punto de encuentro para los estudiantes, el punto de las relaciones sociales y el eje de movimiento. Este será un espacio lleno de vida y donde verá todo lo que rodea la actividad escolar.
TEd’A arquitectes. Irene Pérez and Jaume Mayol Toni Ramis, Tomeu Mateu, Margherita Lurani, Teresa Piferrer (TEd’A arquitectes)
Rapin-Saiz Architectes Mona Dorion, Valentin Rey, Camille Trechot, Nicolas Olivier (Rapin Saiz architectes)
Ingeniero civil madera. Ratio Bois Sàrl
Ingeniería Civil Hormigón.- 2M Ingénierie Civile SA
Ingeniería Eléctrica.- Bureau d’études en électricité Bernard Bersier
CVS Engineering.- Sacao SA
Aparejador.- GéoSud SA Glâne
Ingeniería Acústica.- Ecoacoustique
Especialista en Fachadas.- X-Made - Diseño de materiales y sobres
Concurso.- 2014. Primer Premio. Proyecto.- 2014-2016. Construcción.- 2016-2017
2.450,0 m²
7.700.000 CHF - € 6.624.058,37
Commune de Villorsonnens
Frutiger Fribourg SA, JPF-Ducret SA, Charpentes Vial SA, Erne Holzbau SA, Staremberg SA, Groupe E Connect SA, G.Sciboz SA,...
Irene Pérez - Jaume Mayol. TEd´A ARQUITECTES
TEd’A arquitectes es un pequeño estudio ubicado en Mallorca y formado por Irene Pérez y Jaume Mayol.
Irene Pérez (1976). Arquitecta por la ETSA Vallés (2001). Becada Workshop Oldemburg (1998), becada con estudios en la facultad de Roma Tré (1999). Colabora en los estudios Pérez-Moré arquitectes (1999-2001) y Joan Pascual arquitecte (2001-2004).
Jaume Mayol (1976). Arquitecto por la ETSA Vallés (2000). Doctor arquitecto cum laude por la UPC, con la tesis La arquitectura escolar de Guillem Forteza (1917-1943), dirigida por Josep Quetglas. Colabora en los estudios de Batlle i Roig (1999-2000) i RCR arquitectes (2000-2001). Profesor asistente del Máster “Arquitectura: crítica y proyecto” UPC, 2003. Profesor becado en la ETSA Vallés, 2003-2004. Profesor acreditado como Lector por el AQU Cataluña (2011). Profesor del curso de verano "mil pedreres". Profesor de Proyectos y Studio Design en la IE school de Madrid (2011-2014).
客服
消息
收藏
下载
最近













































































