查看完整案例

收藏

下载
O cubo e o vidro se completam. DMC ANKARA
O cubo e o vidro se completam. DMC ANKARA
O cubo e o vidro Projetar as vezes pode deixar nos arquitetos com uma pulga atras da orelha quando se
O post O cubo e o vidro se completam. DMC ANKARA apareceu primeiro em Df Projetos.
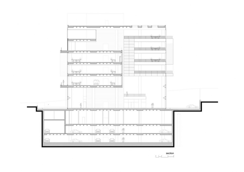
O cubo e o vidro
Projetar as vezes pode deixar nos arquitetos com uma pulga atras da orelha quando se quer fazer o melhor para seu cliente e muitas vezes deixamos de fazer o simples para tentar agradar de alguma forma o nosso amigo cliente, porem devemos pensar que o menos é mais sempre e veja neste exemplo na Turquia no predio destinado ao caal de tv o DMC Ankara que é feito basicamente de cubos de vidro em todo o seu projeto. O cubo e o vidro
O cubo e o vidro
Vejam que a forma se alia ao vidro e os detalhes em chapa de aço da o tom de magnitude e e grandiosidade para o predio e o formato em cubo da mais espaço e um melhor aproveitamento do terreno onde o edificil esta implantado, mas o masi importante é que mesmo o projeto sendo feito todo envidraçado os estúdios e areas intimas como banheiros e vestiários estão protegidas por detalhes em aço escovado e claro estão projetadas no meio do mesmo.
Ao entrar no edificil temos um conforto térmico fora do comum pois entradas de ar foram feitas nos detalhes e na parte superior do prédio para diminuir o intensidade do color turco fazendo com que seja feio uma economia no sistema de ar condicionados esses que são usados somente dentro de estúdios e outras áreas.
Por conta de todo o vidro usado no projeto a noite este predio da um show ajudando não só a ilumina a sua fachada mas tambem a perímetro da rua fazendo um segurança lumínica em sua partes mais fechadas da fachada. Uso de vidro sempre deve ser moderado nos projetos de arquitetura pois o preço dos mesmo tendem a ser mais caros, mas devemos pensar sempre no uso quando este faz com que de alguma forma se melhore os arredores do conjunto de areas urbanas. O cubo e o vidro
Designed:
2006
Completed:
2007
Project team:
Tabanlioglu Architects: Melkan Gürsel & Murat Tabanlioglu
客服
消息
收藏
下载
最近








