查看完整案例

收藏

下载
Kamil Fijak - NRO Studio architektury
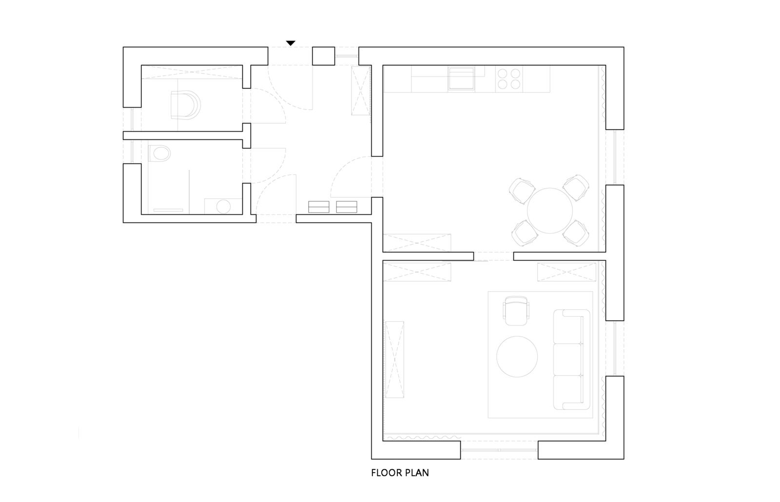
MIESZKANIE 59M | 2020
I wanted to create a place where I could meet a visual storytell. I decided to weave a bit of Polish design from the turn of the 70s into this story. This is how an armchair designed by Henryk Lis and a few chairs designed by Rajmund Hałas were placed here. It's a nice meeting of something old and new. This will be a good haven.
Żywiec,
Bonami
Catalano
Halmar
Ikea
Jawor Parkiet
Lindy
Samsung
Teka
3Ds Max,
AutoCAD,
SketchUp
Corona Render
Kamil Fijak - NRO Studio architektury
Bielsko-Biała
Polonia
客服
消息
收藏
下载
最近




























