查看完整案例

收藏

下载
Эко-квартира в сосновом лесу
Природная квартира для семьи с двумя детьми в Новосибирске
Автор проекта: Дунаев Кирилл, Дунаяева Анна
Объект: Эко-квартира в сосновом лесу
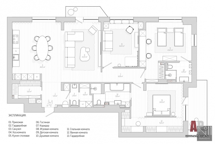
Общая площадь: 160 кв.м.
Уникальные характеристики обьекта: квартира в лесу с атмосферой загородного дома, интерьер как часть природного пейзажа, нейтральная природная палитра и натуральные текстуры, пространство для отдыха
Во входной группе много поверхностей, которые отражают свет – глянцевые панели, зеркала. Благодаря этому помещение не выглядит темным.
Гостиная с панорамными окнами имеет выход на террасу. Диван, Alf DaFre, модель California. Овальный журнальный столик, Cattelan Italia, модель Atollo. Кресло, Natuzzi, модель Viaggio. Столик у кресла, Vitra, модель Leather side tables.
Кухня объединена с гостиной. Исходная планировка квартиры была на редкость удачной: правильная геометрия, минимальное количество несущих конструкций, несколько грамотно расположенных мокрых зон, потолки высотой 3,3 метра и роскошные окна в пол.
Одна стена в гостиной оформлен обоями с природной текстурой, Thibaut, коллекция Natural Resource. Зеленый плед, H&M Home.
Зона столовой. Обеденный стол, Bontempi, модель Podium. Стулья, Alf DaFre, модель Karol. Светильники, Bontempi, модель Pandora.
Кухня-столовая с увеличенным в размерах кухонным фартуком. Рабочая столешница кухни выполнена из кварцевого агломерата.
Окно в пол наполняет кухню-столовую естественным светом.
Очень интересно оформлена кухня. Чтобы не загромождать пространство, дизайнеры решили отказаться от навесных кухонных шкафов и вместо них сделать каменное панно с активным рисунком мрамора Calacatta – своего рода увеличенный в размерах кухонный фартук. Для большего эффекта по периметру конструкция подсвечена светодиодной лентой.
Хозяйская спальня. Кровать с высоким изголовьем и прикроватный столик, Alf DaFre. Стена за кроватью облицована глянцевыми панелями серого цвета. На ней очень необычно выглядит золотой и серебряный геометричный декор.
Спальня выполнена в нейтральной серо-бежевой палитре и выглядит легко и изящно. Прикроватный столик, Alf DaFre, модель Hobby.
Спальная комната:
Хозяйке требовалась большая гардеробная, которую организовали благодаря перепланировке спального блока. Она получилось проходной с двумя симметричными проходами. Шкафы для хранения (от пода до потолка) скрыты за изголовьем. Прикроватный столик, Calligaris, модель Atollo.
Проходная гардеробная с макияжным столиком находится за изголовьем кровати. Пуф, Vitra, модель Visiona Stool.
В гардеробной рядом с дамским столиком дополнительно выделено место для хранения сумок, косметики и мелочей.
Ванная комната при спальне изначально имела неправильную форму: пространство получилось узким и вытянутым. Светлая плитка с рельефом, зеркала и освещение помогли решить эту проблему. Сантехника, Cristina Rubinetterie. Приставной столик, Duravit
Хозяйская ванная комната. Зеркальный шкаф над раковиной расширяет пространство. Керамогранит, Sant Agostino. Сантехника, Cristina Rubinetterie.
Детская двух сыновей-погодков с зонами для учебы и сна. Кровати Cilek, модель Trio. Настольные лампы, Artemide, модель Tolomeo table.
Интерьер детской. Встроенные шкафы размещены за лаконичными фасадами из МДФ с серой эмалью. Панно напротив кроватей, полки, столешница письменного стола – натуральный дуб.
Детская спальня. Окна квартиры обращены в лес, отчего создается ощущение загородного дома.
Детская игровая. Подоконник превращен в удобную лежанку. Зеленое кресло, Bonaldo, модель Lock. Медведь, Vitra, модель Resting bear.
Дети профессионально занимаются спортом. В игровой можно тренироваться, а также просматривать спортивные матчи и хранить награды.
В игровой разместили спортивное оборудование, подвесные конструкции, мини-скалодром.
Детская ванная комната решена в серо-голубой палитре.
Санузел получился компактным: с умывальником и душевой.
Планировка четырехкомнатной квартиры в новостройке с панорамными окнами и выходом в сад.
Концепция
На создание этого интерьера дизайнеров Кирилла и Анну Дунаевых («Бюро № 11») вдохновил пейзаж за окном. Квартира площадью 160 кв. м расположена на первом этаже нового жилого дома с современной архитектурой в Новосибирске. Ее панорамные окна выходят в лес, отчего создается ощущение, будто находишься в собственном доме или в удаленном от цивилизации эко-отеле.
Идею впустить природу внутрь и создать атмосферу неспешной загородной жизни заказчики поддержали с огромным энтузиазмом. Молодая пара с двумя детьми ведут активный образ жизни, любят спорт, путешествия и хотели получить интерьер, в котором много света, воздуха и простора. Из материалов им также были близки натуральные, «честные» фактуры, особенно дерево и камень: лаконичные, тактильные, с живописным природным рисунком.
Планировка
Исходная планировка квартиры была на редкость удачной: правильная геометрия, минимальное количество несущих конструкций, несколько грамотно расположенных мокрых зон, потолки высотой 3,3 метра и роскошные окна в пол. Прежде всего дизайнеры разделили объем на две части: приватную и общественную.
В приватной спроектировали мастер-спальню со встроенной гардеробной и своей ванной комнатой, общую для двоих сыновей спальню и детскую игровую. В общественной зоне они объединили кухню с гостиной и получили огромное светлое пространство с панорамными окнами и выходом на террасу. Притом, чтобы пространство выглядело более целостным, дизайнеры воспользовались осевой композицией и разместили рабочую поверхность кухни, столовую и диванную группу на одной линии. При входе они выделили мини-постирочную с гостевым санузлом, а также гардеробную для верхней одежды. В итоге получилось все так, как и хотели заказчики: свободные, не загроможденные пространства, много воздуха, света и прекрасные природные перспективы, воспринимающиеся как продолжение интерьера.
Декор
Интерьер выглядит как часть природного пейзажа. Светлое дерево, фактура камня, натуральная слюда и обои, имитирующие кору деревьев – вот основные детали этого лаконичного интерьера. Цветовая палитра также выбрана максимально комфортная: серые, бежевые и коричневые оттенки с изумрудными и брусничными акцентами.
Очень интересно оформлена кухня. Чтобы не загромождать пространство, дизайнеры решили отказаться от навесных кухонных шкафов и вместо них сделать каменное панно с активным рисунком мрамора Calacatta – своего рода увеличенный в размерах кухонный фартук. Для большего эффекта по периметру конструкция подсвечена светодиодной лентой. В спальне внимание привлекает проходная гардеробная с макияжным столиком. Входы в них организованы по обе стороны от кровати, а шкафы для хранения спрятаны за изголовьем, облицованным серыми лакированными панелями.
Комплектация объекта
Строительные и отделочные материалы и изделия
Обои Thibaut
Керамогранит Sant Agostino
Свет Bontempi (модель Pandora), Artemide (модели Dioscuri wall, La petite, Tolomeo table)
Ковры, поставщик «Мир ковров»
Аксессуары, поставщики BD Barcelona Design, H&M Home
Сантехника Cristina Rubinetterie, приставной столик Duravit
Мебель
Гостиная: диван Alf DaFre (модель California), журнальные столики Cattelan Italia (модель Atollo) и Vitra (модель Leather side tables), кресло Natuzzi (модель Viaggio)
Столовая: стол Bontempi (модель Podium), стулья Alf DaFre (модель Karol)
Кухня – изготовление фабрика «Камеа»
Спальня: кровать Alf DaFre, прикроватные столики Alf DaFre (модель Hobby), Calligaris (модель Atollo), пуф Vitra (модель Visiona Stool)
Детская комната: кровати Cilek (модель Trio)
Детская игровая: медведь напольный Vitra (модель Resting bear), кресло Bonaldo (модель Lock)
Фотограф: Сергей Красюк
Декоратор: Дарья Соболева
客服
消息
收藏
下载
最近



























