查看完整案例

收藏

下载
BUVUSIOS RADVILŲ VALDOS KONKURSAS: Triumfavo „Neue Architektūra“
Lietuvos architektų sąjunga bendrovės „Vastint Lithuania“ pavedimu surengė naujo viešbučio pastato ir greta jo esančio parko sutvarkymo Vilniaus Žygimantų gatvėje atvirą architektūrinio projekto konkursą. Ką tik paskelbti šio buvusios Radvilų valdos konkurso nugalėtojai – Gediminas Aismontas, Justina Jauniškytė, Domantas Baltrūnas, Darius Varanavičius (MB „NEUE ARCHITEKTŪRA“), parengę projektinė pasiūlymą devizu „145215“.
UAB „Vastint Lithuania“ buvusioje Radvilų valdoje Vilniaus Senamiestyje, Neries krantinėje (Žygimantų g. 3) planuoja įrengti viešbutį bei sutvarkyti greta jo esantį parką. Lietuvos architektų sąjungos (LAS) šiam tikslui suorganizuotam atviram architektūros konkursui iš viso buvo pateikti 9 projektiniai sumanymai. Konkurso prizinis fondas siekė 20.000 eurų.
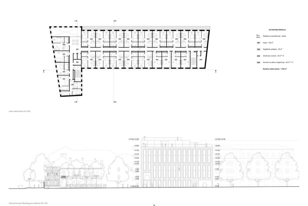
Kaip praneša LAS, konkurso 1-ąją vietą ir 9.000 eurų premiją laimėjo projektas devizu „145215“ (MB „NEUE ARCHITEKTŪRA“; autoriai: Gediminas Aismontas, Justina Jauniškytė, Domantas Baltrūnas, Darius Varanavičius). „Projektuojamas pastatas maksimaliai kiek leidžia programa atitraukiamas nuo Pietinės sklypo kraštinės – Radvilų rūmų liekanų. Tokiu būdu tūris priartinamas prie upės, sklypo ribose formuojamo parko ir Jono Juozapo Tiškevičiaus rūmų. Tūrio atitraukimas pietinėje sklypo dalyje sukuria erdvę vidiniam kiemui, kuriame numatoma eksponuoti Radvilų rūmų liekanas“, – konkursinio projekto aiškinraštyje savo sumanymą dėsto autoriai. Jų pasirinktas viešbučio užstatymo kontūras sklypą padalina į dvi dalis: šiaurinėje sklypo dalyje numatomas parkas ir prieigos prie pastatų, o pietinėje dalyje – vidinis kiemas, skirtas tik viešbučio lankytojams ir pravažiavimas. Pagrindinis įėjimas į viešbutį numatomas pastato šiauriniame kampe, kuris ribojasi su Radvilų gatve. Eksterjero apdailai architektai numatė naudoti akmens plokštes.
Naujo viešbučio pastato ir parko sutvarkymo Žygimantų g. 3 konkursinis projektas devizu „145215“ (arch. G.Aismontas, J.Jauniškytė, D.Baltrūnas, D.Varanavičius), 1-oji vieta, 9.000 Eur. premija.
Naujo viešbučio pastato ir parko sutvarkymo Žygimantų g. 3 konkursinis projektas devizu „145215“ (arch. G.Aismontas, J.Jauniškytė, D.Baltrūnas, D.Varanavičius), 1-oji vieta, 9.000 Eur. premija.
Naujo viešbučio pastato ir parko sutvarkymo Žygimantų g. 3 konkursinis projektas devizu „145215“ (arch. G.Aismontas, J.Jauniškytė, D.Baltrūnas, D.Varanavičius), 1-oji vieta, 9.000 Eur. premija.
Naujo viešbučio pastato ir parko sutvarkymo Žygimantų g. 3 konkursinis projektas devizu „145215“ (arch. G.Aismontas, J.Jauniškytė, D.Baltrūnas, D.Varanavičius), 1-oji vieta, 9.000 Eur. premija.
Naujo viešbučio pastato ir parko sutvarkymo Žygimantų g. 3 konkursinis projektas devizu „145215“ (arch. G.Aismontas, J.Jauniškytė, D.Baltrūnas, D.Varanavičius), 1-oji vieta, 9.000 Eur. premija.
Projektas devizu „3MITAS“ (autoriai: A.Songaila, B.Dedūrienė, S.Baublys, E.Marcinkevičienė, B.Sangavičius, D.Želvienė), 2-oji vieta, 6.500 eurų premija.
Projektas devizu „3MITAS“ (autoriai: A.Songaila, B.Dedūrienė, S.Baublys, E.Marcinkevičienė, B.Sangavičius, D.Želvienė), 2-oji vieta, 6.500 eurų premija.
Konkursinis projektas devizu „GALERY“ (autoriai: S.Mikštas, D.Špogis, G.Mikštienė, L.Rutkauskaitė, D.Kirkliauskaitė), 3-oji vieta, 4.500 eurų premija.
Konkursinis projektas devizu „GALERY“ (autoriai: S.Mikštas, D.Špogis, G.Mikštienė, L.Rutkauskaitė, D.Kirkliauskaitė), 3-oji vieta, 4.500 eurų premija.
客服
消息
收藏
下载
最近









