查看完整案例

收藏

下载
深圳南岸线的城市化
Urbanization of Shenzhen South Shoreline
基地位于一个混杂的城市肌理中,主题乐园、商品住宅、购物广场、城中村、湿地公园、办公总部基地彼此交织在一起。这片土地原为沙河农场,土地上种植着荔枝、水稻等农作物,南边的部分滩涂曾是蚝田。
The site is located in a mixed urban fabric, where theme parks, commercial housing, shopping malls, urban villages, wetland park, and office headquarters are intertwined. The land was originally the Shahe farm, where crops such as lychees and rice were planted, and part of the tidal flats in the south were oyster fields.
▼酒店旁的白石洲村,The Baishizhou village beside the hotel © 张超
在深圳快速城市化进程中,一部分农场被划拨成为华侨城经济开发区。在深圳经济特区成立初期,华侨城片区属于城市郊区,是远离城市中心的一片工业“飞地”。与此同时,随着西方文化的涌入,华侨城开始建设主题公园。锦绣中华、中华民俗文化村、世界之窗、欢乐谷主题公园陆续建成运营,以旅游业为主的第三产业快速扩张,带动了整个片区的发展建设。在城市整体商品房市场的发展推动下,片区内也开始陆续新建高层商品住宅以及商业综合体。
In the process of rapid urbanization in Shenzhen, a part of the farm was allocated to become the OCT Economic Development Zone. In the early days of the establishment of the Shenzhen Special Economic Zone, the OCT existed as an industrial enclave on the suburban periphery, distanced from the urban core. At the same time, with the influx of Western culture, OCT began to build theme parks. Splendid China, China Folk Culture Village, Window of the World, and Happy Valley theme parks were successively built and operated. The rapid expansion of the tertiary industry dominated by tourism has driven the development and construction of the entire area. Propelled by the city’s commercial housing market, high-rise commercial residential buildings and commercial complexes have also begun to be built in the area.
▼1993年正在建设中的世界之窗(左)上世纪80年代初的深圳湾(右),The Window of the World under construction in 1993 (left),Shenzhen Bay in the early 1980s (right)© 网络图片
余下的农场土地则因改制从集体用地转变为国有土地。华侨城内的工业厂房以及主题公园的建设促使片区内涌入大量低收入劳务人员。在农业生产空间逐渐消失以及住房需求激增的双重刺激下,村民们开始大量建设自建房,形成了如今遍布“握手楼”的城中村空间布局。
The remaining farmland transitioned from collective ownership to state ownership through institutional reforms. The construction of industrial plants and theme parks in OCT has led to a large influx of low-income laborers in the area. Amid vanishing agricultural space and surging housing demand, villagers began to build a large number of self-built houses, forming the spatial layout of the urban village with “handshake buildings” everywhere.
▼1972年基地周边环境,The surrounding environment of the base in 1972 ©墨照建筑设计事务所
▼1979-2022年华侨城产业发展,The industrial development of OCT from 1979 to 2022 ©墨照建筑设计事务所
在九十年代,由于土地资源紧张,深圳湾片区开始了大规模的围填海工程。然而生态环境保护的诉求制约了围填海进程,华侨城在南侧保留了约 125 公顷的原深圳湾滩涂并最终形成一个大湖区,成为如今的华侨城生态湿地公园和欢乐海岸。同时,凭借得天独厚的区位优势和自然条件,填海区域的核心地段被调整为深圳湾超级总部基地。
In the 1990s, due to the shortage of land resources, the Shenzhen Bay area began a large-scale reclamation project. However, the demand for ecological and environmental protection restricted the reclamation process. OCT retained about 125 hectares of the original Shenzhen Bay tidal flats on the south side and eventually formed a large lake area, which became the current OCT Wetland Park and OCT Harbour. Meanwhile, leveraging prime location and natural advantages, the core of the reclaimed land was repurposed as the Shenzhen Bay Super Headquarters Base.
▼深圳湾南部填海过程,The reclamation process in the southern part of Shenzhen Bay ©墨照建筑设计事务所
▼华侨城生态湿地公园鸟瞰,Bird’s-eye view of OCT Ecological Wetland Park © 墨照建筑设计事务所
▼改造前酒店外观,The exterior of the hotel before renovation ©墨照建筑设计事务所
填海后的一片湿地净土 A Preserved Wetland Oasis After Reclamation
酒店东侧的湿地公园是深圳海岸线南扩后保留的一片生态净土。在填海造城的背景下,这片在城市扩张浪潮中留下的湿地公园既是城市地貌变迁的记忆载体,更是当代生态保护意识的具象呈现。绿意盎然的湿地与毗邻的世界之窗主题公园在城市商务酒店中属于非常稀缺的自然资源条件,成为本项目中最宝贵的景观视野。基地南边的深圳湾超级总部在不久的将来也会成为酒店外部一道亮丽的城市风景线。
The wetland park on the east side of the hotel is an ecological pure land preserved after the southward expansion of Shenzhen’s coastline. In the context of reclamation and city building, this wetland park left in the wave of urban expansion is not only a memory carrier of urban landform changes, but also a concrete presentation of contemporary ecological protection awareness. The green wetland and the adjacent Window of the World theme park are very scarce natural resources in urban business hotels, and have become the most valuable landscape view in this project. The Shenzhen Bay Super Headquarters on the south side of the base will also become a beautiful urban landscape outside the hotel in the near future.
▼酒店紧邻世界之窗,The hotel is adjacent to the Window of the World © 张超
与此同时,自城市主干道转入酒店支路,高大小叶榄仁列植成荫,都市喧嚣被逐渐隔绝。因此,我们希望将场地外部自然脉络引入空间体验,营造惬意舒心的氛围,于喧嚣中辟一方静谧桃源。
▼酒店景观视野分析,Analysis of Hotel Landscape View © 墨照建筑设计事务所
At the same time, turning from the main road of the city to the hotel branch road, Terminalia neotaliala are planted in rows, and the hustle and bustle of the city is peeled off gradually. Therefore, we hope to introduce the external natural landscape into the spatial experience, create a comfortable and comfortable ambiance, and create a quiet paradise in the hustle and bustle.
▼嫣红色的标志性立面,The iconic facade in a red color© 偏方摄影
低成本的标志性立面
Economical And Iconic Facade
改造前的建筑立面是普通格子瓷砖,建筑形体有不规则的凹凸棱角,底部则是钢挂石材,整体显得凌乱而怪异,与旁边城中村的农民房类同。为回应业主轻改造的诉求,设计通过新增格子框架,以极简几何语言包裹原有建筑,形成一个完整的外观形态。嫣红色的选用,使酒店在一片绿色环境中跳脱出来,成为视觉焦点。
▼酒店格子框架分解图,Hotel grid frame decomposition diagram © 墨照建筑设计事务所
The original facade was ordinary lattice tiles, the building shape had irregular concave and convex corners, and the bottom was steel-hung stone. The overall appearance was messy and weird, similar to the self-built houses in the nearby urban village. In response to the owner’s request for lightweight renovation, the design added a grid frame to wrap the original building with minimalist geometric language to form a complete appearance. The choice of red hue makes the hotel stand out in a green environment and become a visual focus.
▼简洁不失灵动的格子框架,The simple yet dynamic grid frame©偏方摄影
▼光影下的立面,The facade under light and shadow ©偏方摄影
设计在格子框架上还点缀了穿孔波纹板,波纹的结构除了加强穿孔板的强度之外,其曲面造型也柔化了框架硬朗的几何线条。并且根据不同景观朝向以及建筑主立面的形象因素,不同立面波纹板数量与密度各异。与此同时,建筑原外墙扩大窗洞,以灰白色外墙涂料覆盖原有瓷砖肌理,形成中性且通透的底色,与嫣红外框架和谐搭配在一起。
The design also embellished the grid frame with perforated corrugated panels. In addition to strengthening the strength of the perforated panel, the curved surface shape of the corrugated structure also softens the tough geometric lines of the frame. And according to the different landscape orientations and the image factors of the main facade of the building, the number and density of corrugated panels on different facades vary. At the same time, the window holes on the original exterior wall of the building were enlarged, and the original tile texture was covered with gray-white exterior wall paint to form a neutral and bright base color, which is harmoniously matched with the red frame.
▼丰富的立面层次,Abundant facade layers ©偏方摄影
▼乌桕树与灌木丛围合入口空间,The entrance space is enclosed by Chinese tallow trees and bushes ©张超
为了突出酒店大堂,设计通过空间及景观的营造和丰富的立面材料来打造具有品质的入口形象。大悬挑的不锈钢雨棚满足落客功能的同时,创造出极具视觉张力的大堂入口。入口的西侧以低矮灌木丛点缀,北侧的乌桕遮挡消极的城中村界面并增添生机。在紧凑有限的空间内,设计通过造景与建筑立面的结合,为入口营造雅致的空间体验。
In order to highlight the hotel lobby, the design creates high-quality entrance through spatial processing and diverse facade materials. The large cantilevered stainless steel canopy meets the drop-off function while creating a lobby entrance with great visual tension. The west side of the entrance is dotted with low shrubs, and the Chinese tallow tree on the north side not only blocks the negative urban village interface but also infuses vitality into the entrance. In a compact and limited space, the design creates an elegant spatial experience for the entrance through the combination of landscaping and building facades design.
▼酒店门前的林荫路,The tree-lined road in front of the hotel ©张超
▼具有丰富材料层次的入口,The entrance with rich material layers ©张超
玻璃砖墙和方格铝型材不仅丰富了入口材料和形式的变化,也形成小尺度的视觉平衡,其灵感源自于具有传统岭南特色的彩窗及窗花。考虑到大堂看出窗外的效果,带有水纹肌理的玻璃砖墙在南面与通透玻璃间隔布置,呈现出朦胧与清晰画面之间的诗意过渡。为保证二楼的采光以及入口的立面整体性,方格铝型材以富有韵律的图案阵列布置,犹如几何窗花,勾勒出精致与灵动的入口形象。
▼酒店入口门头轴测图,Axonometric drawing of the hotel entrance © 墨照建筑设计事务所
The glass brick wall and gridded aluminum profile not only enrich the changes in entrance materials and forms, but also form a small-scale visual balance. Its inspiration comes from the colored windows and window paper-cut with traditional Lingnan characteristics. Considering the views from the lobby, the glass brick wall with water pattern texture alternates with clear glazing on the south facade, presenting a poetic transition between translucency and clarity. In order to ensure the lighting of the second floor and the integrity of the facade of the entrance, the gridded aluminum profile is arranged in a rhythmic pattern array, like a geometric window paper-cut, outlining a delicate and graceful entrance image.
▼封闭的入口回应嘈杂的外部环境,The closed entrance responds to the noisy external environment ©张超
▼南边大堂外的边庭,The side courtyard outside the south lobby ©张超
▼犹如几何窗花的方格铝型材,the gridded aluminum profile like geometric window paper-cut ©张超
▼傍晚室内外的冷暖色调,The warm and cool tones indoors and outdoors in the evening © 偏方摄影
视野绝佳的屋顶花园
Roof Garden With Excellent View
作为景观视野最好的屋顶空间,设计希望能提供最大的公共性和休闲娱乐给大众,因此结合屋顶花园,创造了一处深圳最美的屋顶休闲吧。穿孔锈板随时间氧化演变色彩,与乌桕树和琳琅满目的灌木丛共同围合出休闲观景的场所。客人可以在屋顶花园南瞰深圳湾超级总部天际线,东眺湿地公园生态画卷,也可以在周末夜晚,一边畅饮一边欣赏世界之窗的烟花秀,收获感受城市繁华与自然风景的双重体验。
▼屋顶花园轴测图,Axonometric drawing of the roof garden © 墨照建筑设计事务所
As the roof space with the best landscape view, the design hopes to provide the greatest publicity and leisure entertainment to the public. Therefore, combined with the roof garden, a most captivating rooftop leisure bar in Shenzhen is created. Perforated corten steel panels, evolving in color through oxidation, form a recreational space with the Chinese tallow trees and lush shrubs. From the rooftop garden, guests can overlook the Shenzhen Bay Super Headquarters skyline to the south and the ecological landscape of the Wetland Park to the east. They can also enjoy a drink while appreciating the fireworks show at Window of the World on weekend nights, and have the dual experience of feeling the bustling city and the natural scenery.
▼眺望华侨城湿地公园的屋顶花园,Rooftop garden with a view of the OCT Wetland Park ©偏方摄影
▼在屋顶眺望世界之窗,Look out at the Window of the World from the roof ©偏方摄影
▼光影下的穿孔锈板,Perforated rust plates under sunlight ©偏方摄影
小而美的大堂
Small But Exquisite Lobby
受限于产权条件,首层大堂空间局促,仅能满足前台招待和座椅等待的基础功能。同时大堂入口直面西晒与杂乱停车的马路,视觉体验感差。
Due to property rights, the first-floor lobby is cramped and can only meet the basic functions of reception and waiting. At the same time, the lobby entrance faces the west sun and the road with messy parking, which has a poor visual experience.
▼酒店入口门廊,Entrance porch of hotel ©偏方摄影
▼素雅的入口空间,The simple and elegant entrance space ©偏方摄影
▼边庭为大堂引光造景,The side courtyard brings light and creates a landscape © 张超
因此设计采用先抑后扬的空间处理手法,将酒店入口面以实墙隔绝西晒与纷杂街景,仅留入口通透玻璃面,并利用南向窄庭为大堂内部引光造景。在较为封闭的主立面中,客人从通透而显眼的入口门廊进入酒店大堂,视线被引至南侧纯净的边庭景观,空间层层递进,创造出小中见大的空间体验。
Therefore, the design adopts a space treatment method of first suppressing and then promoting. The hotel entrance is isolated from the west sun and the complicated street scene with a solid wall, leaving only the transparent glass surface of the entrance, and using the narrow southern courtyard to guide light and create landscape inside the lobby. In the relatively closed main facade, guests enter the hotel lobby from the transparent and conspicuous entrance porch, and their sight is directed to the pure side courtyard landscape on the south side. The space is progressive, creating a small-to-large space experience.
▼纯净的边庭景观,The pure side courtyard landscape ©张超
▼水纹肌理玻璃砖,the water-patterned glass bricks ©张超
▼虚实交织的景象,The scene interwoven with obscurity and clarity ©偏方摄影
除此之外,设计在较小的大堂内布置了一条长长的前台,为空间增添了另一种反差体验。超长的前台沿透视轴线延伸,成为大堂的核心视觉元素,增添了大堂空间的纵深感。前台旁木格栅与玻璃砖和通透玻璃交织形成丰富光影效果,配合简约的家具陈设与野趣干枝,营造出静谧雅致的氛围。
In addition, the design arranges a long front desk in the smaller lobby, adding another contrasting experience to the space. The extra-long reception desk extends along the perspective axis, becoming the core visual element of the lobby and adding a sense of depth to the lobby space. The wooden grille is interwoven with glass bricks and transparent glass to create a rich light and shadow effect. With simple furniture furnishings and wild branches, a quiet and elegant ambiance is created.
▼酒店大堂前台,The reception desk in the lobby ©张超
▼素雅的材料搭配,Simple and elegant material combinations ©张超
▼前台的材料细节,The material details of the front desk © 偏方摄影
▼捕捉光影的木格栅,Wooden grilles that capture light and shadow©偏方摄影
室内装饰沿用外立面的色系,天花采用仿木纹铝板,规律排列的铝格栅在满足机电有序布置的同时也丰富了天花层次。木纹纹理一路延续至沙发休闲区的背景墙面,而多层实木复合板赋予了墙面细腻的材料触感。
The interior decoration follows the color scheme of the exterior façade. The ceiling features imitation wood grain aluminum plate, while regularly arranged aluminum grilles not only accommodate the orderly layout of the mechanical and electrical systems but also enrich the ceiling layer. The wood grain texture continues all the way to the background wall of the sofa leisure area, and the multi-layer solid wood composite panel gives the wall a delicate material touch.
▼沙发休闲区,The sofa lounge area ©张超
▼具有秩序感的天花形式,The ceiling form with a sense of order ©偏方摄影
▼自然光线洒进沙发区,Natural light spills into the sofa area ©偏方摄影
▼光影下的沙发区局部,Partial details of the sofa area under light and shadow ©偏方摄影
引入自然风景的餐厅
Introducing Natural Scenery Into The Restaurant
餐厅与其他公共区域置于三层,并一同面向窗外高大的树林景观。在光线由暗到明的引导下,客人从昏暗的电梯厅步入餐厅的前厅。悬挂的水磨石墙虽然遮挡了景观,但通过悬空的底部引入光线。循着水磨石墙底部的光隙前行,客人随之转入光线充足的就餐区域。视线在数次转换后,窗外的景色最终呈现。这种先抑后扬的空间流线处理与大堂异曲同工,让客人在步行的过程中感受空间的趣味和变化。
▼酒店餐厅轴测图,Axonometric drawing of the hotel restaurant © 墨照建筑设计事务所
The restaurant and other public areas are placed on the third floor, facing the tall forest landscape outside the window. Guided by the light from dark to bright, guests walk from the dim elevator hall to the front hall of the restaurant. Although the suspended terrazzo wall blocks the view but brings in light through the suspended bottom. Following the light gap at the bottom of the terrazzo wall, guests finally turn into the bright dining area. After several changes of sight, the scenery outside the window finally comes into view. This spatial streamline treatment of first suppressing and then rising is similar to the lobby, allowing guests to feel the fun and changes of the space while walking.
▼酒店餐厅入口,Entrance of the hotel restaurant ©偏方摄影
▼红色水磨石突出餐厅入口,The red terrazzo highlights the entrance of the restaurant ©偏方摄影
▼开敞明亮的就餐区域,The open and bright dining area ©偏方摄影
▼入口的悬空墙体,The suspended wall enclosing the entrance foyer ©张超
原有建筑低矮层高的缺点随着大空间尺度及层次的处理而被巧妙消解。设计通过强化梁与墙体的连续感以及对应的地面铺装材料划分和吊顶空间的限定,将大空间切分为不同的就餐区域。
The shortcomings of the original building’s low floor height are cleverly eliminated with the treatment of large spatial scale and level. The original building height of third floor is as low as the guest room floor. The design divides the large space into different dining areas by strengthening the continuity between beams and walls, and the corresponding division of floor paving materials and limitation of ceiling space.
▼早餐布菲台区域,The Buffet area ©偏方摄影
▼不同红色系的材料搭配,A combination of materials in different red tones ©张超
▼具有秩序感的墙面,Walls with a sense of order © 偏方摄影
▼不同墙面的材料处理,Material treatment for different wall surfaces ©偏方摄影
餐厅的室内色彩延续建筑外立面的色系,窗边的天花吊顶用不均匀的嫣红水泥纹路质感来衬托窗外的自然风景。同时用深色木格栅墙面辅以搭配,打造沉稳静谧的就餐氛围。清晨东向阳光筛落树影,营造温暖明亮的早餐氛围。随着一天中时间和光线的变化,色温由暖转中性,也顺应着早餐至下午茶的功能转换。
The interior color of the restaurant continues the color of the building’s facade. The ceiling by the window uses mottled red cement texture to set off the natural scenery outside the window. In the early morning, the east-facing sunlight filters through the tree shadows, creating a warm and bright breakfast atmosphere. As time passes and daylight shifts throughout the day, the color temperature changes from warm to neutral, also following the functional transformation from breakfast to afternoon tea.
▼框景下的室外景观,The forest view outside the restaurant window ©张超
▼实墙形成取景框,Solid wall forms the view frame ©偏方摄影
▼实墙形成取景框,Solid wall forms the view frame©张超
▼早晨丰富的光影变化,The rich changes of light and shadow in the morning ©偏方摄影
▼高度角较低的早晨阳光,Morning sunlight with a low altitude Angle ©偏方摄影
▼中性光线下的餐厅,The restaurant in neutral light ©偏方摄影
▼富有韵律的立体图案,Rhythmic three-dimensional patterns ©偏方摄影
靠窗区域通过实墙划分限定出临窗用餐空间,隐藏柱子的同时形成若干取景框,将窗外林木框景呈现。为削弱实墙的笨重感,设计采用镂空的格栅并辅以变化立体的图案,富有韵律的细节也丰富了空间的序列和层次。
The window area is divided by solid walls to define the dining space next to the window, hiding the columns and forming several frames to frame the forest outside the window. To reduce the heaviness of solid walls, the design adopts hollowed grilles and is supplemented by changing three-dimensional patterns. The rhythmic details also enrich the sequence and layers of the space.
▼总平面图,Site-plan © 墨照建筑设计事务所
▼首层大堂平面,First floor lobby plan © 墨照建筑设计事务所
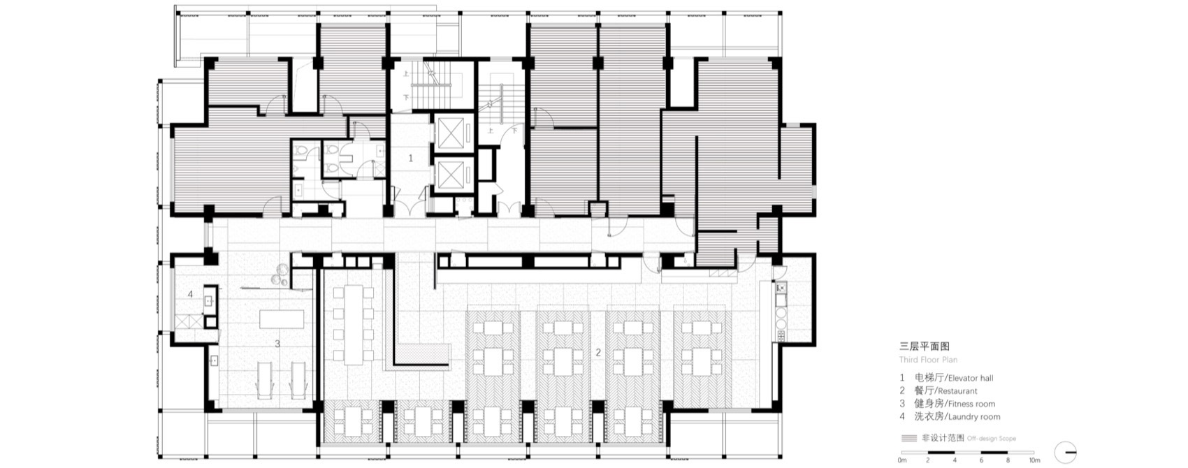
▼三层餐厅平面,Third floor restaurant plan © 墨照建筑设计事务所
▼墙身大样,Wall detail drawing © 墨照建筑设计事务所
▼屋顶大样,Roof detail drawing © 墨照建筑设计事务所
项目名称:深圳湾斐瑞酒店改造
项目类型:建筑
设计方:墨照建筑设计事务所
完成年份:2024
设计团队:曾冠生(主持设计师)、陈春建、朱梓坚、罗文国、林白、禹淼
项目地址:深圳市南山区
建筑面积:6200㎡
摄影版权:张超、偏方摄影
合作方:室内施工图:深圳市亚太深创建筑装饰工程有限公司;景观施工图:深圳东岸建筑与景观设计服务有限公司;结构顾问:深圳市墨格设计咨询有限公司;幕墙顾问:奥特尔设计咨询(深圳)有限公司;灯光顾问:谱迪设计顾问(深圳)有限公司;标识设计:深圳山筑设计有限公司
Project name:Renovation of Feria Hotel in Shenzhen Bay
Project type:Architecture
Design:MOZHAO ARCHITECTS
Completion Year:2024
Leader designer & Team: Guansheng Zeng(Leader designer)、 Chunjian Chen, Zijian Zhu, Wenguo Luo, Bai Lin, Miao Yu
Project location:Nanshan,Shenzhen
Gross built area: 6200㎡
Photo credit: Chao Zhang, Pianfang Studio
Partner:Interior construction drawing: ATST Interior Decorator Company
Landscape construction drawing: Shenzhen Dong ‘an Architecture and Landscape Design Service Co., LTD
Structural Consultant: Shenzhen Moge Design Consulting Co., LTD
Curtain wall consultant: OUTEL Design Consulting (Shenzhen) Co., LTD
Lighting Consultant: PUDI Lighting
Sign Design: Shenzhen Shanzhu Design Co., LTD
客服
消息
收藏
下载
最近


































































