查看完整案例

收藏

下载
Kuća s providnim plafonom u podrumu
Igor Conić,
22.12.2016.
Umesto mračnog i hladnog mesta gde niko ne želi da zalazi, stvorena je prostorija koju svi žele da vide.
Projektni biro
Neil Dusheiko Architects
dobio je zadatak da renovira kuću u zaštićenom delu Londonu. Intervencije na fasadi nisu bile moguće ali su zato imali odrešene ruke u enterijeru. Glavni zahvat urađen je u podrumskoj prostoriji koja je zahvaljujući
providnom plafonu od stakla
pretvorena u igraonicu za decu s kućnim bioskopom.
Trostruko vakuum staklo dovoljno je jako da podnese teret osoba koje hodaju pod njim ali i da toplotno i zvučno izoluje ove dve etaže međusobno.
Jedan deo poda u prizemlju koji se nalazi odmah uz dvorišni atrijum isečen je i umesto njega je postavljen stakleni pod sa
dva čelična profila
. Trostruko vakuum staklo dovoljno je jako da podnese teret osoba koje hodaju pod njim ali i da toplotno i zvučno izoluje ove dve etaže međusobno. Naravno, pošto je svetlosni otvor postavljen odmah pored velikih prozora, u podrum ulazi velika količina dnevne svetlosti čineći ga prijatnim za boravak dece i odraslih.
Tamni i mračni podrum pretvoren je prostoriju okupanu svetlošću u kojoj se pored igraonice nalazi i kućni bioskop ali i
hobi soba sa radnim delom
.
Princip otvaranja prostora primenjen je i na spratu. Tavanica koja je odvajala prostor spavaće sobe od potkrovlja je uklonjenja i tako je dobijen prostor sa velikom visinom. Na krov su postavljeni
krovni prozori
koji omogućavaju prodor velike količine svetlosti.
I kupatilo je dobilo svoje svetlosno okno!
Odmah iznad kade postavljen je krovni prozor
koji je dao potpuno novu dimenziju ovom prostoru.
Providni pod je zaista sjajno vizuelno rešenje – jedino se postavlja pitanje njegove praktične upotrebe. Naime, nisu svi tako hrabri kao ovo dete da hodaju po staklenom podu.
Nisu baš svi tako hrabri, kao ovo dete, da hodaju po staklenom podu…
Ka dvorištu su postavljeni aluminijumski prozori od poda do plafona koji
nemaju nosač na uglu
.
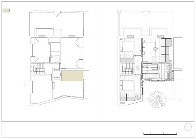
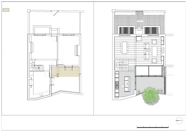
Crteži: osnove i preseci
Zahvaljujući staklenim podovima, sunce prodire kroz celu kuću
Osnova: Prethodno i novo stanje
客服
消息
收藏
下载
最近


















