查看完整案例

收藏

下载
Vilniuje, Kalnėnuose planuojamas naujas valstybinis darželis ir pradinė mokykla. Tai pirmasis valstybinis darželis ir mokykla šiame sparčiai išsiplėtusiame gyvenamajame rajone. Architektūros konkursą laimėjusi bendrovė „A2SM“ spalio viduryje pristatys šio darželio ir pradinės mokyklos komplekso projektinius pasiūlymus.
MOKYKLOJE IR DARŽELYJE SUTILPS BEVEIK 1.000 VAIKŲ
Vilniuje, Moravų g. 4 atsirasiančioje naujoje ugdymo įstaigoje galės mokytis 576 pradinukai ir 380 darželinukų. „Siekiame, kad kokybiška mokymosi aplinka būtų užtikrinta gyvenamuosiuose rajonuose, kuriuose gyvena daug jaunų šeimų su vaikais. Ugdymo įstaigos netoli namų suteikia saugumo tėvams, vaikams, padeda mažinti ir transporto spūstis“, – kalbėjo Vilniaus miesto meras Valdas Benkunskas.
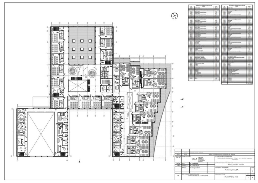
Bendrovės „A2SM“ architektų projektuojamą darželio ir pradinės mokyklos pastatą (SPV – A.Žukauskas, SPDV – A.Sasnauskas, arch. G.Prialgauskaitė) sudarys 3 dalys: pietrytinėje dalyje – dviejų aukštų darželis, centre – trijų aukštų pradinė mokykla bei pietvakarinėje dalyje – dviejų aukštų sporto salė.
Naujoji ugdymo įstaiga planuojama kaip išskirtinis kvartalo statinys. Tam projektuotojai siūlo fasadą dengti eglės dailylentėmis.
Darželis planuojamas funkciškai autonomiškas, tačiau tiek jo holas, tiek antrasis aukštas turės tiesiogines jungtis su pradinės mokyklos holu. Esant poreikiui darželio bendruomenė galės naudotis ir bendro naudojimo mokyklos erdvėmis. Be to, kiekviena darželio grupė turės terasą arba balkoną – tai suteiks papildomas erdves vaikų ugdymui lauke. Darželis turės ir atskirą nuo mokyklos įėjimą.
DAUG DĖMESIO KIEMUI IR ŽIEMOS SODUI
Darželinukams labai svarbus ugdymas lauke, todėl vidinis kiemas yra tiesiogiai ir lengvai pasiekiamas iš darželio. Vidinis kiemas saulėtas, atskirtas nuo pradinės mokyklos kiemo, jame planuojamos įvairios veiklos, kiekvienai grupei numatytos atskiros lauko zonos, smėlio dėžės, stoginės, žaidimų aikštelės. Taip pat bus sveikatingumo takas, daržo zona.
Darželio grupių patalpose formuojamos uždaros priėmimo-nusirengimo, atskiros virtuvėlės, poilsio ir žaidimų erdvės.
Pradinės mokyklos pastato centre projektuojamas atriumas – žiemos sodas, o aplink jį – bendrosios mokyklos erdvės. Jos bus šviesios, patrauklios, skirtos poilsiui, neformaliam ugdymui, parodoms.
Pirmajame mokyklos aukšte planuojama įrengti renginių salę, biblioteką, valgyklą, sporto ir šokių sales, dailės ir muzikos klases. Mokyklos antrajame ir trečiajame aukštuose bus pagrindinės ugdymo klasės bei užsienio kalbos, dorinio, gamtamokslinio ugdymo klasės.
Pradinė mokykla turės savo teritoriją vidiniame mokyklos kieme, kuriame planuojama įrengti lauko klases, sporto aikštelę, lauko žaidimų įrenginius, daržą, vaismedžių sodą ir kitas zonas, skirtas ugdymui ir mokinių laisvalaikiui.
Pastate numatyti liftai, pritaikyti žmonių, turinčių negalią, poreikiams.
Sklype projektuojamas pėsčiųjų takas su apšvietimu, kuris sukurs trūkstamą jungtį tarp Huculų ir Gurių gatvių.
PROJEKTĄ JAU PRISTATĖ VIETOS BENDRUOMENEI
Projektą prižiūrinčios Vilniaus vystymo kompanijos organizuotą atvirą architektūrinio projekto konkursą laimėjusi bendrovė „A2SM“ projektą jau pristatė Kalnėnų ir Pavilnio bendruomenei. Per renginį bendrovės direktorius, architektas Aurimas Sasnauskas parodė projekto, kurio idėja pavadinta „IR1 IR2“, vizualizacijas, brėžinius, kartu su rajono gyventojais analizavo, kaip būtų galima patobulinti projektą.
Projektuotojai kviečia gyventojus susipažinti su darželio-mokyklos ir jo aplinkos projektiniais pasiūlymais. Aptarti šiuos pasiūlymus projektuotojai pakvietė nuotoliniu būdu
spalio 14 dieną (pirmadienį) 16 val.
Norintys dalyvauti turės jungtis per renginio nuorodą (
) NNaujasis darželis ir pradinė mokykla duris turėtų atverti 2028 m.
Titulinis pav.: Vaikų darželis ir pradinė mokykla Kalnėnuose (projektuotojas – „A2SM“; SPV – A.Žukauskas, SPDV – A.Sasnauskas, arch. G.Prialgauskaitė).
Vaikų darželis ir pradinė mokykla Kalnėnuose (projektuotojas – „A2SM“; SPV – A.Žukauskas, SPDV – A.Sasnauskas, arch. G.Prialgauskaitė).
Vaikų darželis ir pradinė mokykla Kalnėnuose (projektuotojas – „A2SM“; SPV – A.Žukauskas, SPDV – A.Sasnauskas, arch. G.Prialgauskaitė).
客服
消息
收藏
下载
最近








