查看完整案例

收藏

下载
Природный Minimalism
Природный Minimalism
Diana
Место: Москва
Цветовая гамма:
Тип дома: ЖК «Новое Тушино»
Площадь: 45 кв. м
Стиль общее: Минимализм
Количество комнат: 2
Гостиная 12 кв. м
Кухня 12 кв. м
Ванная комната 5 кв. м
Коридор 5 кв. м
Гардеробная 6 кв. м
Балкон 5 кв. м
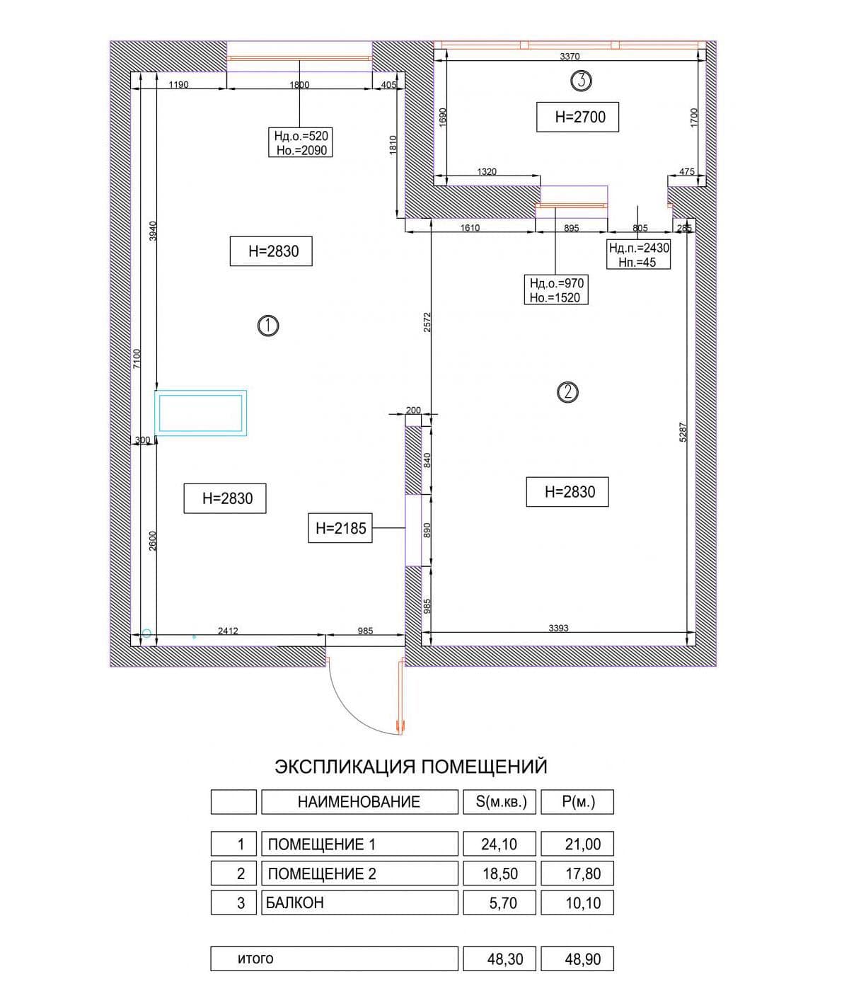
Планировка
Минимум деталей, функциональное использование каждого сантиметра площади и палитра естественных оттенков — три кита, на которых выстроен этот проект. Таковы были пожелания заказчиков, молодой пары, и дизайнеру мастерски удалось воплоить их в жизнь!
Гостиная 12 кв. м
Цветовая гамма:
Стиль: Минимализм
Метраж комнаты: 12.10 кв. м
Обстановка комнаты: Спальное место
Благодаря панорамным дверям-купе, гостиная плавно перетекает в крытую лоджию. Диван, использующийся для дружеских посиделок в дневное время, после опускания встроенной в стену за ним кровати, превращается в полноценное спальное место. Вместо традиционной люстры роль главного освещения взяли на себя множественные локальные потолчные светильники.
Кухня 12 кв. м
Цветовая гамма:
Стиль: Минимализм
Метраж комнаты: 12.20 кв. м
Планировка кухни: Угловая кухня
Обстановка кухни: Барная стойка, Кухонный уголок
Вся бытовая техника (за исключением духовки и микроволновки) спрятана за глухими фасадами гарниура без ручек. Таким образом дизайнер добился ощущения, будто это просто стена, а не гарнитур.
Для обеденной зоны использована узкая барная стойка и барные стулья вместо традиционных табуреток.
Напротив нее располагается небольшой диванчик на ножках. В место для сидения был преобразован и подоконник. А благодаря книжному шкафу и размещению рядышком камина здесь можно приятно проводить время не только в ожидании, пока закипит чайник.
Сдержанная палитра оттенков компенсируется интересной игрой бликов на глянцевых поверхностях гарнитура.
Ванная комната 5 кв. м
Цветовая гамма:
Стиль: Минимализм
Метраж комнаты: 5.00 кв. м
Обстановка ванной: С туалетом, Стиральная машина, Система хранения
Очень компактная ванная комната выполнена полностью в сером цвете, подчеркивающем белоснежность фаянса. Для оделки использовалось два вида плитки — срисунком под камень и мозаика. Ванна отделена стеклянной перегородкой, защищающей остальную часть комнаты от брызг. В нише возле входа спрятаны стиральная машинка и компактная система хранения
Коридор 5 кв. м
Цветовая гамма: Стиль: Минимализм
Метраж комнаты: 4.60 кв. м
Обстановка комнаты: С прихожей
Прихожая плавно перетекает в кухню. Благодаря отделке, дверь практически сливается со стеной. Шкаф для верхней одежды очень компактный, так как в квартире имеется отдельная гардеробная.
Гардеробная 6 кв. м
Цветовая гамма:
Стиль: Минимализм
Метраж комнаты: 5.70 кв. м
Если вы хотите выдержать квартиру в стиле минимализм – без гардеробной не обойтись.
Для отделки этой комнаты использованы темно-шоколадные оттенки. Открытые шкафы и полки скомбинированы с полупрозрачными фасадами-купе.
Балкон 5 кв. м
Цветовая гамма:
Стиль: Минимализм
Метраж комнаты: 5.30 кв. м
Балкон с панорамными окнами позволит удобно расположиться и наблюдать всю красоту рассветов и закатов.
Планировка
Diana
Настоящее имя: Диана
Сайт: +7 (916) 071-10-73 dp@dp-interior.ru
Услуги: Дизайн интерьера
Создаю и разрабатываю эксклюзивный дизайн-проект интерьера любого помещения: квартиры, дома, коттеджа, таунхауса.
Работаю в различных стилях: классическом, современном, стиле ар деко, стиле хай-тек. Дизайн проекты выполняются с учетом Ваших пожеланий и предпочтений и представляют уютные и максимально приспособленные для комфортной жизни интерьеры.
Последний визит: 1 год назад
客服
消息
收藏
下载
最近






















