查看完整案例

收藏

下载
Wohnen auf kleinem Raum: Wie eine Junggesellenbude in Mailand zur Familienwohnung wurde
7 Räume auf 70 Quadratmetern! Der Architekt Lorenzo Bini krempelte den Grundriss einer Single-Wohnung um – und lebt dort nun mit seiner dreiköpfigen Familie.
Auf die Größe kommt es nicht immer an! So machte Lorenzo Bini einen Small Space in Mailand zur praktischen Familienwohnung.
Wohnen auf kleinem Raum: Der Architekt Lorenzo Bini teilte sein 70-Quadratmeter-Apartment in zwei gleich große Bereiche – einer blieb Open Space, im anderen entstanden gleich sechs Mini-Räume.
Architekt Lorenzo Bini vom Mailänder Studio Binocle. André Lucat
Lorenzo Bini studierte in Mailand und Oslo und leitet seit 2011 das Architektenbüro Studio Binocle in Mailand, wo er neben seiner Tätigkeit als Architekt noch am Politecnico di Milano und an der Nuova Accademia di Belle Arti unterrichtet. Studio Binocle arbeitet nach dem Motto „The transformation of existing spaces shifting from temporary structures to permanent buildings and gardens“ und hat unter anderem Räume für Nike entworfen oder die historische Casa Corbellini-Wassermann renoviert. 2019 begann ein besonders persönliches Projekt für Lorenzo Bini, nämlich eine 70 Quadratmeter kleine Wohnung für seine eigene Familie umzubauen und einzurichten. AD sprach mit dem innovativen Architekten über das Wohnen auf kleinem Raum als Familie und die Ideen hinter dem Umbau.
Architekt Lorenzo Bini im AD-Interview
Sie haben ein 70-Quadratmeter-Apartment in Mailand zu einer maßgeschneiderten Wohnung für Ihre junge Familie gemacht. Wie sah es dort vor dem Umbau aus?
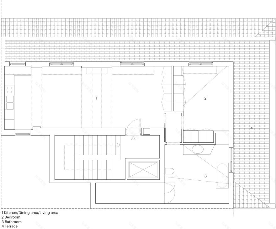
Am Anfang war es eine 70 Quadratmeter große Junggesellenbude für eine Person. Sie ist L-förmig geschnitten, befindet sich im obersten Stock und hat mehrere Dachschrägen. Vor dem Umbau besaß die Wohnung nur einen Main Space mit der Küche und dem Wohnbereich, ein Schlafzimmer und ein großes Bad. Wir haben dann einen Flur, zwei weitere Bäder, ein Schlafzimmer und einen Raum für die Dusche hinzugefügt.
Der Grundriss der Wohnung vor der Renovierung.
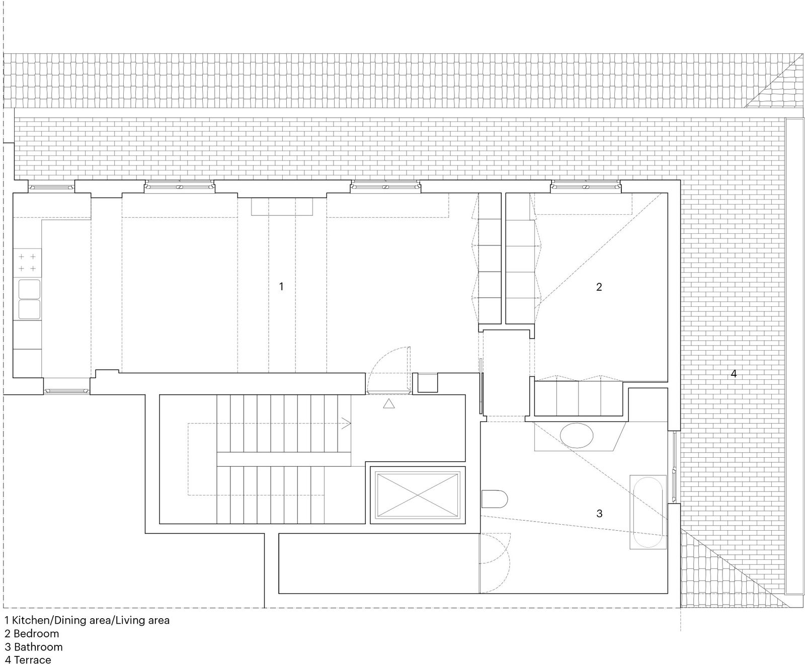
Nun verteilen sich also sieben Zimmer auf den gleichen Raum! Weshalb haben Sie die Wohnung so aufwändig umgebaut und nicht lieber gleich eine passend gegliederte Wohnung gesucht?
Es ist nicht einfach, in einer Großstadt wie Mailand eine gute Wohnung zu finden, die noch dazu in der Nähe von meiner Arbeit ist. Schon als ich diese Wohnung mit einem Makler besichtigte, begann ich, sie in meinem Kopf neu zu konzipieren. Sobald ich wieder zu Hause war, fing ich an, meine Ideen zu skizzieren. Bei einem solchen Umbau, wo man Auftraggeber und Architekt ist, kann es zum einen sehr einfach sein, weil man gewisse Entscheidungen ohne den Klienten treffen kann, und zugleich schwierig, da es das eigene Selbstbild und die eigenen Wünsche sind, bei denen man sich teils zu Kompromissen gezwungen sieht.
Der Grundriss der 70 Quadratmeter großen Wohnung nach dem Umbau.
Ein großer Raum und viele Mini-Zimmer – so ist es ideal für Familie Bini
Wie lange haben die Umbauten und Renovierungsarbeiten gedauert?
Insgesamt brauchten die Arbeiten fünf Monate, sie wurden jedoch durch die Pandemie unterbrochen.
Haben Sie sich bei der Planung auf einen bestimmten Raum oder ein Element fokussiert?
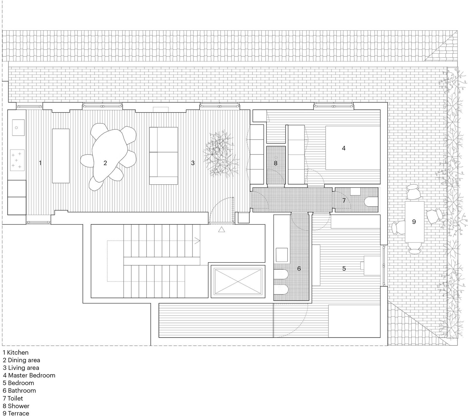
Ich wollte den Open Space, in dem wir auch manchmal Gäste empfangen, und die privaten Räume klar voneinander trennen. Die Wohnung ist deshalb nun in zwei Teile unterteilt: den Ess- und Wohnbereich mit der Küche und den Teil mit den Schlafzimmern und Bädern. Während der Wohnbereich offen ist und nur durch Möbelstücke räumlich gegliedert wird, ist der Schlafbereich pragmatisch strukturiert, mit einem schmalen Flur, der zu mehreren teils sehr kleinen Räumen führt.
Der offene Wohnbereich mit dem großen Marmortisch, der zum Essen, Arbeiten oder Spielen genutzt wird – oder für alles gleichzeitig.
Sie haben die Wohnung also in zwei etwa gleich große Bereiche geteilt: einen offenen und einen kleinteiligen?
Genau. Außerdem erfolgte eine weitere visuelle Gliederung der Räume durch verschiedene Materialien und Farben. Für die eher praktischen Räume, wie die Bäder und den Flur, wurden dunkelbraune Fliesen verwendet, und in den Zimmern, in denen man schläft und viel Zeit verbringt, wurde Parkett aus Hainbuche gelegt.
Theoretisch ergibt es schon Sinn, mehrere kleine Räume zu einem großen Raum zu fusionieren, aber für eine Familie ist es unmöglich, darin zu leben.
Kaum zu glauben, dass hier nur eine Person wohnte! Durch den neu eingefügten schmalen Flur erreicht man nun die Schlafzimmer und Bäder.
Abgesehen vom Open Space, ist das Kinderzimmer offenbar der größte Raum.
Ja, das stimmt. Die Größe der Schlafzimmer wurde an die Lage der Fenster angepasst und auch an ihre Nutzung. Unser Sohn bekam das Zimmer mit der größten Fläche und der niedrigsten Decke, da er noch relativ klein ist und dort genügend Platz zum Spielen hat. Meine Frau und ich teilen uns dagegen das Zimmer mit der höchsten Decke, aber einer kleineren Wohnfläche.
Das Kinderzimmer hat die größte Fläche – aber die niedrigste Decke.
Das Schlafzimmer von Lorenzo und seiner Ehefrau ist flächenmäßig kleiner, hat aber immerhin direkten Zugang zur Terrasse.
Small Space ist nicht gleich Small Space: Es kommt auf den Lebenskontext an
Normalerweise versucht man bei Wohnungen mit einer kleinen Fläche, möglichst wenige Räume oder sogar einen großen Raum zu schaffen, aber Sie haben das komplette Gegenteil gemacht. Wieso?
Theoretisch ergibt es schon Sinn, mehrere kleine Räume zu einem großen Raum zu fusionieren, aber für eine Familie ist es unmöglich, darin zu leben. Meine vorherige Wohnung hatte keine Türen, und der einzige abgetrennte Raum war das Bad, aber das wurde auf Dauer ein bisschen zu kompliziert, vor allem wenn man ein Kind hat, das ein eigenes Zimmer braucht.
Die Küchenzeile inklusive Dunstabzug duckt sich im Open Space passgenau unter die Schräge.
Was ist das Schönste an einem Small Space?
Man ist gezwungen, diszipliniert zu sein und gut auszuwählen. Jedesmal wenn man sich etwas zulegen möchte, muss man sich fragen, ob man es wirklich braucht und wo man es lagern kann. Ein Small Space bringt einem bei, organisierter zu leben.
Muss man für einen Small Space einen minimalistischen Einrichtungsstil haben?
Nein, das braucht man nicht! Ganz im Gegenteil. Früher hat man Bücher, Schallplatten und so weiter in seinen Wohnungen ausgestellt, aber die werden durch die Digitalisierung immer weniger. Für mich ist es eine Erleichterung, da ich persönlich diese plakative Präsentation von Büchern gar nicht so mag. Ohne sie wirken die Wände in einem Raum aber leicht nackt und leblos, deswegen sollte man sie durch Farbe, Dekor, Gemälde oder Fotografien „anziehen“. Und dadurch bewegt man sich automatisch weg von der Idee des Minimalismus.
Bilder an der Wand verleihen dem Open Space Leben.
Wenn wir schon beim Thema Einrichtung sind: Was halten Sie von multifunktionalen Möbeln?
Sie sind in extrem kleinen Räumen nützlich und fantastisch, aber riskant. Diesen Sommer war ich auf einem Boot, das mit genialen multifunktionalen Möbeln ausgestattet war, zum Beispiel dieser wandlungsfähigen Tafel in der Toilette, die sich im Handumdrehen in eine Dusche verwandeln ließ. Leider verlangen solche Wandlungstalente eine gewisse Experimentierfreude, technisches Wissen und viel Kleingeld. Ich bevorzuge eher flexible Möbelstücke, die freien Raum für die Interpretation der Nutzung erlauben, wie beispielsweise der birnenförmige Marmortisch aus unserer eigenen Kollektion. Momentan nutzen wir die breite Seite zum Essen und die schmale Seite zum Arbeiten, oder unser Sohn spielt dort.
Wenn man eine kleine Wohnung für eine Familie einrichten möchte, empfiehlt Lorenzo Bini flexible Möbel wie den rosafarbenen Marmortisch, die Raum für die Interpretation der Nutzung lassen.
Bei uns in der Redaktion stellen wir uns oft die Frage, ab wann ein Haus oder eine Wohnung als Small Space gelten kann. Was ist Ihre Definition?
Es kommt nicht immer auf die Größe oder Fläche an. Man sollte auch immer auf die Beziehung zur Außenwelt achten und wie diese zur Größe der Wohnung steht. Ich persönlich bevorzuge eher mehr Fenster als mehr Quadratmeter.
客服
消息
收藏
下载
最近














