查看完整案例

收藏

下载
Superform arhitekti Nazarje 2016
Proširenje slovenačke fabrike inspirisano zupčanikom
Po projektu biroa Superform iz Ljubljane u Nazarju je izvedeno proširenje fabrike pogonskih sklopova Podkrižnik.
Klijent je imao potrebu da se preseli u novi objekat ali da u isto vreme obnovi staru zgradu kako bi bolje odgovarala uslovima
energetske efikasnosti
. Kako je postojeći objekat rađen u vreme kasnog modernizma, on je imao veliki potencijal za redizajn. Pogledajte kako je to na kraju ispalo!
Nova ventilisana fasada sa metalnim brisolejima obezbeđuje neophodan zaklon od sunca.
Ideja za novu fasadu proistekla je iz forme zupčanika koji je jedan od proizvoda koji se pravi u ovoj fabrici. „Baš kao što ovaj površinski element pokreće motore u prostoru, tako je i na fasadi napravljen efekat koji se prepliće iz druge u treću dimenziju“, kažu arhitekti iz biroa Superform.
Inspiracija za fasadu
Metal i staklo, dva materijala koja su korišćena na fasadi fabrike, na najbolji mogući način izražavaju identitet klijenta. Ovaj suptilni omotač zgrade u potpunom je
skladu za delikatnom okruženjem
slovenačkom mestašceta Nazarje.
Održivost
Nova
ventilisana fasada
sa metalnim brisolejima obezbeđuje neophodan zaklon od sunca. Dimovano staklo dodatno pomaže u održavanju temperature unutar objekta, a zahvaljujući svim ovim inovacijama
potrošnja energije za rashlađivanje prostora značajno je smanjena
.
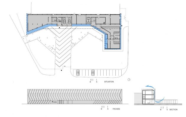
Objekat površine 1.400 kvadrata projektovale su arhitekte
Marjan Poboljšaj
,
Anton Žižek i Špela Gliha
iz biroa
Superform
.
Nekad i sad
Crteži objekta
客服
消息
收藏
下载
最近













