查看完整案例

收藏

下载
אקלקטיות בשחור-לבן: שיפוץ דירה ישנה בהוד השרון
אקלקטיות בשחור-לבן: שיפוץ דירה ישנה בהוד השרון
מדרגה אחת בסלון הוסרה, והחלל הציבורי נפתח לרווחה והפך דירה ישנה לדירה הרמונית, המבוססת על שילוב חומרים עם משחקים של שחור-לבן ואפור, צמחייה ומדפים פתוחים
תקציב:
500,000
₪
שטח בנוי:
150
מ"ר
עיצוב פנים:
דיקלה גלזר עיצוב פנים והום סטיילינג
הדיירים:
זוג עם ילדה + כלבה
המקום:
הוד השרון
זוג בתחילת שנות ה-30 התגורר במשך כמה שנים ביחידה אצל ההורים, וחלם על בית משלו. לאחר חיפוש ממושך הבינו השניים, כי דירה חדשה לא תתאים מבחינת הגודל והפוטנציאל, והחליטו לשנות כיוון לדירה ישנה וגדולה, שתתאים בדיוק לצרכיהם ולחלומותיהם. הדירה הייתה אומנם ישנה ומוזנחת, אך החלוקה הבסיסית שלה הייתה נכונה, ולכן התאפשר להשקיע את מרב התקציב בחידוש התשתיות.
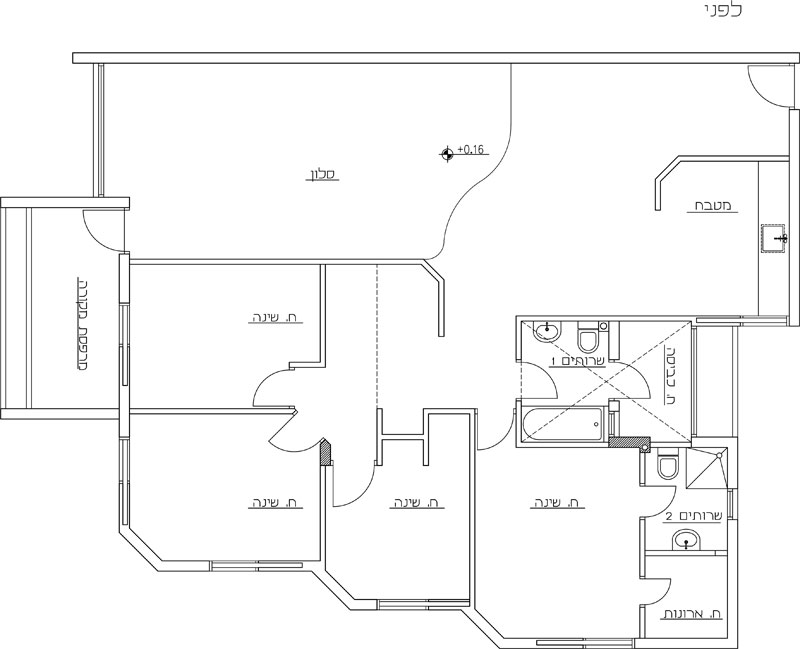
במקום למחוק ולהרוס כדי לבנות מחדש, לפעמים מספיקה שבירה של קיר בודד או הסרת מדרגה כדי לשנות נראות של חלל שלם, וזה מה שנדרש במקרה זה כדי להוציא מהחלל את מיטבו ולנצל באופן מקסימלי את גודלו לצרכים פונקציונליים. במהלך השיפוץ, שארך כחמישה חודשים, נהרסה מדרגה שהפרידה בין המטבח לסלון, והקיר במבואת הכניסה הוסר לטובת יצירת נישה חדשה לארון אחסון. פעולה זו אפשרה את הרחבת שטח המטבח ויצירת חלל אחד פתוח.
המדרגה בסלון הוסרה
עבודות השיפוץ כללו טיפול מקיף בתשתיות חשמל, אינסטלציה, מיזוג אוויר ואלומיניום, שחודש בכל הבית. גם המטבח תוכנן מחדש, נעשתה נגרות לכל הבית, נבחרו ריצופים, חיפויים ופרקט חדש, הדירה נצבעה כולה ובסופו של תהליך עבר חלל הבית סטיילינג מוקפד.
גוונים עדינים המשלבים צבעי שחור, לבן ואפור
שילוב של צמחייה ירוקה וחמימות בסלון
הנקודות המנחות בעיצוב היו בית מינימליסטי בעל קווים נקיים, עם שמירה על תחושת חמימות ומשפחתיות. כמו כן, ניתנה חשיבות למקומות אחסון ופונקציונליות ונעשה שימוש בגוונים עדינים המשלבים צבעי שחור, לבן ואפור עם נגיעות מתונות של צבע וצמחייה ירוקה.
דרישת הדיירים הייתה מטבח גדול ומפנק, עם מקומות אחסון רבים ואי שישמש לארוחות יומיומיות. לצד כל אלה ניתן טאץ' שונה לנראות הבית באמצעות שילוב אקלקטי של חומרים: עץ, ברזל ומתכת, משחק של שחור, לבן ואפור ונגיעות של ירוק באמצעות צמחים. מדפים פתוחים נתנו הן מענה שימושי והן מענה עכשווי, המדבר בשפה ייחודית עם נגיעות של פריטים ושיק עדכני.
חלל פתוח עם הסלון
נגיעות מתונות של צבע וצמחייה ירוקה
בפינת המשפחה הוסר הקיר הפינתי' במטרה להפוך אותv לחלל מזמין עם אפשרות לקשר עין עם המטבח – מכיוון שלבני הזוג היה חשוב לשמור על התא המשפחתי ולייצר פינה שתשמש בעתיד גם להרחבת המשפחה. בנישה לטלוויזיה תוכנן ארון נגרות, המשלב בתוכו מדפים פתוחים לספרים ויחידות סגורות לאחסון משחקים ופריטים שונים המשמשים את כל בני הבית.
פינת המשפחה שומרת על קשר עין עם החלל הציבורי
ביחידת ההורים, שהייתה מאופיינת בצפיפות רבה, המיטה הייתה ממוקמת מול הדלת כשלצידה כניסה למקלחת קטנה, ישנה ומוזנחת וחדר ארונות קטן ולא פרקטי. בתקרה היה בוידעם ישן, שיצר תקרה נמוכה ואנרגיה דחוסה. כאן היה ברור שיש לבצע שינוי מהותי כדי לייצר יחידת הורים מפנקת ומזמינה עם אפשרויות אחסון מרובות. לצורך כך, הבוידעם פורק, ודלת הכניסה למקלחת נסגרה בקיר כדי לייצר מקלחת הורים מרווחת עם ארון.
חדר השינה של ההורים
חדר השינה הורחב לטובת יצירת נישה לארון בגדים גדול, המשלב בתוכו גם את הטלוויזיה. גם פה נעשה שימוש בצבעים של שחור, לבן ואפור. נבחר ריצוף בשחור-לבן, הקירות בחללים הרטובים חופו בבריקים לבנים עם רובה אפורה ולארון נבחר צבע אפור גרפיט. שאר הקירות נצבעו בשליכט אקרילי בצבע אפור אבן.
חדר הרחצה של ההורים
אמבטיית הילדים הורחבה על חשבון חדר הכביסה. ארונות תוכננו בהתאמה אישית לאחסון ולכביסה. במסתור הכביסה נבנתה במה עבור מכונת הכביסה והמייבש, ונבחרו אריחים בשחור-לבן עם חיפוי בלבן ורובה אפורה.
חדר האמבטיה של הדירה
חדר השינה של הילדה תוכנן בגוונים ניטרליים עם חשיבה קדימה, ונגיעות הצבע היו בסטיילינג ובבחירת האקססוריז. חצי קיר נצבע באפור, ומדפים נתלו לטובת ספרים ופריטי עיצוב.
חדר הילדה בגוונים ניטרליים עם חשיבה לעתיד
תוכנית הבית החדש:
תוכנית הבית לפני השיפוץ:
הדירה לפני השיפוץ:
רשימת ספקים חלקית:
קבלן מבצע: ארמון סבג, שיפוצי ארמון
אלומיניום: נפתלי סבג
פרקט ודלתות פנים: פרקט פור יו
נגרות: אילן נגריה
וילונות: רוזבד
ריהוט: האסם, ניו וינטאג'
אקססוריז ואביזרים משלימים: פתק דיזיין, גולף & קו, מיקה בר, נעמה סגל, מינימליסט, גליפס, הביתה, ה. חבושה, NOMA
客服
消息
收藏
下载
最近

















