查看完整案例

收藏

下载
majo architekti - Pavilon IMPAKT MFF UK
Autoři návrhu si kladli za cíl, aby architektura nového pavilonu souznila s architekturou celého areálu MFF, který navrhl před více než 50 lety Karel Prager. Původní tvarosloví nebylo možné ani vhodné doslovně kopírovat, šlo spíše o hledání vnitřních souvislostí a odkazů. Z toho důvodu má dům fasádu z titanzinku, která díky příměsím mědi podobně jako opakní sklo na okolních objektech výrazněji mění své zabarvení v závislosti na světelných podmínkách. Interiérová stěna z jasanových latí, která vede návštěvníka od vstupu až k velké posluchárně, je zase odkazem na původní keramický obklad poslucháren T1 a T2, které se nacházejí v původních budovách areálu.
Pavilon IMPAKT MFF UK, majo architekti / Jan Jaroš, Štěpán Jablonský © Jiří Alexander Bednář
Autoři dále chtěli, aby architektura pavilonu v sobě nesla něco z oborů, kterým měla od počátku sloužit. Podobně jako je matematika obor navenek přísný, možná trochu odtažitý, uvnitř ale čistý a krásný, jdoucí k podstatě věci, tak i nový pavilon IMPAKT aspiruje na podobnou dichotomii mezi přísným, tmavým exteriérem, a tvarově čistým, světlým interiérem, který návštěvníka nezahlcuje množstvím detailů, ale pracuje se základními ingrediencemi architektury - prostorem a světlem.
Pavilon IMPAKT MFF UK, majo architekti / Jan Jaroš, Štěpán Jablonský © Jiří Alexander Bednář
Autoři dále chtěli, aby dům byl v rámci své jednoduché hmoty co nejvíce pavilonem v zeleni. Aby, ač v zásadě triviální trojtrakt, poskytoval co možná největší kontakt s vnějším prostředím. Proto má dům hlavní vstup ve dvou úrovních a proto jsou příčky do učeben prosklené, takže když člověk stojí uprostřed chodby ve 3.NP, vidí hned do všech čtyř světových stran a vystoupí-li do čtvrtého patra, otevře se mu nad hlavou nebe.
Pavilon IMPAKT MFF UK, majo architekti / Jan Jaroš, Štěpán Jablonský
Foto: Jiří Alexander Bednář
Pavilon IMPAKT MFF UK, majo architekti / Jan Jaroš, Štěpán Jablonský
Foto: Jiří Alexander Bednář
Pavilon IMPAKT MFF UK, majo architekti / Jan Jaroš, Štěpán Jablonský
Foto: Jiří Alexander Bednář
Pavilon IMPAKT MFF UK, majo architekti / Jan Jaroš, Štěpán Jablonský
Foto: Jiří Alexander Bednář
Pavilon IMPAKT MFF UK, majo architekti / Jan Jaroš, Štěpán Jablonský Foto: Jiří Alexander Bednář
Pavilon IMPAKT MFF UK, majo architekti / Jan Jaroš, Štěpán Jablonský Foto: Jiří Alexander Bednář
Pavilon IMPAKT MFF UK, majo architekti / Jan Jaroš, Štěpán Jablonský Foto: Jiří Alexander Bednář
Pavilon IMPAKT MFF UK, majo architekti / Jan Jaroš, Štěpán Jablonský Foto: Jiří Alexander Bednář
Pavilon IMPAKT MFF UK, majo architekti / Jan Jaroš, Štěpán Jablonský Foto: Jiří Alexander Bednář
Pavilon IMPAKT MFF UK, majo architekti / Jan Jaroš, Štěpán Jablonský Foto: Jiří Alexander Bednář
Pavilon IMPAKT MFF UK, majo architekti / Jan Jaroš, Štěpán Jablonský Foto: Jiří Alexander Bednář
Pavilon IMPAKT MFF UK, majo architekti / Jan Jaroš, Štěpán Jablonský Foto: Jiří Alexander Bednář
Pavilon IMPAKT MFF UK, majo architekti / Jan Jaroš, Štěpán Jablonský Foto: Jiří Alexander Bednář
Pavilon IMPAKT MFF UK, majo architekti / Jan Jaroš, Štěpán Jablonský Foto: Jiří Alexander Bednář
Pavilon IMPAKT MFF UK, majo architekti / Jan Jaroš, Štěpán Jablonský Foto: Jiří Alexander Bednář
Pavilon IMPAKT MFF UK, majo architekti / Jan Jaroš, Štěpán Jablonský Foto: Jiří Alexander Bednář
Pavilon IMPAKT MFF UK, majo architekti / Jan Jaroš, Štěpán Jablonský Foto: Jiří Alexander Bednář
Pavilon IMPAKT MFF UK, majo architekti / Jan Jaroš, Štěpán Jablonský Foto: Jiří Alexander Bednář
Pavilon IMPAKT MFF UK, majo architekti / Jan Jaroš, Štěpán Jablonský Foto: Jiří Alexander Bednář
Pavilon IMPAKT MFF UK, majo architekti / Jan Jaroš, Štěpán Jablonský Foto: Jiří Alexander Bednář
Pavilon IMPAKT MFF UK, majo architekti / Jan Jaroš, Štěpán Jablonský Foto: Jiří Alexander Bednář
Pavilon IMPAKT MFF UK, majo architekti / Jan Jaroš, Štěpán Jablonský Foto: Jiří Alexander Bednář
Pavilon IMPAKT MFF UK, majo architekti / Jan Jaroš, Štěpán Jablonský Foto: Jiří Alexander Bednář
Pavilon IMPAKT MFF UK, majo architekti / Jan Jaroš, Štěpán Jablonský Foto: Jiří Alexander Bednář
Pavilon IMPAKT MFF UK, majo architekti / Jan Jaroš, Štěpán Jablonský Foto: Jiří Alexander Bednář
Pavilon IMPAKT MFF UK, majo architekti / Jan Jaroš, Štěpán Jablonský Foto: Jiří Alexander Bednář
Pavilon IMPAKT MFF UK, majo architekti / Jan Jaroš, Štěpán Jablonský Foto: Jiří Alexander Bednář
Pavilon IMPAKT MFF UK, majo architekti / Jan Jaroš, Štěpán Jablonský Foto: Jiří Alexander Bednář
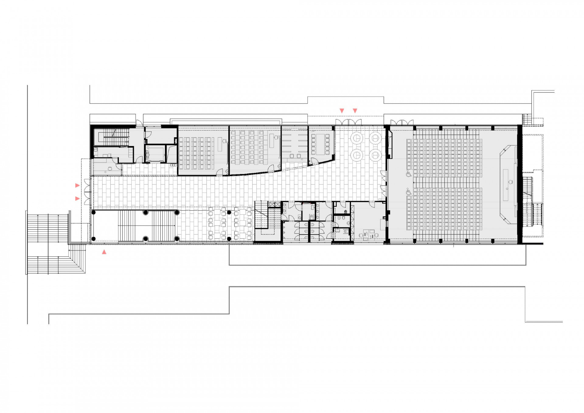
Pavilon IMPAKT MFF UK, majo architekti, půdorys 2NP 22/22
Pavilon IMPAKT MFF UK, majo architekti / Jan Jaroš, Štěpán Jablonský Foto: Jiří Alexander Bednář
Pavilon IMPAKT MFF UK, majo architekti / Jan Jaroš, Štěpán Jablonský Foto: Jiří Alexander Bednář
Pavilon IMPAKT MFF UK, majo architekti / Jan Jaroš, Štěpán Jablonský Foto: Jiří Alexander Bednář
Pavilon IMPAKT MFF UK, majo architekti / Jan Jaroš, Štěpán Jablonský Foto: Jiří Alexander Bednář
Pavilon IMPAKT MFF UK, majo architekti / Jan Jaroš, Štěpán Jablonský
Foto: Jiří Alexander Bednář
Pavilon IMPAKT MFF UK, majo architekti / Jan Jaroš, Štěpán Jablonský Foto: Jiří Alexander Bednář
Pavilon IMPAKT MFF UK, majo architekti / Jan Jaroš, Štěpán Jablonský Foto: Jiří Alexander Bednář
Pavilon IMPAKT MFF UK, majo architekti / Jan Jaroš, Štěpán Jablonský Foto: Jiří Alexander Bednář
Pavilon IMPAKT MFF UK, majo architekti / Jan Jaroš, Štěpán Jablonský Foto: Jiří Alexander Bednář
Pavilon IMPAKT MFF UK, majo architekti / Jan Jaroš, Štěpán Jablonský
Foto: Jiří Alexander Bednář
Pavilon IMPAKT MFF UK, majo architekti / Jan Jaroš, Štěpán Jablonský
Foto: Jiří Alexander Bednář
Pavilon IMPAKT MFF UK, majo architekti / Jan Jaroš, Štěpán Jablonský
Foto: Jiří Alexander Bednář
Pavilon IMPAKT MFF UK, majo architekti / Jan Jaroš, Štěpán Jablonský
Foto: Jiří Alexander Bednář
Pavilon IMPAKT MFF UK, majo architekti / Jan Jaroš, Štěpán Jablonský Foto: Jiří Alexander Bednář
Pavilon IMPAKT MFF UK, majo architekti / Jan Jaroš, Štěpán Jablonský Foto: Jiří Alexander Bednář
Pavilon IMPAKT MFF UK, majo architekti / Jan Jaroš, Štěpán Jablonský Foto: Jiří Alexander Bednář
Pavilon IMPAKT MFF UK, majo architekti / Jan Jaroš, Štěpán Jablonský Foto: Jiří Alexander Bednář
Pavilon IMPAKT MFF UK, majo architekti / Jan Jaroš, Štěpán Jablonský Foto: Jiří Alexander Bednář
Pavilon IMPAKT MFF UK, majo architekti / Jan Jaroš, Štěpán Jablonský
Foto: Jiří Alexander Bednář
Pavilon IMPAKT MFF UK, majo architekti / Jan Jaroš, Štěpán Jablonský
Foto: Jiří Alexander Bednář
Pavilon IMPAKT MFF UK, majo architekti, půdorys 2NP 22/22
客服
消息
收藏
下载
最近























