查看完整案例

收藏

下载
ULTRA ARCHITECTS
Kształt budynku określony został przez jego program funkcjonalny. Tarasowo ukształtowana bryła jest odpowiedzą na potrzeby poszczególnych stref działalności wydawnictwa.
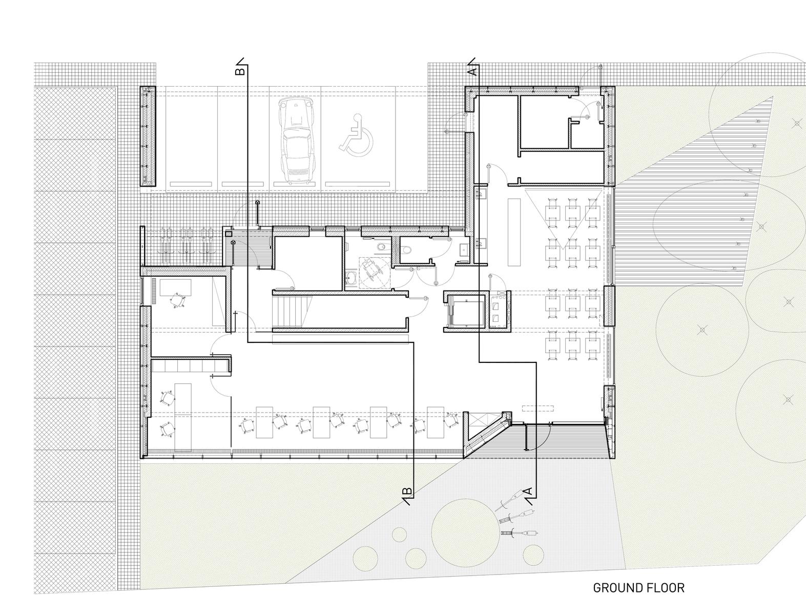
Będący strefą publiczną parter mieści biuro obsługi klienta, salę konferencyjną z zapleczem, kawiarnię i niewielki parking oraz miejsca dla rowerów. Ponieważ jego program funkcjonalny jest najbardziej rozbudowany, jego powierzchnia jest największa a elewacja jest przeszklona i osłonięta niewielkim daszkiem, co tworzy przyjazną strefę wejściową.
Pierwsze piętro mieścić będzie pokoje redakcji. Zaprojektowanie tej części budynku było największym wyzwaniem ze względniu na potrzebę ograniczenia światła w części południowej, która stanowiła miejsce pracy dla dziennikarzy. Dlatego fasadę budynku zdecydowaliśmy się pokryć perforowanymi panelami przeciwsłonecznymi. Wzór perforacji tych paneli inspirowany jest szpaltą gazety, więc praktyczna przesłona będzie jednocześnie pełnić funkcję identyfikacji wizualnej budynku.
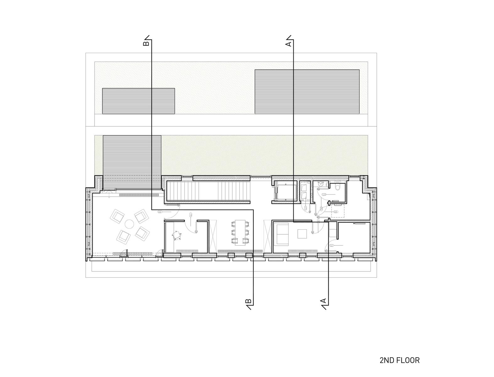
Najwyższe, drugie piętro budynku, mieścić będzie studio telewizji internetowej z reżyserką, niewielki pokój gościnny oraz część techniczną. Z tarasu studia widoczna będzie panorama miasta.
Dzięki uskokowemu ukształtowaniu bryły, w miejscach wycofania kolejnych kondygnacji powstały tarasy, które porośnięte będą zielenią.
Lokalizacja
Września, Polska
Budynki biurowe
ULTRA ARCHITECTS
ul. Piekary 19/704
61-823
Poznań
Polska
ULTRA ARCHITECTS
客服
消息
收藏
下载
最近








































