查看完整案例

收藏

下载
Akrolithos Οffice Building and Exhibition Space in Kavala
Interior Design:
Kaaf I Kitriniaris Associates Architecture Firm
Photography:
Karen Gkiounasian
Floating Sense
Located in Kipia, just outside Kavala, the project involves expanding the offices of a rock mining and processing company and redesigning the interior layout of its 3,000m² product exhibition space. The design draws inspiration from reimagining the quarry experience as an open, local tour, with the concept of levitation serving as a defining architectural element.
Design Philosophy
The space is experienced as a journey, where visitors encounter plantings, rocks, and shifting perspectives through a series of multi-sensory experiences. A bridge at the intermediate level appears to float between two curved metal surfaces, on which the exhibits are suspended, enhancing the immersive experience.
Spatial Organization
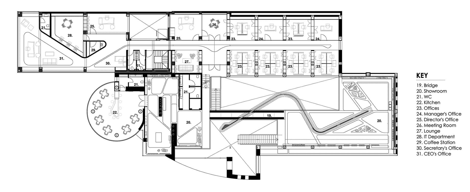
The transition process begins at the entrance, flows through the ground floor pathway, and extends into the museum spaces of the quarries, culminating on the first floor of the exhibition. This level also provides access to the offices located on the intermediate level. Within the exhibition area, thoughtfully designed sections showcase elements of the quarry, alongside seating, entertainment spaces, and areas for public gatherings.
The design language of the ground floor engravings is carried into the office spaces, featuring curved bands of black granite, slate, and carpeted islands. The office area, which accommodates 40 workstations, is spread across three levels, which are connected by a sculptural vertical circulation core made of folded sheet metal, positioned within the central atrium.
Materiality & Construction
The architectural composition is enriched by boulders transported from the company’s quarries, which define specific pathways throughout the space. These boulders have been carefully processed to retain the essence of natural rock, evoking both the form and experience of traversing a quarry’s rugged landscape. This concept is further reflected in the detailing of elements such as rock sinks, slate blinds, and scales. The exhibition’s various surfaces are designed as a cohesive narrative, where materials serve as storytellers of the quarry’s lived experience. This approach creates layered references and meanings, conceptually tied to the material’s raw texture as well as the general tactile nature of architecture.
客服
消息
收藏
下载
最近

















