查看完整案例

收藏

下载
Tančiareň, Bratislava
Realizovaný objekt Tančiarne je úzko spätý so svojím okolím, fenoménom Starej Dúbravky s drobnou, vrstvenou mierkou rôzne veľkých rodinných domov a priľahlých záhrad, prírodným lesným kontextom a blízkym kostolom, všetko dôležitými kulisami návrhu.
Richard Kráľovič
Autori:
Ing. arch. Richard Kráľovič, Ing. arch. Roman Talaš
Spolupráca:
Ateliér SIEBERT + TALAŠ, spol. s r.o.
Plocha pozemku:
391 m2
Zastavaná plocha:
105 m2
Podlažná plocha:
121.5 m2
Obostavaný objem:
498 m3
Návrh:
2011 - 2016
Realizácia:
2016 - 2024
Adresa:
Strmé Sady ,
Bratislava,
Slovensko
Projekt je zhmotnením predstavy klientov - manželského páru.
Rozšírenie obytnej funkcie
priľahlého
rodinného domu
, a to
vytvorením separátneho priestoru pre spoločné záujmy
ako tanec, fotografovanie, či stretnutia s priateľmi.
"Tančiareň"
vďačí za svoju existenciu vlastne hlavne tomuto detailu – náhodnému stretnutiu pri tanci, pri ktorom sa manželský pár pred rokmi spoznal. Vytvorenie priestoru pre ďalšie spoločné rozvíjanie tohto záujmu sa tak dávnejšie stalo ich dlhodobým snom, ktorý sa dnes stáva skutočnosťou.
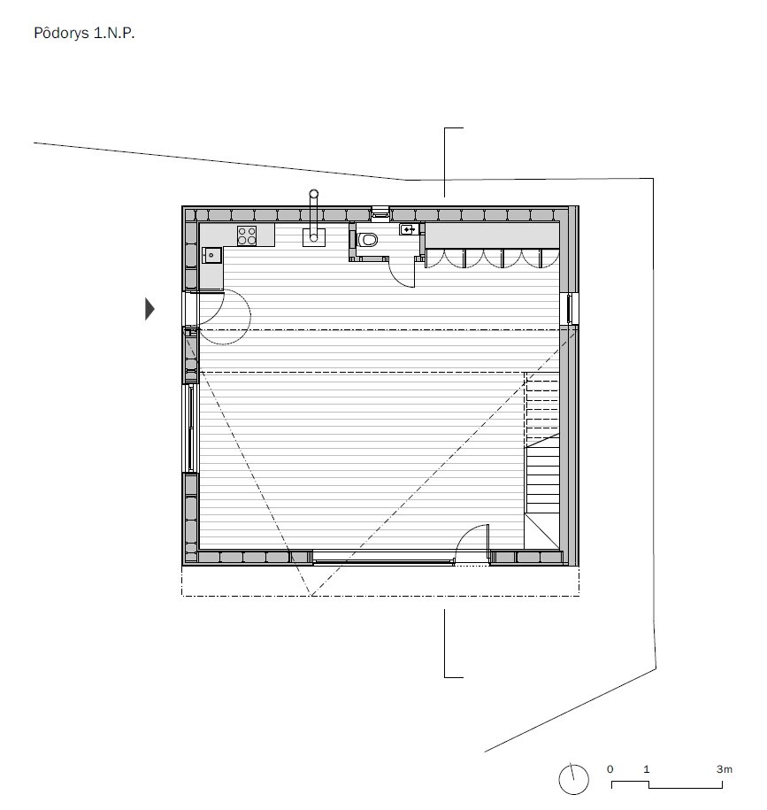
Objekt tančiarne je navrhnutý ako flexibilná konštrukčná schránka, ktorá umožňuje rôzne využitie v závislosti od budúcich potrieb. Návrh kladie dôraz na variabilitu priestoru a jeho prispôsobivosť. Prízemie tvorí otvorený priestor s rozmermi 10 × 9 metrov, bez akýchkoľvek stavebných prekážok, presvetlený južným a juhozápadným slnkom. Na poschodí, dostupnom cez galériu nesenú priehradovou konštrukciou, sa nachádzajú dve spálne so sociálnym zázemím, poskytujúce komfort a oddych pre obyvateľov domu aj ich hostí.
Napriek tomu, že je objekt stavebne založený na najstaršom a najznámejšom stavebnom materiáli - dreve, svojím hmotovým, priestorovým vyznením a materiálovým riešením nie je bežným príkladom drevostavby. Špecifické konštrukčné riešenie montovanej drevenej konštrukcie umožnilo vytvorenie atypického vnútorného priestoru. Okrem iného k tomu prispieva aj tvarovanie geometrie strešnej roviny - jemné zalomenie, viditeľného zvnútra aj na vonok.
Pridanou hodnotou zvolenej priestorovej geometrie je ponuka rôznorodých interiérových pohľadov a začlenenie novotvaru do urbanistického a prírodného kontextu miesta. Tančiareň na seba síce svojou tektonikou okoloidúcich nenásilne upozorní, tvarovaním strešných rovín však nezacloní výhľad na blízky kostol.
Dom komunikuje s okolím aj prostredníctvom presklených plôch, orientovaných ako do záhradnej časti, tak i smerom do ulice. Priestor nie je "zabetónovaným", nedostupným pozemkom, ale dovoľuje nahliadnuť do svojho vnútra i okoloidúcim. Na poschodí zas ponúka obyvateľom domu výhľad na Starú Dúbravku, alebo na masív Malých Karpát spolu s neodmysliteľnou vežou na Kamzíku.
Použitie prírodných materiálov ďalej umocňuje atmosféru priestoru – jemné tóny interiérových obkladov zo smrekovej biodosky, drevené parkety a zvonku horizontálne vrstvený termo borovicový obklad, ktorý vytvára dynamický rytmus fasády. Tieto prvky spoločne definujú charakter objektu ako miesta, ktoré má prinášať potešenie a kde sa ľudia cítia príjemne a prirodzene.
Ďakujeme investorom za príležitosť a dôveru. Vznikol dom, ktorý im a nám robí radosť.
Fotografie z interiéru pred dokončením realizácie:
Koncepčné skice, 2011
Použité materiály a riešenia:
Strešná krytina
PREFA
Prefalz
v odtieni svetlošedá P.10 s povrchovou úpravou hladká od spoločnosti Prefa Slovensko
Poloha diela
Ing. arch. Richard Kráľovič
Ing. arch. Roman Talaš
PREFA Slovensko s. r. o.
SK
客服
消息
收藏
下载
最近
































