查看完整案例

收藏

下载
人造紅色峽谷,廣州白雲國際會議中心/BURO II + CITIC
人造紅色峽谷,廣州白雲國際會議中心/BURO II + CITIC
由 BURO II 建築師事務所 & CITIC(中信華南集團建築設計院)共同設計之廣州白雲國際會議中心獲頒2008年世界建築日頒發之最佳公共建築獎。
白雲國際會議中心選址位於原東方樂園舊址,毗鄰即將開發建設的白雲新城。此設計案由廣東省、廣州市政府以及越秀集團共同籌資,規劃用地面積約27萬平方米,總建築面積達到31.6萬平方米,白雲國際會議中心於2007年5月正式投入使用。
從白雲山摩星嶺俯瞰,白雲國際會議中心地上部分主體建築由A、B、C、D、E五棟富有曲折變化的長形立方體組成,建築外墻材料為紅色砂岩合透明玻璃幕墻。
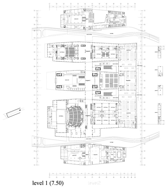
從白雲山摩星嶺俯瞰,白雲國際會議中心地上部分主體建築由A、B、C、D、E五棟富有曲折變化的長形立方體組成。其中,A、E兩棟建築為四星級配套設施酒店,B、C、D三棟建築為會議展覽中心。會議展覽中心設有獨立大、中、小會議廳共62個,最大的2500座世紀大會堂除了召開大型政務會議外,還兼具大型綜合演出功能,主席臺設有180個主席團座位,並設有最高可上升8米的地板、電子表決系統、可移動調音臺。舞臺寬23米,在全中國名列前三位,這個舞臺深入地面14米,相當於五層樓的高度。
白雲國際會議中心位於廣州北片區核心地帶,與其毗鄰的白雲新城原被規劃建成為白雲區的中心、廣州的都市「副中心」以及白雲區公共建築和商業貿易區的集中地。而根據廣州市第九次黨代會所確立的「南拓、北優、東進、西聯、中調」的城市發展戰略,廣州將在市區周圍建設四個新城。坐落在白雲區的白雲新城及其周邊地區已經成為規劃中的珠江新城之外的城市第二中心。根據規劃,機場東路、環場北路、地鐵2號線、14號線將會從會議中心環繞而過。
2005年10月26日,白雲國際會議中心正式開工建設。2006年8月,會議中心土建施工及鋼結構吊裝完成,實現主體結構封頂。2006年11月底,除配套設施樓(A、E棟酒店)外,會議中心主體工程全部完工。
作品資訊
作品名稱:Guangzhou Baiyun International Convention Center | 廣州白雲國際會議中心
作品位置:Guangzhou, China 中國廣州
建築師:BURO II & CITIC(中信華南集團建築設計院)
結構設計:Laurent Ney & Partners (比利時)
景觀設計:Stefaan Thiers en Denis Dujardin (比利時)
立面設計:Van Santen & Ass. (法國)
室內設計:Lens°Ass (比利時)
完成:2007年
攝影:Philippe van Gelooven
人造紅色峽谷 – BURO II + CITIC 的廣州白雲國際會議中心
↗ 基地平面圖 | Site Plan (點圖看大圖)
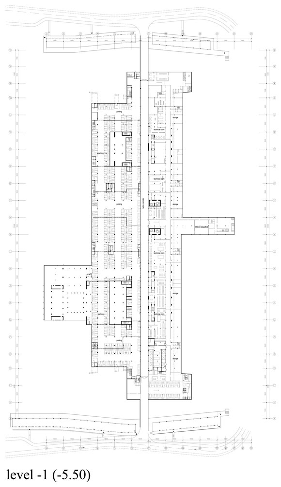
↗ 地下1層平面圖 | Level -01 Plan (點圖看大圖)
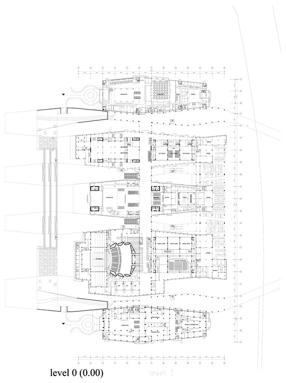
↗ 地面層平面圖 | Level 00 Plan (點圖看大圖)
↗ 1層平面圖 | Level 01 Plan (點圖看大圖)
↗ 2層平面圖 | Level 02 Plan (點圖看大圖)
↗ 3層平面圖 | Level 03 Plan (點圖看大圖)
↗ 4層平面圖 | Level 04 Plan (點圖看大圖)
↗ 屋頂層平面圖 | Roof Plan (點圖看大圖)
↗ 正立面 | Front Elevation (點圖看大圖)
↗ 背立面 | Back Elevation (點圖看大圖)
↗ 剖面圖 01 | Section 01 (點圖看大圖)
↗ 剖面圖 02 | Section 02 (點圖看大圖)
↗ 剖面圖 03 | Section 03 (點圖看大圖)
↗ 剖面圖 04 | Section 04 (點圖看大圖)
↗ 剖面圖 05 | Section 05 (點圖看大圖)
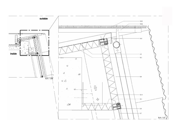
↗ 屋頂帷幕牆細部 | Roof Cutain Wall Detail (點圖看大圖)
↗ 帷幕牆細部 | Cutain Wall Detail (點圖看大圖)
↗ 動線圖 | Circulation Diagram (點圖看大圖)
↗ 環境影響分析平面圖 | Ecology Diagram Plan (點圖看大圖)
↗ 環境影響分析剖面圖 | Ecology Diagram Section (點圖看大圖)
↗ 各層分解圖 | Floors Diagram (點圖看大圖)
客服
消息
收藏
下载
最近











































