查看完整案例

收藏

下载
New offices for a metal carpentry company by Nicola Martinoli
02/01/2025
[Esine] Italy
New offices for a metal carpentry company by Nicola Martinoli
Architect Nicola Martinoli was commissioned to design the new office building for the metalwork company C.O.M.S., located in the municipality of Esine in the province of Brescia, in northern Italy.
The project was born from the client’s desire to create a versatile building that could be quickly created and constructed. To achieve this, a modular, repeatable and flexible system was used, made entirely of steel.
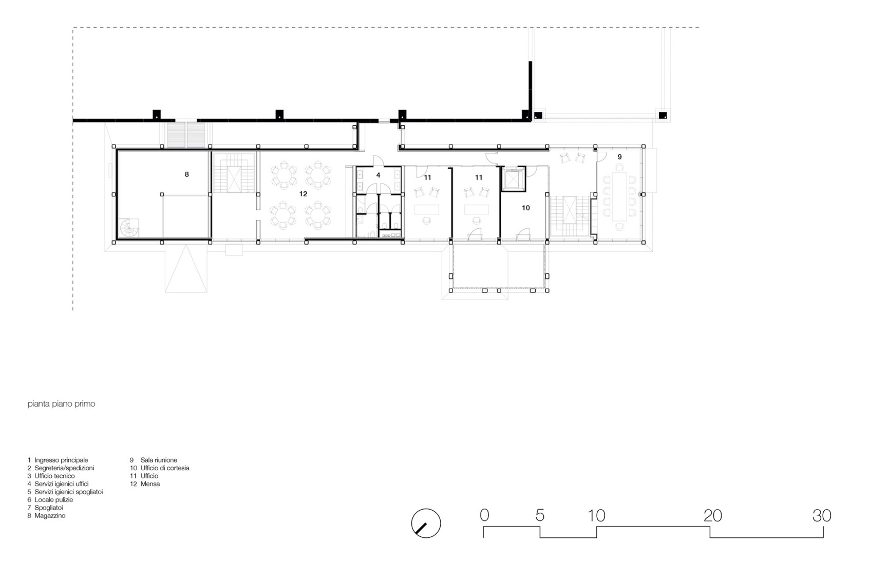
Architect Nicola Martinoli designed a 4.25x3.85m module made of steel tubes, which allows for countless configurations for the building, creating modules for single offices, double offices, a meeting room, service functions such as changing rooms, bathrooms and a dining room, a two - storey warehouse and an archive.
This modular system is also reflected in the façade, which features glazed modules with a curtain wall system, and blind modules made of trapezoidal metal sheet painted grey. The materials used respond to the needs of flexibility and rapid execution, as well as adopting an industrial and mechanical aesthetic language that reflects the company’s concept.
Offices for a metal carpentry company by Nicola Martinoli. Photograph by Filippo Poli.
Descripción del proyecto por Nicola Martinoli
The design of C.O.M.S. Metal Carpentry’s new office building stemmed from a specific request from the client: to conceive a modular, repeatable and flexible all-steel construction system. This system had to be simple to design, quick to produce and extremely versatile depending on the functions it was to fulfill.
For these reasons, a 4.25x3.85m module made of 300x300x10mm steel tubulars was designed, which, repeated and assembled n times in the three spatial directions could accommodate any function within it.
Oficinas para una empresa de carpintería metálica por Nicola Martinoli. Fotografía por Filippo Poli.
The building that houses the new office building is a kind of catalog and showcase of the countless configurations that this building system can allow for: there are in fact modules for single offices, for double offices, for a meeting room, for service functions such as locker rooms, bathrooms and canteen, for a two - story warehouse and for an archive. The module was even used to create, three dimensionally and full - scale, the company’s logo, which will be prominently displayed on the main façade, clearly visible to the many persons who drive daily along the route SS42.
The concept of modularity is also found on the façade where fully glazed and fully blind modules alternate. The glazed parts were made with a mullion and transom curtain wall system, with the inclusion of some opening modules corresponding to the entrance to the administrative offices and the entrance to the workers’ locker rooms.
The blind modules were made with a dry curtain walling system using high - performance energy - efficient materials.
Oficinas para una empresa de carpintería metálica por Nicola Martinoli. Fotografía por Filippo Poli.
The outer cladding of these modules is made of an anthracite gray painted metal trapezoidal sheet with a 28-mm corrugation. In each module, 3 sheets of trapezoidal metal sheet precut to size were laid to minimize production waste and allow installers to optimize assembly time.
This material was chosen in keeping with the original philosophy of the concept to meet the needs for flexibility, modularity and speed of installation that this project required. Also, from an aesthetic point of view, this solution responded perfectly to the conceptual language of this building: in fact, it gives an “industrial” and “mechanical” look to the blind modules, but at the same time, thanks to the light ribbing laid vertically, it guarantees vibration and lightness to the partitions.
Architects
Nicola Martinoli.
Collaborators
Designer of carpentry structures.- MG Engineering.
Designer of mechanical and plumbing systems.- Simone Carreri.
Electrical systems designer.- Sergio Damiola.
Production building structures designer.- Giordano Tignonsini.
Production building construction manager.- Dario Gheza, Diana Gheza and Giordano Tignonsin.
Client
C.O.M.S. S.p.A.
Builder
Construction office building.- C.O.M.S. S.p.A.
Construction of production building.- Magnetti Building S.p.A.
Area
Office building.- 1,040 sqm.
Production building.- 5,700 sqm.
Project area.- 19,000 sqm.
Dates
Project.- 2019 - 2020.
Construction site.- 2020 - 2021.
Manufacturers
Windows and doors.- Schüco.
Drywall.- Aurora Costruzioni s.r.l.
Roofing.- AT Group s.a.s
Office partitions.- Centrufficio Loreto s.p.a.
Locker room and bathroom furniture.- SINKO s.r.l. unipersonale.
Fotografía
Filippo Poli Photography.
Nicola Martinoli
Nicola Martinoli was born in 1977. He obtained a degree in Architectural Design at the Faculty of Architecture of Politecnico di Milano in 2002 and he has been a member of the Architect and Landscape Designers Association of Brescia since 2004.
In 2003 Martinoli started his collaboration with Camillo Botticini Architects’ agency working on several projects and competitions. In 2005 he won the International Competition for the New Swimming Pool in Brescia in association with Camillo Botticini Architects and Studio Montanari and Partners, built from 2009 to 2013.
In 2008 he founded the architectural office ABDA Architetti Botticini de Appolonia & associati working on several projects the new Sport Arena in Cantù (Como), the new Swimming Pool in San Giuliano Milanese (Milano) and a residential tower in Assago (Milan).
Martinoli was selected in 2012 for the Third Edition of Projects of Young Italian Projects, promoted by the GiArch Association and UTET, with a residential building in Darfo Boario Terme (Brescia). That same year he won the 2 - phases international competition for a new Municipal Technical Centre in Rixheim (France) with MFA Architects, built from 2013 to 2015.
In 2011 Martinoli founded the Paris and Milan - based office ALN Atelien Architecture with his partner Luca Varesi. In 2014 he won the international competition for the French Pavilion at EXPO Milan 2015 in association with CMC (building contractor), XTU (architect) and Studio Adeline Rispal (scenography).
客服
消息
收藏
下载
最近




































