查看完整案例

收藏

下载
香港珠海学院新校园:将限制转化为灵感 / 许李严建筑师
香港珠海学院新校园:将限制转化为灵感 / 许李严建筑师
许李严建筑师
香港珠海学院新校园
香港城市缩影
珠海学院新校园这一设计,参考了香港这座高密度都市的特质,把垂直功能迭加及立体交通的概念引入到校舍的设计中,使其成为高度密集的城市缩影。
在设计上,教学楼、新闻工作室、行政办公室、教职员宿舍及学生宿舍等不同功能的迷你塔楼,被垂直地迭加至一个公共裙楼之上。裙楼中设有体育馆、演讲厅等公共设施;裙楼的屋顶花园则形成一个向海边倾斜的草坡,在这里可尽览咖啡湾泳滩的海景。
© Virgile Simon Bertrand
图书馆桥及学生会桥,从裙楼的草坡上空横跨而出,在连接东、西两翼的同时,形成一个标志性门廊。
图书馆桥由两条横跨东、西两翼的桥梁呈V字型排列而成。内有梯阶退台式设计,使不同标高的室内阅览空间在视觉上连成一线,有助学生交流沟通。人们沿缓坡由西翼教学楼三层可直达东翼四层的空中花园及珍卷藏书阁,再转向沿缓坡回到西翼四层的教室。图书馆桥因此而形成了东、西两翼交接的一个公共空间。
© Virgile Simon Bertrand
© Virgile Simon Bertrand
立体而迂回的学生大道穿插于各迷你塔楼之间。配合图书馆桥及学生会桥,把校园里的各个功能空间连成一个整体。游走于学生大道中,可直达设于不同楼层的草坡、广场、咖啡厅、屋顶花园等气质相异的不同室外公共空间。
建筑设计尽量减少占地面积以腾出最大的公共空间。大面积的功能空间如图书馆及大型班房等,被悬挑至主体建筑之外。教学楼顶层的课室则呈Y字形向外悬挑,配合天窗及反射墙,把阳光与自然对流引入到走廊空间。
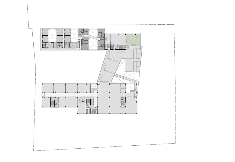
首层平面
剖面
手绘草图
建筑的立面诚实地反映了其复杂而有趣的空间布局。建筑体块从主楼向各方悬挑而出,有如一座巨型树冠,象征于树荫下乘凉学习的传统场景。
把限制转化为创作灵感
© Virgile Simon Bertrand
珠海学院的新校舍位于香港屯门公路青山湾段,面向新咖啡湾泳滩,景致宜人。基地背面及其东南面紧靠屯门公路护土墙,高差达十八米。
此项目原本已有设计方案并已完成地基工程,但却因种种原因,校方选择了委托许李严建筑师事务所有限公司对项目作重新设计。因此设计的一项挑战是,必须在尽量利用现有地基并减少地基修改的前提下实现。设计亦因此以尽量减少塔楼的覆盖面积为原则,并把塔楼范围限制于原有设计的东、西两翼的条状地基上,以减少结构改动,同时为校园创造出更多的公共空间。此外,利用现有地基的未填充部分以充当地下停车场,把原有的地基限制转化成有用的空间资源。
二层平面
五层平面
旧有的设计将学生及教职员宿舍安排在护土墙后的山坡上。为了进一步减少对现有地形及环境的影响,设计特意把宿舍部份重新纳入至主楼建筑之内,并把原有地块用作球场及园林空间——尽量把教学楼的密度提高以腾出更多的公共空间。
此外,校方亦在旧有设计的基础上增加了多项新的功能要求,使已受原有地基范围限制的塔楼在面积上面临更大的压力。设计参考了香港这高密度都市的特质,在有限的条状塔楼体块上以向外悬挑体块来解决面积要求。
可持续设计
由于地块背靠交通繁忙的屯门公路,环境评估要求学生及教职员宿舍避免朝外开窗。因此设计中的宿舍部份作了内向式的中央庭园设计,房间呈E字形排列,围合出一个个中央庭院,在繁忙的环境中创造出宁静的生活空间。宿舍走廊外墙设计了拉线以助攀爬类植物攀附生长,有如一道半通透的绿化垂帘。配合混凝土墙上的爬墙虎,把自然山岭的绿意带进校园生活之中。
© Virgile Simon Bertrand
西翼教学大楼外立面则呈Y字型设计,教室依梯阶式布置向外迭加,透过课室的斜墙把阳光反射到室内的走廊空间,有助节能环保。向外倾斜的遮阳架则更有效地遮挡阳光。设计以不同密度及角度的垂直铝合金遮阳板来统一教学楼中不同功能部分的立面。教室外的垂直遮阳板与条状窗户错落布置,有效遮阳。而靠近屯门公路部分的遮阳板则在平面上作45°旋转,除可遮阳之余,亦有助阻隔汽车嗓音。
珠海学院的独特建筑外形乃是基地现况、功能要求及环保考虑的直接反映。在珠海学院的建筑设计中,尝试体现的就是把限制转化为创作灵感的一门艺术。
项目名称: 香港珠海学院新校园
建筑事务所: 许李严建筑师事务有限公司
主创建筑师: 严迅奇
设计团队: 严迅奇, 陈超明, 谭伟霖, 何大兴, 陈建国, 施凯威, 李知非, 李清樾, 刘俊尧, 蒋浩伦, 何思翰
项目详细地址: 香港新界屯门青山公路青山湾段80号
项目完成年份: 2016
建筑面积(平方米): 26,500平方米
摄影师: Virgile Simon Bertrand(只限於有摄影师姓名的檔案)
客服
消息
收藏
下载
最近




















