查看完整案例

收藏

下载
Infraestudio, Cuba
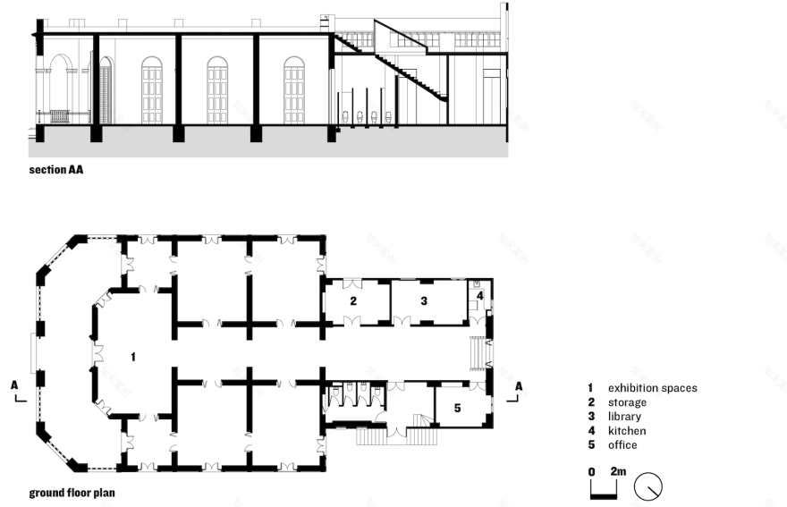
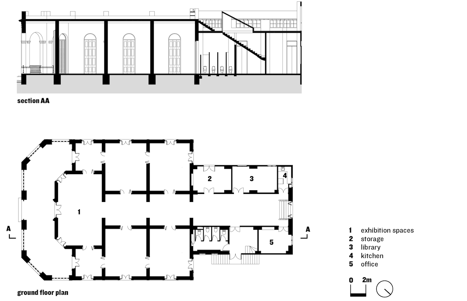
A neoclassical residence built in 1888 at 508 Línea Street in Havana, Cuba, is currently being transformed into a contemporary art centre For their first commission, Infraestudio chose to intervene minimally. They inserted a concrete staircase and reused the timber of the old roof to rehabilitate doors and window frames
They also added newlighting to the galleries
Interested in repair and based in Havana, this Cuban practice works in a careful and prudent manner
Infraestudio was shortlisted in the AR Emerging awards 2024. Read about the full shortlist
Built in 1888, a decade before the end of Spanish colonial rule in Cuba, 508 Línea Street is a neoclassical home in the neighbourhood of Vedado, Havana. With its generous garden, tiled walls and stained glass panels adorning the arched doorways, it is a prime example of the nation’s colonial architecture; the building holds the highest degree of heritage protection in Cuba. In 2016, conceptual artist Wilfredo Prieto sought to transform the building into the Línea Art Center, a gallery and residency programme for contemporary artists. An extra 200m
would need to be added, and young architect‑duo Anadis González and Fernando Martirena were assigned to the project. Met with a home they felt was already fully complete, the pair decided on an alternative approach: being ‘as absent as possible’.
González and Martirena were still students at the Technological University of Havana when they received the commission. Grappling with the site’s legacy and preservation status, they felt like ‘intruders’, an intuition they used to fuel their brief. They settled on three subtle interventions: a wall, a staircase and a new roof. First, they replaced the aged wooden roof with a concrete one, using the beams from the old roof to repair the joinery, including door frames and balustrades. This repurposing of existing material both improves the internal gallery spaces and speaks of the studio’s ‘poetics of care’. The architects also added a concrete staircase, cast
to better connect these internal spaces to the terrace on the new roof, allowing for a continuous corridor between the interior viewing rooms and the exterior courtyards. In an upcoming phase of the project, accommodation for artists will be constructed within the building’s grounds, altering, but not exhausting, the surviving courtyard: a key feature of colonial architecture they sought to preserve.
Línea Art Center is a project as much about not doing as it is about doing. It was the first commission for the pair that would eventually become Infraestudio, and the project’s ethos has gradually become the signature – or anti‑signature – of the practice. The Latin
means ‘below’, and it speaks of the studio’s tendency towards obscurity and subversion – their architecture of repair is more about ideas than any necessary translation into form.
‘Grappling with the site’s legacy and preservation status, the architects felt like intruders’
Following the Cuban Revolution in 1959, all private architecture firms were called to resign their authorship, and instead practise through the government. These attempts to control have continued since. As of 2021, the private practice of architecture is officially illegal in Cuba – but there remains a degree of unspoken tolerance. As long as architects do not become politically confrontational, they can exist in a vacuum of silence and their work is often paid no attention.
González and Martirena say their practice is ‘officially illegal, unofficially legal’.
Occupying this grey area, Infraestudio realised Red Garden, an intervention hidden 50 metres above Havana’s waterfront, on the penthouse of a mid‑century apartment. Using concrete and coating it in red stucco, the architects created a sculptural landscape that feels intimate – a protected space. The apertures cut out in the outer perimeter wall of the terrace draw the penthouse closer to the sizzling city that lives around and below it, highlighting the irony of the Cuban condition, where the only way to contribute to the building of the city is to work under a veil of secrecy.
The incisions are reminiscent of the 1975 artwork
Conical Intersect
Gordon Matta‑Clark, another practitioner who worked on the margins of his disciplines. While Matta‑Clark’s rejection was an outright refusal of practice, the work of Infraestudio instead rallies against the conditions it is forced to work under: an absence of legal frames for independent architecture. For González and Martirena, ‘in a country where architecture has died, the only way to move forward is by doing architecture’.
Red Garden is the
new two‑storey terrace
of a penthouse in
Havana’s district of Vedado. Infraestudio’s intervention provides both outdoor living spaces sheltered from the sun as well as a swimming pool and expansive views towards the city. (Joe Abreu)
客服
消息
收藏
下载
最近









