查看完整案例

收藏

下载
Maison de Verre, Bernard Bijvoet y Pierre Chareau
Documentos
Maison de Verre, Bernard Bijvoet y Pierre Chareau
Bernard Bijvoet y Pierre Chareau, Maison de Verre, 1928-1932
En la Maison de Verre se anudan distintos hilos argumentales de su época. Su autor fue una figura eminente y significativa del Art Déco, ese arte decorativo excluido de la corriente principal de la crítica y desdeñado por los activistas de la modernidad.
Maison de Verre, Bernard Bijvoet y Pierre Chareau,
La biografía de
Pierre Chareau
quedó al margen de las historias de arquitectura, pero sin embargo consiguió una de las más impresionantes casas del siglo. Seguramente a juicio de los puristas y de los radicales, el Déco tenía la fórmula de las composiciones burguesas y, a semejanza de los licores para señoras, combinaba buenas materias primas en una mezcla dulzona impresentable a un buen connaiseur. Como las pinturas de Tamara de Lempicka, que quería ser cubista, fotógrafa, cartelista y futurista, pero sobre todo aristócrata moderna y mundana, el Déco mezclaba las texturas exquisitas del Art Nouveau con el simplismo geométrico de la Secesión vienesa, y la estética industrial del futurismo con el gusto por el confort de la clase media alta.
A favor de la Maison de Verre contaba para los críticos la colaboración de
Bernard Bijvoet
, el arquitecto holandés compañero del maestro Duiker. Sin mayores explicaciones, permitía relacionar el milagro de la Rue Saint-Guillaume con las potentes vanguardias de los Países Bajos, con la arquitectura articulada de Duiker, con las estructuras metálicas de Van der Vlugt, o con la delicadeza de los planos de Van Tijen.
Bernard Bijvoet, Pierre Chareau, Maison de Verre
Obligados por la imposibilidad de desalojar a la dama del ático, el matrimonio Dalsace tuvo que afrontar la reconstrucción del viejo hotel dieciochesco de la Rive Gauche, encajado entre las medianeras y aliviado por los patios de manzana. La labor se convirtió en un complicado ejercicio del más difícil todavía, y Pierre Chareau, apoyado por el matrimonio Dalsace, aceptó forzar las fronteras del Déco. Consiguió, como en los mejores años de la Werkbund, hacer la casa de la mano de un artesano ejemplar del hierro. El taller de herrería de D’Albet aportó el esqueleto roblonado y ese híbrido de diseño industrial y escultura articulada que es la cerrajería de la Maison de Verre, diseñada pieza a pieza por Chareau y Bijvoet, con el contrapunto permanente de las chapas perforadas de duraluminio.
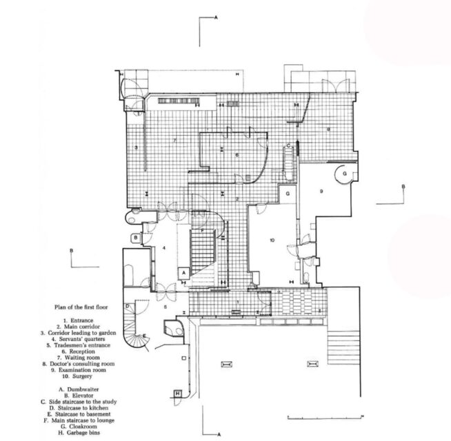
En la casa-clínica de los Dalsace se unieron la tradición de la moderna burguesía con los programas del Movimiento Moderno. La casa tiene abajo una pequeña y avanzada clínica ginecológica, y sobre ella el salón de recibir, donde se celebraban pequeños conciertos, y el comedor servido por un montaplatos. Arriba, los dormitorios, comunicados en su caso con el saloncito o la terraza. La clínica, obviamente, era uno de los programas más queridos de la modernidad; era un lugar transparente, limpio y funcional, poblado por unos muebles científicos, cromados y tensos corno máquinas de vanguardia. El salón, por su parte, era el espacio del arte, de los libros y sobre todo, del espacio fluido y luminoso, confortable por la calefacción de radiadores empotrados en el suelo y acogedor por los sofás de terciopelo firmado Lurçat.
La planta articulada en las tres dimensiones se presenta igual que en las villas modernas, como una serie de recorridos y de visiones diagonales del espacio, procurando confiar el paso de un ámbito a otro a algún elemento precisamente diseñado. En la Maison reaparecen las obsesiones de Chareau por los tomos y los paneles giratorios, junto al leit motiv moderno del elemento que separa y une, que aquí torna varias formas, de pantalla, librería y barandilla todo en uno. Predomina la expresión industrial del metal sobre el suelo de caucho, y a veces una suerte de expresionismo maquinista, como en las rótulas inmóviles de la gran escalera principal o en las poleas de la del dormitorio.
Sólo a veces aparece la sensibilidad de lo natural en los pavimentos casi japoneses de la entrada y el detalle del umbral hecho con una pieza de madera arrojada por el mar a la playa.
Pero el milagro es que todas estas tradiciones burguesas y programas modernos se cuajaron en una forma de las más queridas por la vanguardia de entreguerras: la caja de cristal. La habitación cristalina perseguida por los utópicos de la Glaserne Kette, como los Taut, por la Bauhaus de Gropius y Mies, por el Esprit Nouveau de Le Corbusier, tiene en la casa Dalsace un momento espléndido y una primera madurez.
Una casa de luz entre dos patios, que opta, corno la casa japonesa, por los paneles traslúcidos: una casa farol. La traza de la piel tensa de vidrio, de moldeados presos en paneles de perfilería o embebidos en hormigón, y de excepcionales planos transparentes, que se pliega y se imbrica para adaptarse a su apretado entorno, es un ejercicio soberbio de modulación y de invención detallada.
Bernard Bijvoet, Pierre Chareau, Maison de Verre
Justo Isasi
A medio camino entre el Déco y la era maquinista, la Maison de Verre se sitúa como una pieza clave de la vanguardia artística del periodo de entreguerras. Pierre Chareau, formado como dibujante en una firma británica de decoración, abrió su estudio en 1919.
El matrimonio Dalsace, sus protectores, le introdujeron en el selecto círculo de artistas e intelectuales parisienses, y en 1924 le encargaron el proyecto de su casa en pleno barrio de Saint-Germain, centro de reunión del grupo. La casa ocuparía las dos plantas inferiores de un edificio de tres alturas situado entre medianeras, en un solar profundo.
Aunque se partió de propuestas más compartimentadas, las divisiones interiores fueron desapareciendo o perdiendo solidez a medida que el proyecto se consolidaba; aquellas que impedían la transparencia entre patio y jardín se transformaron finalmente en muebles o mamparas.
La casa presenta al patio un paño traslúcido de doble altura y estructura modular que hacia el interior inunda de luz el gran salón. Los dormitorios se asoman a este espacio por el altillo, y al jardín por una terraza.
Con la disposición de la entrada y de las escaleras Chareau traza un complejo recorrido espacial por la casa, desde la luz tenue en el principio del ascenso a la claridad del plano principal, para retomar el tramo de escaleras hacia el segundo nivel al borde de un vacío de triple altura. La intensidad del trayecto se refuerza con la riqueza material de la casa, que ofrece continuos contrastes: pavimento industrial como soporte de finos muebles déco, crudos perfiles roblonados delicadamente pintados de cobalto y bermellón, acero y madera en una forzada estética mecánica.
«Un modelo hecho por artesanos con la vista puesta en la estandarización.» Así la definió Chareau.
Alberto Pieltain
Maison de Verre, Justo Isasi, y Pieltáin Álvarez-Arenas, Alberto “
Historia de tres casas: Maison de Verre, Villa Mairea, Eames House”,
Bernard Bijvoet, Pierre Chareau, Maison de Verre
Bernard Bijvoet, Pierre Chareau, Maison de Verre
客服
消息
收藏
下载
最近














