查看完整案例

收藏

下载
Tri nova objekta planirana su u sklopu postojećeg kompleksa; Render: Energoprojekt urbanizam i arhitektura
NT park na Zvezdari dobija tri nova objekta sa podzemnom garažom
U sve tri trospratnice, koncipirane kao jednostavni ortogonalni volumeni, biće smešteni poslovni i coworking prostori, te ukupno preko 200 parking mesta.
Naučno-tehnološki park “Beograd”, institucija koja pruža podršku tehnološkim kompanijama u razvoju i komercijalizaciji inovativnih proizvoda i usluga, planira da u narednom periodu dobije značajno proširenje.
Tim povodom, beogradski Sekretarijat za urbanizam i građevinske poslove oglasio je ovih dana javnu prezentaciju urbanističkog projekta za izgradnju novih objekata u okviru postojećeg kompleksa na Zvezdari.
Nosilac izrade projekta je preduzeće „Energoprojekt urbanizam i arhitektura” sa Novog Beograda, koje je zahtev za potvrđivanje podnelo u ime investitora – Republika Srbija, Kancelarija za upravljanje javnim ulaganjima.
Posao rukovodioca izrade projekta i odgovornog urbaniste poveren je Dragani Đorđević dia, autor idejnog rešenja je firma Teking d.o.o. iz Niša, dok je odgovorni projektant Marko Petrović dia.
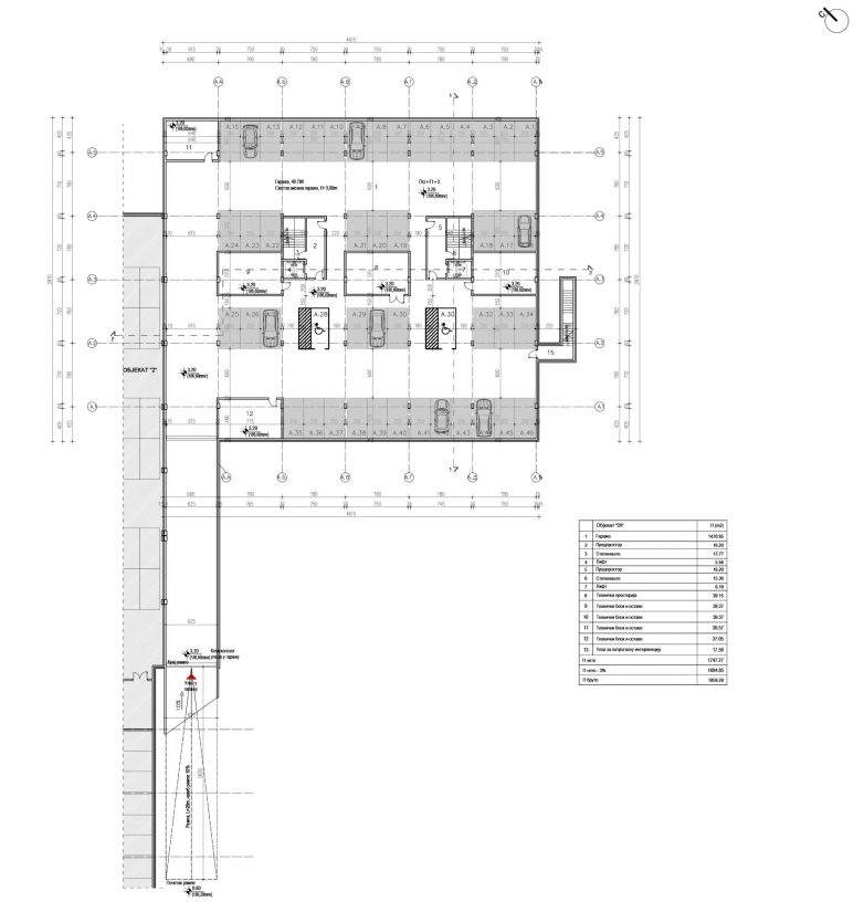
U okviru suterena postojećih objekata postoji 58 garažnih mesta; Render: Energoprojekt urbanizam i arhitektura
Postojeće stanje
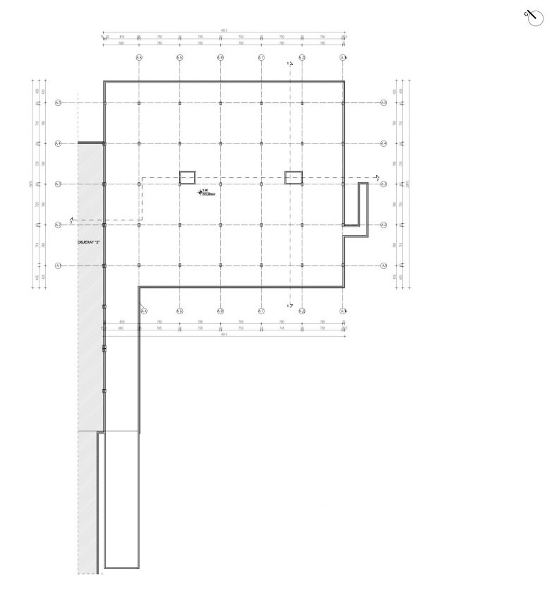
Predmetna lokacija i objekti Naučno - tehnološkog parka izgrađeni su na području oko Zvezdarske šume, na zapadnoj padini, jugozapadno od zone objekata Instituta „Mihajlo Pupin“, a obuhvata severoistočni deo planskog područja.
Parcela je u blagom padu pravcem sever - jug, dok između parcele kompleksa i postojećih i planiranih javnih saobraćajnica sa severne i južne strane postoji velika visinska razlika u vidu prirodnih škarpi.
Kompleks čini 5 objekata – spratnosti od Po+Pr+G, Su+Pr+1+Ps, Su+Pr+2+Ps, Su+Pr+3+Ps i Po+Pr+5+Pk – među kojima su i jedinica za naučno - tehnološki rad, te centralni infrastrukturni objektat Naučno - tehnološkog parka „Beograd“.
Uz Ulicu Veljka Dugoševića formiran je parking koji je u službi Naučno - tehnološkog parka.
Pristup kompleksu je sa zapadne strane, iz Ulice Veljka Dugoševića, uz koju je formiran parking koji je u službi Naučno - tehnološkog parka.
Glavni ulaz u kompleks vrši se preko centralnog infrastrukturnog objekta, odakle se postiže veza sa veznim objektima i dalje sa ostalim celinama.
U okviru suterena postojećih objekata postoji 58 garažnih mesta, dok u samom kompleksu sa obadve strane postojećih objekata postoji po jedan parking prostor sa po 38 mesta, kao i parking sa 45 mesta u severozapadnom delu parcele.
Postojeće stanje na parceli; Izvor; Google Map
Druga i treća faza izgradnja
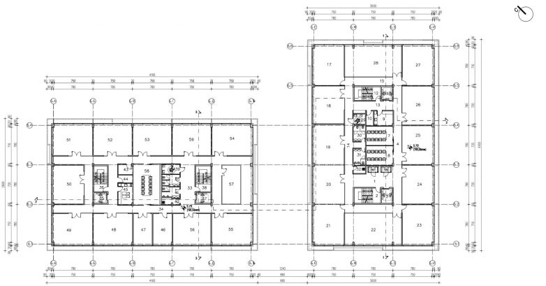
Projektom je planirana i definisana izgradnja tri nova objekta sa podzemnom garažom u okviru postojećeg kompleksa Naučno - tehnološkog parka.
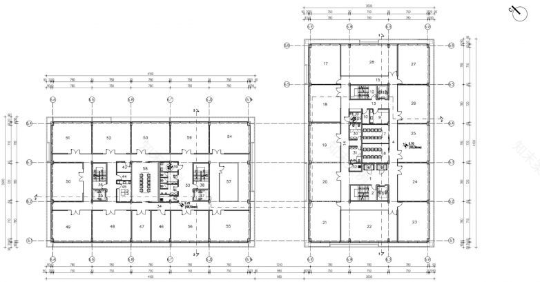
Objekti su na nivou trećeg sprata međusobno povezani toplom vezom i predstavljaju novu celinu, koja je u potpunosti odvojena od postojećih objekata kompleksa.
Kako se navodi u dokumentaciji, planirani objekti predstavljaju drugu i treću fazu izgradnje u okviru kompleksa, budući da prvu fazu čine već postojeći objekti u okviru NTP.
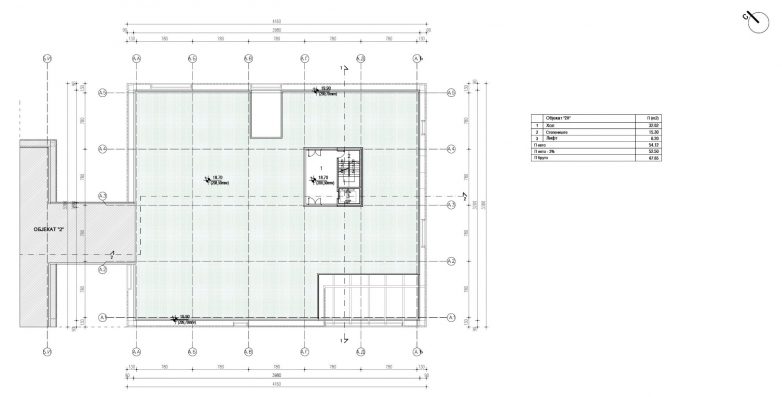
Druga faza obuhvata izgradnju objekta 1. U okviru podruma objekta predviđena je garaža sa 46 parking mesta. Drugom fazom biće obuhvaćena izgradnja objekta broj 1, spratnosti Po+P+3, koji je koncipiran kao jednostavni ortogonalni volumen ukupne bruto površine od 6.846,02 m2. U okviru podruma objekta predviđena je garaža sa 46 parking mesta, dok je na nivou prizemlja projektovan Centar za sazrevanje inovacija, koji obuhvata kancelarijski prostor u prizemlju i na prvom spratu, coworking prostor, kao i laboratorije i trening salu. Prvi i drugi sprat namenjeni su poslovnom prostoru za inovacione kompanije, a na navedenim etažama predviđeni su i zajednički sadržaji – sale za sastanke i Skype sobe, čajne kuhinje, sanitarni čvorovi i druge prateće prostorije. Ista funkcionalna organizacija za sve tri zgrade. Na trećem spratu su, pored poslovnog prostora za kompanije sa pratećim prostorima, projektovani kantina i kafe-bar, a predviđen je i tehnički izlaz na zeleni krov. U fazi 2 planirano je i proširenje parking prostora na parceli za 52 nova parking mesta.
U okviru faze 3, planirana je izgradnja objekata broj 2 i 3, spratnosti Po+P+3, čija zajednička ukupna BGRP iznosi 13.173 m2. U okviru podruma ove faze projektovana je garaža sa 157 parking mesta, tehničke prostorije kao i dva vertikalna komunikaciona čvora sa po jednim liftom i stepeništem. Nadzemne etaže objekata 2 i 3 imaju istu funkcionalnu organizaciju kao i objekat 1, a u fazi 3 na parceli se smanjuje broj parking mesta (17) u delovima parkinga, zbog izgradnje objekta broj 3 i pripadajućeg izlaza iz garaže.
U okviru podruma faze 3 projektovana je garaža sa 157 parking mesta; Render: Energoprojekt urbanizam i arhitektura
Pejzažno uređenje
Prema projektu, postojeće zelene površine će biti unapređene uz obavezu njihovog redovnog održavanja, a formiranje novih zelenih površina će se vršiti planski, u narednim fazama projektovanja.
Idejnim rešenjem je predviđeno ozelenjavanje ravnih krovova i delova podzemnih objekata niskim rastinjem, nižih vegetativnih formi sa plićim korenovim sistemom ili travnjakom i niskim poleglim rastinjem.
Predviđeno je ozelenjavanje svih otvorenih prostora i postavljanje urbanog mobilijara savremenog dizajna (klupe, osvetljenje, korpe za otpatke i dr), dok su na parkinzima planirani drvoredi radi zasene.
Na parkinzima su planirani drvoredi radi zasene; Render: Energoprojekt urbanizam i arhitektura
Na javnom uvidu do 4. avgusta
Javna prezentacija obaviće se u zgradi Gradske uprave Grada Beograda, u periodu od 27. jula do 4. avgusta 2022. godine, svakog radnog dana od 9 do 15 časova.
Zainteresovana lica mogu tokom javne prezentacije da izvrše uvid u urbanistički projekat, kao i da svoje primedbe i sugestije na planirana rešenja u pisanoj formi dostave Sekretarijatu za urbanizam i građevinske poslove, najkasnije do 4. avgusta 2022. godine.
Grafički prilozi
客服
消息
收藏
下载
最近














