查看完整案例

收藏

下载
H.S. House
by Sahel Al Hiyari
H.S. House
Dabouq, Jordan, 2015
H.S. House © Sami Haven
H.S. House © Sami Haven
H.S. House © Sami Haven
H.S. House © Sami Haven
H.S. House © Sami Haven
H.S. House © Sami Haven
H.S. House © Sami Haven
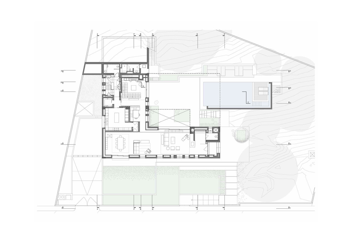
H.S. House : ground floor © Sahel Al Hiyari
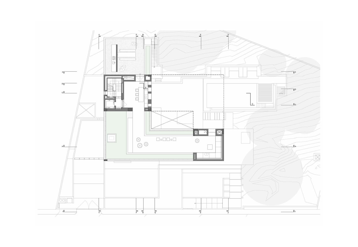
H.S. House : first floor © Sahel Al Hiyari
H.S. House : second floor © Sahel Al Hiyari
H.S. House : horizontal section © Sahel Al Hiyari
H.S. House : transversal section © Sahel Al Hiyari
The site is located in the growing suburb of Dabouq to the north of Amman, renowned for its wealth of native oaks. It is a single family house built on a total site area of 1,981sq m. The project endeavours to create a dialogue between topography and architecture by its formal and spatial response to the sloping landscape. This relationship is characterized by organizing the plan of the house around one continuous movement that creates a rectangular shape with a centralized courtyard. One side resting on the ground, the other is entirely elevated above the slope of the site. This condition creates an open, external room defined on one side by the landscape and on the other by a roof defined by the suspended upper floor. Accordingly, the house establishes a dialogue with its natural setting in terms of its spatial interim, forming a sinuous movement with the topography. Moreover, its shape becomes a conduit for the prevailing winds that are allowed to permeate the structure. The sculptured condition of the design is further emphasised by the hand-chiselled concrete material of the seamless surface, which allows the mass of the building to appear as a monolith.
Project in collaboration with Kristopher Musumano
Sahel Al Hiyari
Sahel Al Hiyari
is the principal architect at Sahel Al Hiyari Architects. He holds Bachelor Degrees in Architecture and Fine Arts from the Rhode Island School of Design, and a Master of Architecture in Urban Design from Harvard GSD. He carried out post-graduate work at the School of Architecture at the University of Venice, where he also taught from 1993-1995. In addition, his teaching activities include design studios at the Centre for the Study of the Built Environment (2002, 2004), at Harvard GSD (2010), and at the American University of Beirut (2011). He has lectured at Columbia University, Physical Development Research Centre in Iran, Jordan University of Science and Technology, Harvard University, AUB and ETHZ. His work has been published and exhibited internationally. In 2002, Al Hiyari was chosen as the first architect to receive the Rolex Mentor and Protégé Arts Initiative, beeing a protégé of architect Álvaro Siza. Additionally, he is a painter and has exhibited in Jordan, Lebanon and Italy.
客服
消息
收藏
下载
最近













