查看完整案例

收藏

下载
Garaža ispod parka kod Hotela Bristol; Vizuelizacija: Flow Plus
Kako će izgledati podzemna garaža ispod parka kod Hotela Bristol
Gabarit garaže kapaciteta 450 vozila postavljen je tako da omogućava čuvanje postojećih stabala, dok će se na njenom krovu formirati park.
Opsežna obnova čuvenog Hotela Bristol i izgradnja obližnjeg parka Bristol sa dvoetažnom podzemnom garažom bili su povod za izradu dva urbanistička projekta. Grad Beograd na svom zvaničnom sajtu stavio na javni uvid.
Podsetimo, monumentalno hotelsko zdanje iz 1912. godine biće rekonstruisano prema projektu studija Bureau Cube Partners, dok idejno rešenje arhitekture za prostor parka, garaže i javne saobraćajne površine u nekadašnjem Svetonikolskom parku potpisuje firma Flow Plus
Hotel Bristol – ortofoto sa granicom obuhvata UP-a
Projektom je predviđena izgradnja dvoetažne podzemne garaže sa uređenom parkovskom površinom na njenom krovu.
Obuhvat UP-a za urbanističko-arhitektonsko oblikovanje javne namene – izgradnju parka Bristol sa dvoetažnom podzemnom garažom, čine parcele ukupne površine od 16.007 kvadrata.
Projektom je predviđena izgradnja dvoetažne podzemne garaže sa uređenom parkovskom površinom na njenom krovu, odnosno na postojećem nivou terena u pojasu između postojećih i planiranih saobraćajnica.
Na preostalom delu obuhvata, prostorno-funkcionalno rešenje se zasniva na komunikacionom povezivanju prostora parka i javnih sadržaja unutar podzemne garaže preko podzemnog prolaza u okviru novoprojektovane saobraćajnice.
Vizuelizacija: Flow Plus
Garaža sa 450 parking mesta
Za potrebe funkcionisanja garaže obezbeđena su dva dvosmerna kolska ulaza. Predviđeno je da jedan ulaz/izlaz bude obezbeđen iz Karađorđeve ulice, a drugi iz novoprojektovane saobraćajnice.
Gabarit garaže je postavljen tako da omogućava čuvanje stabala od izuzetne vrednosti koja su identifikovana u manualu procene kvaliteta postojećeg zelenila.
Ukupna projektovana BRGP garaže je 18.135 m² sa 450 parking mesta. Izgradnja nadzemnih delova objekata nije planirana, osim u vidu malih objekata i nadstrešnica nad jezgrima predviđenim za pešački pristup korisnicima garaže.
Unutrašnjost podzemne garaže; Vizuelizacija: Flow Plus
U parku se planira zadržavanje tri postojeća stabla platana od izuzetne vrednosti.
Kompozicija parka složene forme proistekla je iz funkcionalnih karakteristika novoprojektovane garaže, prepoznatih pešačkih tokova povezanih sa okolnim saobraćajnicama i objektima u neposrednom okruženju.
Novoprojektovanim parkovskim rešenjem predviđeno je integrisanje kolsko-pešačke saobraćajnice Hadži Nikole Živkovića u jedinstven prostorno-oblikovni ambijent parka i novoprojektovani plato ispred hotela „Bristol“.
U parku se planiraju pretežno novi zasadi svih tipova rastinja; Vizuelizacija: Flow Plus Zadržana tri postojeća stabla platana
U parku se planiraju pretežno novi zasadi svih tipova rastinja, uključujući visoka stabla, a planira se i zadržavanje tri postojeća stabla platana. Kako bi bilo moguće uvođenje novog rastinja, iznad garaže predviđen je sloj supstrata/zemlje od 170 cm do 200 cm.
Staze su koncipirane tako da formiraju najfunkcionalnije veze između najbitnijih tačaka i pravaca iz okoline.
Pešački platoi se formiraju na pozicijama ukrštanja glavnih pešačkih tokova i okolnih javnih saobraćajnica, na kojima su predviđeni natkriveni i nenatkriveni pešački ulazi u garažu sa stepeništem i liftom.
Vizuelizacija: Flow Plus
Restoranska bašta u atrijumu hotela Bristol
Što se tiče Hotela Bristol o kojem smo više puta pisali, i ovaj projekat se sada nalazi na javnom uvidu. Idejnim rešenjem koje je sastavni deo ovog urbanističkog projekta, prilaz unutrašnjem dvorištu za posetioce hotela Bristol predviđen je da se ostvaruje iz Karađorđeve ulice kroz pasaž i iz lobija hotela.
Komercijalni prostori koji su predviđeni za iznajmljivanje, smešteni su na prizemnoj etaži, orijentisani su ka ulicama Karađorđeva, Hadži Nikole Živkovića i Zvornička, projektovani su na površini od oko 750 m ² i obrazuju 4 lokala.
Novost je i što se u atrijumu hotela Bristol formira bašta restorana hotela sa 72 mesta za sedenje.
Ukupna BRGP podzemnih i nadzemnih etaža Hotela Bristol iznosi 15.392 kvadrata; Vizuelizacija: Bureau Cube Partners
Komercijalni prostori projektovani su na površini od oko 750 kvadratnih metara i obrazuju četiri lokala.
Projektom je predviđeno da se na etažama od prve do treće smeste hotelske sobe, kao i „room service“, dok su na potkrovnoj etaži projektovani konferencijski i komercijalni prostor.
Hotelske sobe su većinom orijentisane ka okolnim saobraćajnicama, dok je deo hotelskih pomoćnih prostorija orijentisan ka unutrašnjem dvorištu. Komunikacija gostiju hotela sprovodi se hodnicima do svih soba na spratu, a između etaža obezbeđena je liftovima i stepenišnim prostorima
Prilaz unutrašnjem dvorištu za posetioce hotela Bristol ostvaruje se iz Karađorđeve ulice; Vizuelizacija: Bureau Cube Partners
Primedbe i sugestije do 19. aprila
Zainteresovana lica mogu tokom javne prezentacije da izvrše uvid u oba urbanistička projekta, kao i da svoje primedbe i sugestije na planirana rešenja u pisanoj formi dostave Sekretarijatu za urbanizam i građevinske poslove, Ulica kraljice Marije br. 1, najkasnije do 19. aprila 2024. godine.
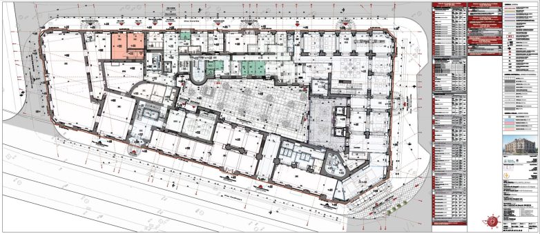
Hotel Bristol – osnova prizemlja
Hotel Bristol – osnova mezanina
Hotel Bristol – osnova prve etaže
Hotel Bristol – osnova treće etaže
Hotel Bristol – osnova krova
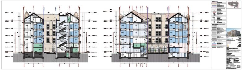
Hotel Bristol – presek A-A i B-B
Hotel Bristol – presek C-C
Hotel Bristol – izgled sever
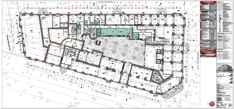
Podzemna garaža – nivo -2
Podzemna garaža – nivo -1
Podzemna garaža – nivo -0,5
Podzemna garaža – presek 1-1 i parcijalni preseci kroz stepeništa
Izgled Hotela Bristol nakon rekonstrukcije; Vizuelizacija: Bureau Cube Partners
Vizuelizacija: Bureau Cube Partners
Vizuelizacija: Bureau Cube Partners
Vizuelizacija: Bureau Cube Partners
Vizuelizacija: Bureau Cube Partners
Dvoetažna podzemna garaža sa uređenom parkovskom površinom na krovu; Vizuelizacija: Flow Plus
Vizuelizacija: Flow Plus
Vizuelizacija: Flow Plus
Vizuelizacija: Flow Plus
Garaža ispod parka kod Hotela Bristol; Vizuelizacija: Flow Plus
客服
消息
收藏
下载
最近



























