查看完整案例

收藏

下载
Dieses Mini-Apartment in Paris nutzt seine 44 Quadratmeter unglaublich clever
So entstand aus einer verlebten Zweizimmerwohnung mit Blick auf den Parc des Buttes-Chaumont ein kleines Apartment mit offenem Flow, das lichte Räume mit knalligen Farben kombiniert.
Nicolas Milon
BCDF studio
Kleine Wohnung mit 44 Quadratmetern – so nutzen Sie in kleinen Räumen jeden Winkel clever.
, verstellt durch vielerlei Trennwände und ohne jedes Raumgefühl, dafür aber mit zahlreichen Fenstern, die reizvolle Lichtspiele erzeugen und einen großartigen Blick über den Parc des Buttes-Chaumont bieten – Noa Peer und Flore Raimbault vom Pariser Architekturbüro OUI erkennten das
des kleinen Apartments sofort. Vor allem sein Layout musste überarbeitet werden, um mehr Platz zu schaffen. „Der Eigentümer ist ein Mann in den Dreißigern – er wollte so viel wie möglich aus dem Wohnraum machen. Da er allein lebt, musste auch Platz geschaffen werden für
Drei Nischen ersetzten Flur, Küche und Stauraum
Nach mehreren Entwürfen entschied sich der Auftraggeber für einen stark vereinfachten Grundriss mit drei Nischen, in denen der Eingangsbereich, die Küche und diverser Stauraum untergebracht sind. Sie setzen sich mit ihren
Im Wohnzimmer bilden ein modulares Bücherregal von String Furniture vor der grün-blauen Wand ein subtiles Sixties-Ensemble. Der Parkettboden aus hellem Holz ist in großen Fliesen verlegt.
Ein weiteres String-Regal integriert einen kleinen Arbeitsplatz in den Wohnraum.
Clevere Einbauten nutzen die kleine Wohnung optimal
Im hinteren Teil der kleinen Wohnung befinden sich der Schlafbereich und das Bad, die vom Rest der Räume durch eine Schiebetür abgetrennt sind und wie eine offene Suite behandelt werden. Dazu gehören Ankleidezimmer und
Weitere Eindrücke aus der 44 Quadratmeter kleinen Wohnung
Die Küche ist offen gestaltet, sie enthält auf minimalem Raum alles, was man braucht. Die zweite Nische führt zum Eingangsbereich. Der Boden ist mit weißen Mosaikfliesen optisch vom hellen Holzparkett des Wohnzimmers getrennt.
Minimalistisches Spiel mit Materialien und Farbtönen zwischen Küche, Wohnzimmer und dem Vorraum zum Schlafbereich. Die Schiebetüren öffnen den Raum bei Bedarf komplett.
Das Schlafzimmer ist erhöht und integriert Stauraum am Fuß der kleinen Stufen, im Kopfteil des Bettes und an der linken Wand.
Birkensperrholz bildet einen weichen Rahmen, der einen ruhigen Kontrast zum matten Schwarz bildet.
Unter dem Podest des Betts verbergen sich ein ausziehbares Gästebett und eine Sitzbank – die sich aber in den Wohnbereich hinein öffnen und ihn bei Bedarf in ein Gästezimmer verwandeln.
Der Flur zum Badezimmer ist mit Terrazzo und mattschwarzer Farbe gestaltet – die harten Kontraste verstärken das einfallende Licht.
Das Badezimmer am Ende des Flügels profitiert von seiner Südwest-Ausrichtung, die den Raum großzügig mit Tageslicht flutet.
Im Badezimmer sorgen geriffeltes Glas und Terrazzo für Minimalismus mit modernem Chic. Die kugelförmige Wandleuchte ist von &tradition, die Armaturen von Neve.
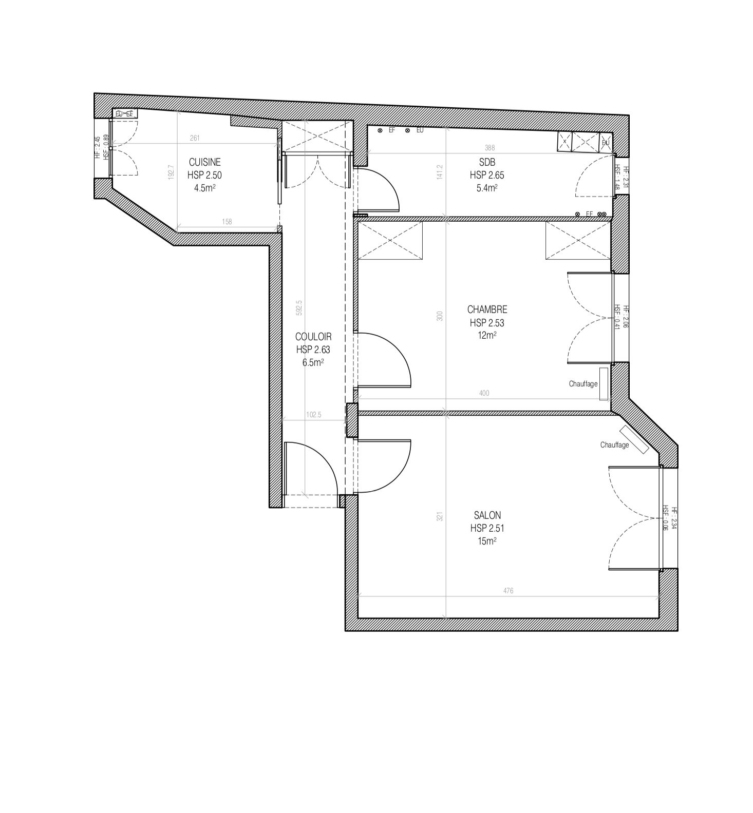
Der Grundriss der Wohnung vor …
… und nach dem Umbau.
客服
消息
收藏
下载
最近















