查看完整案例

收藏

下载
Gufa
Island
Rintala Eggertsson Arkitekter
Eierne av en gammel gård på Leiðarhöfn, et lite sted i utkanten av Vopnafjörður, nordøst på Island, hadde overtatt den nedslitte gården etter slektninger og ønsket å restaurere bygningene litt etter litt. Arbeidet startet med et saunaprosjekt.
Badstuprosjektet ligger på en gammel gård på Leiðarhöfn, et lite sted i utkanten av Vopnafjörður, nordøst på Island. Eierne som hadde overtatt den nedslitte gården etter slektninger, ønsket å restaurere bygningene litt etter litt, og ville starte arbeidet med et saunaprosjekt.
Bygningen som pekte seg ut som best egnet til dette, var et båthus fra 1950-tallet. Dette hadde de siste årene kun vært brukt til fermentering av hai. Fra båthuset har man god tilgang til sjøen og avkjøling mellom badstuøktene. Gulv, vegger og tak bar tydelig preg av hvor værhardt det er på stedet. Betongoverflaten var forvitret, taket i bølgeblikk rustent og trekledningen i deler av fasaden, patinert og full av hull. Men til den nye funksjonen var ikke dette noen ulempe, siden lufting er en viktig del av det termiske kretsløpet i en tradisjonell badstu.
Ved utformingen av badstuen ønsket vi å henvise til tidligere bruk av bygningen. Vi løftet badsturommet opp fra gulvet slik man gjorde med båter som ble tatt inn til reparasjon mens båthuset fremdeles var i drift. Konstruksjonen er følgelig forankret i veggene, noe som muliggjør god drenering og lufting fra undersiden.
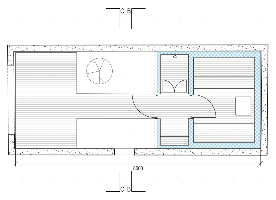
Badstuprosjektet består av tre deler. På vei inn ankommer man et dekk, en brygge, med referanse til den maritime fortiden til bygget. Her tar man av seg skoene, og det brukes igjen som et akklimatiseringssted på vei ut av bygget. Videre går man over landgangen, eller broen, til badstudelen i enden av båthuset. Badstudelen er todelt: En sluse med omkledningsnisje på den ene siden, dusj på den andre, og selve saunarommet med den vedfyrte saunaovnen som et blikkfang i enden av gangaksen.
Det er plass til opptil 12 personer i badstuen, på tre sittebenker som spenner fra vegg til vegg. Benkene er kledd med lokal osp, noe man nylig har begynt å utvinne på Nordøst-Island, og det er vanlig glattkant-kledning på vegger og gulv. Til fasaden på badsturommet er det brukt gjenbruksmaterialer fra renoveringen av inngangsfasaden som måtte byttes ut. Konstruksjonen er i heltre. På gulvet under saunaen ble det brukt et lag med rullestein av islandsk basalt fra den nærmeste stranden. Basalt er en hygroskopisk steinart og kan derfor oppta en del av fuktigheten i rommet for så å avgi den etter hvert.
Aksen fra inngangen via landgangen mot saunarommet.
Foto: Ingveldureinarsdottir
Aksen fra saunarommet via landgangen mot inngangen.
Foto: Rakelelvasævarsdottir
Ny fasade i polykarbonat slipper kjølig dagslys inn i bygget, i kontrast til det varme lyset fra saunaovnen.
Foto: Rakelelvasævarsdottir
Det gamle båthuset sitter vakkert i det golde lanskapet med utsikt mot ankomsten til gården og et gløtt mot sjø og fjell fra ankomstdekket.
Foto: Rakelelvasævarsdottir
Rintala Eggertsson Arkitekter
Ingveldur Einarsdóttir
Ársæll Friðriksson
2024
Leiðarhöfn, Vopnafjörður, Island
Friðrik Ársælsson
Plan.
Illustrasjon: Rintala Eggertsson Arkitekter
Snitt, B-B og C-C.
Illustrasjon: Rintala Eggertsson Arkitekter
客服
消息
收藏
下载
最近









