查看完整案例

收藏

下载
Betonová přístavba ke starému domu na irském venkově ctí principy regionální architektury
Jednoduchost, tradice a důraz na přirozené stárnutí stavby. To vše se propsalo do návrhu rodinného domu Rust-ic House na irském venkově od mezinárodní architektonické kanceláře Urban Agency. Architekti se u návrhu inspirovali formou tradiční venkovské architektury. Do hornaté krajiny umístili několik tvarově jednoduchých objektů, které propojuje podzemní chodba. Celým projektem prostupuje myšlenka přirozeného stárnutí architektury, kterou symbolicky ztělesňuje „zkorodovaná“ fasáda z betonu s přidanými pigmenty rzi.
Urban Agency je architektonická kancelář sídlící v Kodani, Dublinu a francouzském Lyonu, která se zabývá především problematikou současného urbanismu a navrhováním větších veřejných staveb nejen na evropském kontinentu, ale také v Asii či severní Africe. Jejich portfolio však obsahuje i stavby menšího měřítka, mezi které spadá také projekt Rust-ic House – rodinný dům zasazený do krajiny irského venkova, která svou divokostí uchvátila ateliér podobně, jako uchvátila irské impresionistické umělce v 19. století.
Malebnost jedinečného prostředí projekt nijak nenarušil, snad právě naopak. Architekti navázali na stávající stavení a nový objekt proto zasadili do svažitého terénu. Přitom dokázali maximálně využít výhledů na jezero Carragh, které se nachází v údolí místní hornaté přírody.
Důvod, proč Rust-ic House působí ve svém prostředí natolik přirozeně a nenuceně, ovšem nespočívá jen v citlivé práci s terénem. V celém návrhu je na první pohled patrná silná inspirace tradiční irskou venkovskou architekturou, z níž architekti do svého projektu převzali historií prověřené kvality. Stávající budova prošla důkladnou rekonstrukcí a její jednoduchý a funkční tvar se stal vzorem pro nově vzniklé přístavby.
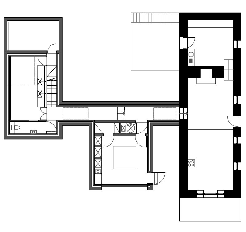
Rust-ic House je zajímavým příkladem, jak při zachování tradičních postupů dosáhnout dnešního standardu bydlení. Rodinný dům tvoří soubor tří budov, z nichž každá plní konkrétní funkci. Starší objekt byl renovován na obývací pokoj v rustikálním stylu, ve zbylých dvou částech je umístěna jižně orientovaná ložnice s velkorysým výhledem na jezero a netradičně řešená koupelna. Všechny tři části jsou navzájem propojené podzemní chodbou. Architekti využili svažitého terénu a některé místnosti umístili také pod úroveň terénu. Jednotlivé domy bylo díky tomu možno více „výškově rozehrát“, aniž by byla narušena jejich jednotná forma.
ZACHYCENÁ PROMĚNLIVOST ARCHITEKTURY
Třetím heslem, které vedle jednoduchosti a tradice vystihuje charakter projektu, je přirozené stárnutí. Nekonečný běh času byl totiž v případě Rust-ic House povýšen na důležitý architektonický element. Jednou z inspirací při navrhování byla pro architekty díla brazilského umělce Joseho Bachary, který při tvorbě často cíleně využívá oxidace kovů. Běžně nežádoucí proces se tak mění v netradiční umělecký prvek.
Podobný princip „nucené koroze“ aplikovalo Urban Agency také ve svém návrhu. Nové přístavby tvoří beton, do nějž jsou přidány pigmenty rzi, které způsobují neobvyklý „kovový“ vzhled stavby. Proměnlivé rezivění fasád se stalo nositelem myšlenky přirozeného stárnutí nejen daného materiálu, ale celé stavby.
Síla návrhu Rus-ic House nespočívá v originální formě, ale v pokorném přijetí tradice. Studiu Urban Agency tak vytvořilo nadčasové dílo, které svým řešením přirozeně ctí divokou okolní přírodu i historické kvality regionální architektury.
Ateliér: Urban Agency
Země: Irsko
Realizace: 2018
Užitná plocha: 120.00m2
Materiál: beton
Rust-ic House, Urban Agency Foto: Unique Home Stays 2/39
Rust-ic House, Urban Agency Foto: Paul Tierney Photography 3/39
Rust-ic House, Urban Agency Foto: Paul Tierney Photography 4/39
Rust-ic House, Urban Agency Foto: Paul Tierney Photography 5/39
Rust-ic House, Urban Agency Foto: Paul Tierney Photography 6/39
Rust-ic House, Urban Agency Foto: Paul Tierney Photography 7/39
Rust-ic House, Urban Agency Foto: Paul Tierney Photography 8/39
Rust-ic House, Urban Agency Foto: Paul Tierney Photography 9/39
Rust-ic House, Urban Agency Foto: Paul Tierney Photography 10/39
Rust-ic House, Urban Agency Foto: Paul Tierney Photography 11/39
Rust-ic House, Urban Agency Foto: Paul Tierney Photography 12/39
Rust-ic House, Urban Agency Foto: Paul Tierney Photography 13/39
Rust-ic House, Urban Agency Foto: Paul Tierney Photography 14/39
Rust-ic House, Urban Agency Foto: Paul Tierney Photography 15/39
Rust-ic House, Urban Agency Foto: Paul Tierney Photography 16/39
Rust-ic House, Urban Agency Foto: Paul Tierney Photography 17/39
Rust-ic House, Urban Agency Foto: Paul Tierney Photography 18/39
Rust-ic House, Urban Agency Foto: Paul Tierney Photography 19/39
Rust-ic House, Urban Agency Foto: Paul Tierney Photography 20/39
Rust-ic House, Urban Agency Foto: Paul Tierney Photography 21/39
Rust-ic House, Urban Agency Foto: Paul Tierney Photography 22/39
Rust-ic House, Urban Agency Foto: Paul Tierney Photography 23/39
Rust-ic House, Urban Agency Foto: Paul Tierney Photography 24/39
Rust-ic House, Urban Agency Foto: Paul Tierney Photography 25/39
Rust-ic House, Urban Agency Foto: Paul Tierney Photography 26/39
Rust-ic House, Urban Agency Foto: Paul Tierney Photography 27/39
Rust-ic House, Urban Agency Foto: Paul Tierney Photography 28/39
Rust-ic House, Urban Agency Foto: Paul Tierney Photography 29/39
Rust-ic House, Urban Agency Foto: Paul Tierney Photography 30/39
Rust-ic House, Urban Agency Foto: Paul Tierney Photography 31/39
Rust-ic House, Urban Agency Foto: Paul Tierney Photography 32/39
Rust-ic House, půdorys 1,Urban Agency 33/39
Rust-ic House, půdorys 2,Urban Agency 34/39
Rust-ic House, půdorys 3,Urban Agency 35/39
Rust-ic House, pohledy a řezy 1,Urban Agency 36/39
Rust-ic House, pohledy a řezy 2,Urban Agency 37/39
Rust-ic House, pohledy a řezy 3,Urban Agency 38/39
Rust-ic House, model objektu,Urban Agency 39/39
Rust-ic House, Urban Agency Foto: Unique Home Stays
Rust-ic House, Urban Agency
Foto: Paul Tierney Photography
Rust-ic House, Urban Agency
Foto: Paul Tierney Photography
Rust-ic House, Urban Agency
Foto: Paul Tierney Photography
Rust-ic House, Urban Agency
Foto: Paul Tierney Photography
Rust-ic House, Urban Agency Foto: Paul Tierney Photography
Rust-ic House, Urban Agency Foto: Paul Tierney Photography
Rust-ic House, Urban Agency
Foto: Paul Tierney Photography
Rust-ic House, Urban Agency Foto: Paul Tierney Photography
Rust-ic House, Urban Agency Foto: Paul Tierney Photography
Rust-ic House, Urban Agency
Foto: Paul Tierney Photography
Rust-ic House, Urban Agency
Foto: Paul Tierney Photography
Rust-ic House, Urban Agency
Foto: Paul Tierney Photography
Rust-ic House, Urban Agency
Foto: Paul Tierney Photography
Rust-ic House, Urban Agency
Foto: Paul Tierney Photography
Rust-ic House, Urban Agency
Foto: Paul Tierney Photography
Rust-ic House, Urban Agency
Foto: Paul Tierney Photography
Rust-ic House, Urban Agency Foto: Paul Tierney Photography
Rust-ic House, Urban Agency Foto: Paul Tierney Photography
Rust-ic House, Urban Agency
Foto: Paul Tierney Photography
Rust-ic House, Urban Agency
Foto: Paul Tierney Photography
Rust-ic House, Urban Agency
Foto: Paul Tierney Photography
Rust-ic House, Urban Agency
Foto: Paul Tierney Photography
Rust-ic House, Urban Agency
Foto: Paul Tierney Photography
Rust-ic House, Urban Agency
Foto: Paul Tierney Photography
Rust-ic House, Urban Agency
Foto: Paul Tierney Photography
Rust-ic House, Urban Agency
Foto: Paul Tierney Photography
Rust-ic House, Urban Agency
Foto: Paul Tierney Photography
Rust-ic House, Urban Agency
Foto: Paul Tierney Photography
Rust-ic House, Urban Agency
Foto: Paul Tierney Photography
Rust-ic House, Urban Agency
Foto: Paul Tierney Photography
Rust-ic House, půdorys 1,Urban Agency 33/39
Rust-ic House, půdorys 2,Urban Agency 34/39
Rust-ic House, půdorys 3,Urban Agency 35/39
Rust-ic House, pohledy a řezy 1,Urban Agency 36/39
Rust-ic House, pohledy a řezy 2,Urban Agency 37/39
Rust-ic House, pohledy a řezy 3,Urban Agency 38/39
Rust-ic House, model objektu,Urban Agency 39/39
客服
消息
收藏
下载
最近

















































