查看完整案例

收藏

下载
Projektovana visina venca petog sprata iznosi 14,25 metara: render: Cube-D
U Opštini Stari grad planirana petospratnica sa 17 stanova
Canestro d. o. o. planira da u ulici Koste Stojanovića u Beogradu izgradi objekat koji bi sadržao 17 stambenih jedinica i 30 parking mesta.
Gradska uprava Grada Beograda, Sekretarijat za urbanizam i građevinske poslove, oglašava javnu prezentaciju Urbanističkog projekta za izgradnju objekta na građevinskoj parceli u Ulici Koste Stojanovića broj 61
Nosilac izrade projekta je beogradski biro „Cube-D“, investitor kompanija „Canestro“ d.o.o, takođe iz Beograda, dok se predmetna parcela nalazi na teritoriji katastarske opštine Stari grad, u bloku između ulica Svetogorske, Palmotićeve, Stevana Sremca i Koste Stojanovića.
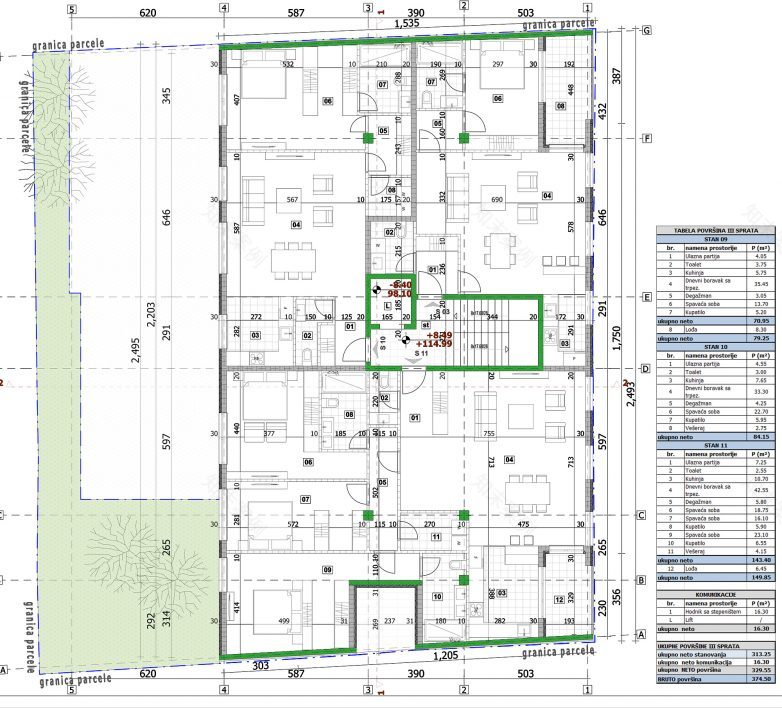
Planirani objekat je projektovan kao stambeno - poslovni, a funkcionalno je podeljen u tri dela – stambeni, poslovni i pomoćni (garaža). Projektovana spratnost objekta je 2Po+P+5+Ps
Matrica bloka je pravilnog pravougaonog oblika: Plac u Ulici Koste Stojanovića U ravni sa susednim vencem
Projektovana visina venca petog sprata iznosi 14,25 metara, odnosno 120,65 mnv (u skladu sa širinom regulacije ulice i odnosom 1:1,5), dok je visina venca povučene etaže 17,08 m, odnosno 123,48 mnv, odnosno u ravni sa susednim vencem.
Planiranom objektu obezbeđen je kolski i pešački pristup iz ulice Koste Stojanovića. Kolski pristup omogućen je preko upuštenog ivičnjaka/ojačanog trotoara, i jednosmerne rampe nagiba od 5 do 12,5% i auto-lifta.
Na predmetnoj parceli obezbeđen je broj parking mesta po zadatim parametrima:
17 stambenih jedinica x 1.1 PM = 18,7 PM;
neto površina poslovanja 73,50 m² / 60 m²= 1.225 PM;
od čega: 19,925 parking mesta x 5%= 0.99625 – jedno parking mesto za osobe sa invaliditetom.
Osnova prizemlja
30 parking mesta u podzemnim etažama
U sklopu objekta projektom su predviđene dve podzemne etaže, od čega je prva namenjena za parkiranje, tehničke prostorije i stanarske ostave, a druga etaža je većinski u funkciji garaže.
Na navedenim etažama smešteno je 30 parking mesta, od čega su dva za osobe sa invaliditetom, oba smeštena na prvoj podzemnoj etaži. Na drugoj podzemnoj etaži smešteno je 5 trostrukih WÖHR parking sistema tip 403 i jedno pojedinačno parking mesto.
Parkiranju je omogućen pristup preko auto-lifta, ispred kog je u prizemlju smeštena natkrivena, jednosmerna rampa nagiba od 5 do 12,5%, dužine 8,61 m, širine od 3,67 m do 4,01 m.
Presek 1
Poslovanje je smešteno u frontalnom delu prizemlja, a stanovanje od dvorišnog dela prizemlja do povučenog sprata.
Zadat procenat slobodnih površina na parceli iznosi 30% (570 m² x 30% = 171,00 m²). Ostvaren procenat slobodnih površina iznosi 34,30%, odnosno 195,51 m². Planom definisan procenat zelenih površina u direktnom kontaktu sa tlom iznosi 10% (57,00 m², a projektom je ostvareno 13,32 % tj. 75,95 m²).
Planirana zgrada funkcionalno je podeljena po vertikali – funkcija garaže smeštena je na dve etaže podruma, stanarske ostave i tehničke prostorije su smeštene na prvoj podzemnoj etaži (zajedno sa funkcijom garaže), poslovanje je smešteno u frontalnom delu prizemlja, a stanovanje od dvorišnog dela prizemlja do povučenog sprata.
Presek 2
Olučne vertikale smeštene u fasadi
Na oblikovanje fasade, kao i na njenu materijalizaciju uticala je prvenstveno funkcija (luksuzno stanovanje i poslovanje). Predviđeno je da stambene jedinice komuniciraju sa spoljnim prostorom preko lođa, odnosno terasa.
Kao završna fasadna obloga na uličnoj fasadi predviđen je prirodni kamen na potkonstrukciji, dok je kao završni sloj dvorišne fasade predviđen bavalit. Predviđena je i razlika u tonu kamena – zbog postizanja kontrasta i kako bi se naglasila proporcija samog objekta.
Projektovani krov je ravan krov, sa nagibom krovnih ravni od 1,5%. Odvođenje vode sa krova predviđeno je pomoću rigola, završni sloj je hidroizolaciona membrana, a sve olučne vertikale biće smeštene u fasadi.
Na oblikovanje fasade uticala je prvenstveno funkcija objekta; render: Cube-D
Primedbe i sugestije najkasnije do 20. decembra
Javna prezentacija obaviće se u zgradi Gradske uprave grada Beograda, u Ulici 27. marta br. 43-45 (sala 2 u suterenu) od 10. do 20. decembra 2021. godine, svakog radnog dana od 9 do 15 časova.
Zainteresovana lica mogu tokom javne prezentacije da izvrše uvid u urbanistički projekat, kao i da svoje primedbe i sugestije na planirana rešenja u pisanoj formi dostave Sekretarijatu za urbanizam i građevinske poslove, Ulica 27. marta br. 43-45, najkasnije do 20. decembra 2021. godine.
客服
消息
收藏
下载
最近









