查看完整案例

收藏

下载
Freud Oriental στην Κηφισιά
Interior Design:
Stones & Walls
Φωτογράφηση:
Γαβριήλ Παπαδιώτης
Θεατρική ατμόσφαιρα
Το εστιατόριο, που βρίσκεται στην καρδιά της Κηφισιάς, αποτελεί πρότυπο διακριτικής πολυτέλειας και γαστρονομικής υπεροχής, με τον σχεδιασμό του να χαρακτηρίζεται από τη μινιμαλιστική προσέγγιση και τις αρχές της ιαπωνικής αισθητικής.
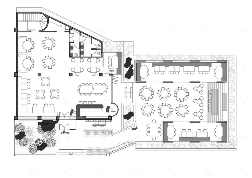
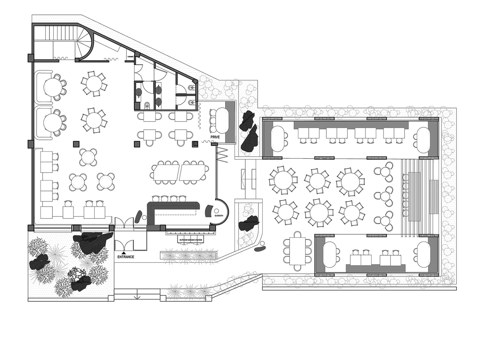
Λειτουργική διάταξη
Η κάτοψη διακρίνεται σε δύο οριζόντια παρατεταγμένες ζώνες -στεγασμένη και υπαίθρια- οι οποίες τοποθετούνται σε επίπεδα με μικρή υψομετρική διαφορά. Η πρόσβαση στην εξωτερική ζώνη πραγματοποιείται είτε από την κεντρική είσοδο με έναν υπαίθριο διάδρομο στα δεξιά της, είτε μέσα από το εσωτερικό του εστιατορίου. Πρόκειται για μια ιδιαίτερη αυλή, χαρακτηριστικό της οποίας είναι ένα μεταλλικό κέλυφος φτιαγμένο σαν πλέγμα σχήματος Π, το οποίο σε συνδυασμό με τη φύτευση δημιουργεί μια “κορνίζα“ για το πέτρινο bar που δεσπόζει στο βάθος του χώρου. Τραπεζοκαθίσματα σε σκούρα απόχρωση και ένα φωτισμένο δέντρο συμπληρώνουν το ατμοσφαιρικό σκηνικό που δημιουργούν τα μεταλλικά και πέτρινα στοιχεία.
Εσωτερική διαμόρφωση
Ο σχεδιασμός του εσωτερικού αναδεικνύει την αρχιτεκτονική της ιαπωνικής κουλτούρας, τονίζοντας τη σύνθετα κατασκευασμένη οροφή από ξύλινες τράβες στη μορφή ενός πλεκτού κανάβου. Τραπέζια και καθίσματα σε διάφορες μορφές -στρογγυλά, ορθοκανονικά αλλά και καναπέδες- χωροθετούνται είτε στην περίμετρο, είτε ελεύθερα στο κέντρο του χώρου. Το μεταλλικό πρισματικό bar σε απόχρωση μπρούτζου βρίσκεται στη γωνία, δίπλα από την κεντρική είσοδο, ενώ οι βοηθητικές χρήσεις και τα wc καταλαμβάνουν την πίσω πλευρά της κάτοψης.
Παλέτα υλικών & φωτισμός
Η παλέτα των χρωμάτων είναι μια συμφωνία της γήινης μονοχρωμίας, που συμπληρώνεται από την υλικότητα των πέτρινων τοίχων και των χειροποίητων τσιμεντόλιθων στα δάπεδα. Ένας μπλε πορσελάνινος τοίχος εμπνευσμένος από την ιαπωνική τέχνη διακόπτει τη γήινη αίσθηση, ενώ ιδιαίτερη έμφαση έχει δοθεί στον φωτισμό της ψηλοτάβανης αίθουσας ώστε να τονιστεί η μυσταγωγική της ατμόσφαιρα. Μεταλλικά βάθρα με ιδιαίτερα χειροποίητα κεραμικά βάζα και ένα θεματικό έργο τέχνης με τη μορφή ενός σκοτεινού δάσος συμπληρώνουν τη θεατρική ατμόσφαιρα.
客服
消息
收藏
下载
最近









