查看完整案例

收藏

下载
Здание — Память, Erstudio
Здание отвечает концепции библиотеки как общественные места, доступного для всех граждан и призвано стать местом встречи для всего города.
Оно задумано как точка доступа к информации, что отвечает потребностям современного общества, в котором технологии смешиваются с культурой и историей, здание реагирует на требования Лондона в XXI веке.
Участок площадью 6 000 кв. м, расположен в районе садов «Поттер Филдс» , на берегу реки Темзы, всего в нескольких метрах от «Тауэрского моста». Это привилегированное положение позволяет библиотеке стать неотъемлемой частью одного из самых космополитичных городов мира, таких как Лондон. С участка есть вид на «Осколок», «Свисс ре» и железнодорожный пейзаж Саутварка.
Новый фрагмент вставляется в городскую ткань как некий новый образец.
Ответить на запросы участка — это стало основным условием проекта: соответствие масштабу города, создание городского пространства как внутри, так и снаружи, соединение с соседними зданиями с помощью логичной и рациональной циркуляции. В целях сохранения площади зелени на данном участке, были предложены новые рекреационные зоны. Программа проекта предполагает две зеленые зоны, такие как сад на крыше и на первом этаже, что позволяет жителям расширить использование библиотеки, наслаждаясь культурой, развлечениями и открытыми пространствами. Последние определяются как промежуточные пространства, которые даны и городу, и библиотеке, так что социальный аспект учитывается в проекте и укрепляется связь с соседними территориями.
Это монолитная конструкция, длинно-пролетное строение, что позволяет обеспечить гибкость проекта во внутренней пространственной организации.
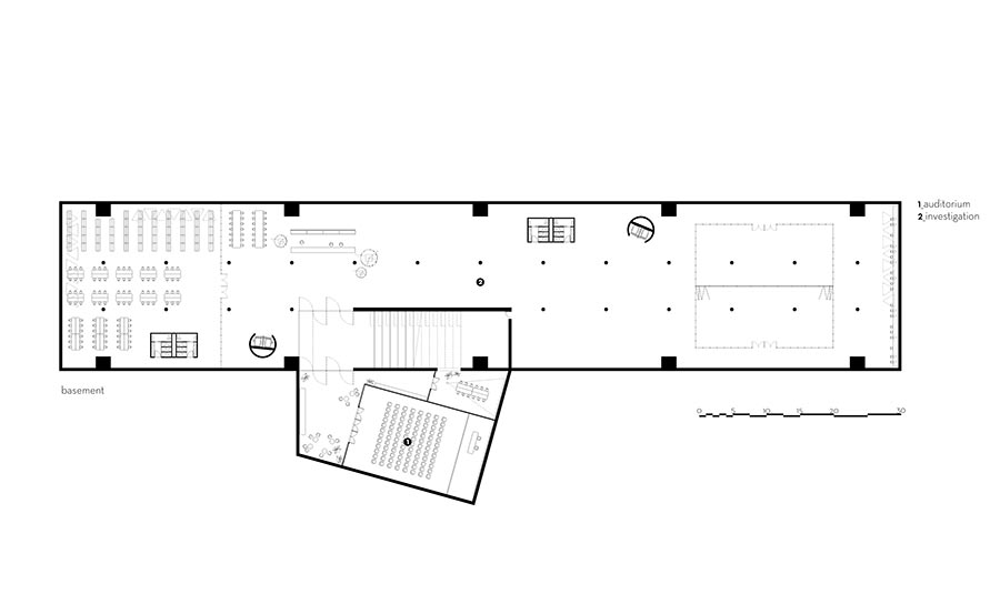
Большая часть программы находится внутри оболочки, в едином архитектурном контейнере, который приподнят, чтобы максимизировать общественное пространство. Внутри библиотеки, зонирование производится за счет использования, укрепления взаимоотношений между компонентами библиотеки и распространения программы в пространстве прогрессивной формы и социальной организации от пространств общественного назначения, до тех, которые используются отдельными посетителями. Градиент приватности начинается с большого зала, как продолжения города.
Архитекторы: ERSTUDIO
Рауль Феррандиз Лопес, Эстер Салиенте Солер
MEMORY PROJECT_ERSTUDIO
The building responds to the concept of a library as a public place accessible to all citizens and aims to become a meeting point for the city.
It is conceived as an access point to information that meets the needs of today’s society in which technology mixes with culture and history to respond to the demands of London in the twenty-first century.
The plot of 6000m2 is located in the «Potter Fields» gardens, at the banks of the River Thames, only meters away from the «Tower Bridge». This privileged position allows the library to join the identity of one of the most worldwide cosmopolitan cities, such as London. From the site there are views of The Shard, Swiss Re and the landscape of Southwark’s railway.
The new piece is inserted into the urban fabric of the city in an exemplary way. The answer to the place greatly conditions the project that fits the scale of the city, creating an urban space both inside and out, connecting with the surrounding buildings through a logical and rational circulation.
In order to preserve the green footprint of the current plot, new recreational areas are proposed. The program reaches two green areas, such as the roof garden and the ground floor that allows the inhabitants to expand the use of the library, enjoying the culture and entertainment in an outdoor space. The latter is identified as an intermediate space which is given to the city by the library, so the social aspect is shown and the hosting wish is strengthened.
The construction is dry-maded with a long-span structure that allows to provide flexibility to the project in the internal spatial arrangement.
Most of the program is located inside the skin of a single architectural container which is lifted to maximize public space. Inside the library, degradation is produced due to the uses, enhancing the relationship between areas and distributing the program in a more progressive form of the social spaces to those with single use. This privacy gradient begins with a large hall as a continuation of the city.
ERSTUDIO Raúl Ferrándiz López Esther Saliente Soler
Конкурс: Лондонская общественная библиотека
London public library competition
客服
消息
收藏
下载
最近








