查看完整案例

收藏

下载
Y kuća u Nemenikućama podno Kosmaja; Rendering: Milan Vlajić
Kuća u Nemenikućama: Dedovina podno Kosmaja spasena od zaborava
Kamen iz stare kuće uklopljen je u fasadu novog objekta, postavljenog tako da se pogled na planinu pruža ne samo iz dnevne sobe, već i sa galerije i skrivene terase.
U selu Nemenikuće, smeštenom u podnožju Kosmaja, najniže planine u Šumadiji posle Avale, arhitekta Milan Vlajić dobio je zadatak da osmisli kuću koja neće biti samo vikendica, već će se u njoj živeti tokom cele godine.
Kako je želja za povratkom prirodi svetski trend, tako je njegov klijent, planirajući povratak u Srbiju iz inostranstva, imao ideju da na mestu stare kuće svog dede stvori nešto svoje, a da pritom ipak sačuva neku dozu tradicije.
Kamen koji je izvađen nakon rušenja stare kuće uklopljen je u fasadu novog objekta; Rendering: Milan Vlajić
Dedino selo umesto centra Beograda
Imajući to u vidu, arhitekta Vlajić je odlučio da kamen koji su izvadili nakon rušenja stare kuće uklope u fasadu novog objekta, čuvajući tako dedinu kuću od zaborava.
Kako autor arhitekture objašnjava za naš portal, ideja za ovakav oblik kuće došla je spontano.
“Slušajući klijentove želje, shvatio sam da mu je najvažnije da bude skriven od okoline, da mu komšije ne zaviruju u dvorište i ne narušavaju mir koji želi da uvek ima u svom domu. Uostalom, zato je i odlučio da se vrati u dedino selo, umesto da kupi stan u centru Beograda”, kaže Vlajić.
Klijentu je najvažnije bilo da bude skriven od okoline; Rendering: Milan Vlajić
Naši preci su se okupljali oko ognjišta, koje sada može postati kamin oko kog će ukućani ušuškani gledati na prelepu planinu Kosmaj, i leti i zimi.
Kako bi u kući uvek postojala ta opuštena atmosfera, kakvu obično imamo samo u vikendicama i kućama predviđenim za odmor, Vlajić je morao centralni deo kuće potpuno da pretvori u mesto okupljanja i druženja, te je, kako naglašava, pogled na Kosmaj važan deo dnevne sobe.
“Ideja o dnevnoj zoni kao srcu kuće dolazi iz istorije, naši preci su se okupljali oko ognjišta, koje sada može postati kamin oko kog će ukućani ušuškani gledati na prelepu planinu Kosmaj, i leti i zimi”, objašnjava arhitekta.
Pogled na planinu pruža se i sa skrivene terase; Rendering: Milan Vlajić
Tri kraka za tri prostora
Kuća je, kako dodaje, na teren postavljena tako da se pogled na planinu pruža iz dnevne sobe, sa galerije i skrivene terase.
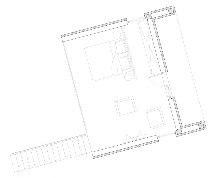
„Kako bih to izveo kuća je postala razuđena na tri kraka, dobila je Y oblik. Tri kraka slova Y čine tri prostora – dnevna zona, noćna zona i garaža“, navodi Vlajić.
Pomoćni objekat će Y kuću pretvoriti u pravi mali raj za druženje sa prijateljima i porodicom tokom prolećnih i letnjih dana.
Pored same kuće, objašnjava dalje, projekat obuhvata i jedan pomoćni objekat koji je predviđen za letnju kuhinju sa vinskim podrumom.
„Ovaj pomoćni objekat će Y kuću pretvoriti u pravi mali raj za druženje sa prijateljima i porodicom tokom prolećnih i letnjih dana“, kaže arhitekta.
Osnova prizemlja
Open space koncept dnevne zone
Sagovornik portala Gradnja ističe da ova kuća ima 180 kvadrata i odgovara na apsolutno sve potrebe jedne porodice.
„Dnevna zona zauzima čitav jedan krak kuće i koncipirana je kao veliki open space prostor raspona 6 m bez zidova i stubova sa dominantnim staklenim površinama koje otvaraju pogled ka planini“, objašnjava Vlajić.
Terasa se praktično nastavlja na dnevnu sobu i ne guši pogled iz nje, već se taj doživljaj nastavlja i na terasi.
„Naravno, vremenski uslovi na planini nisu uvek idealni, te terasa mora biti pokrivena. Odlučio sam se za pokrivanje pomoću čelične pergole koja je pokrivena livenim punim polikarbonatom“, dodaje on.
Terasa pokrivena pomoću čelične pergole koja je pokrivena livenim punim polikarbonatom; Rendering: Milan Vlajić
Krov je potpuno klasičan, na dve vode, ali zbog složenosti volumena objekta on se stapa kroz sva tri kraka i time dobija potpuno neuobičajen izgled.
Iz dnevne zone takođe se otvara i prolaz ka galeriji koja je, prema rečima autora, zamišljena kao skriveni kutak za rad ili odmor, odnosno prilagođava se potrebama ukućana.
Spavaća zona sastoji se od dve spavaće sobe, walk - in garderobera, kupatila i toaleta, a što se tiče spoljašnjosti kuće, osim fasade na kojoj će se iskoristiti kamen sa stare kuće i time, kako naš sagovornik kaže, uneti duh tradicije, još jedan element je u potpunosti tradicionalan.
„Naime, krov je potpuno klasičan, na dve vode, ali zbog složenosti volumena ovog objekta on se stapa kroz sva tri kraka i time dobija potpuno neuobičajen izgled“, navodi Vlajić.
Krov se kroz sva tri kraka kuće i daje joj neuobičajen izgled; Rendering: Milan Vlajić
Grejanje pomoću toplotnih pumpi
„Fasada je projektovana u kombinaciji sibirskog ariša, braon opeke i kamena, neutralnih tonova kako bi se kuća utopila u zelenilo koje je okružuje“, kaže arhitekta.
Kako bi ovaj dom bio energetski efikasan i uopšte korišćen na mestu na kom je predviđen, grejaće se pomoću toplotnih pumpi“ – objasnio je na kraju Milan Vlajić.
Izgradnja Y kuće počela je u septembru 2022. godine.
Fasada je projektovana u kombinaciji sibirskog ariša, braon opeke i kamena; Rendering: Milan Vlajić
Osnova galerije
Y kuća u Nemenikućama podno Kosmaja; Rendering: Milan Vlajić
Kamen koji je izvađen nakon rušenja stare kuće uklopljen je u fasadu novog objekta; Rendering: Milan Vlajić
Faktografija
naziv objekta: Y kuća
mesto: Nemenikuće, Sopot, Srbija
autor: Milan Vlajić, m.arh.
godina projektovanja: 2022.
početak izvođenja: Septembar 2022.
neto površina: 180 m2
spratnost: Po+P (pomoćni objekat) , P (stambeni objekat)
客服
消息
收藏
下载
最近














