查看完整案例

收藏

下载
Autori: Paul Katzberger, Michael Loudon, Fred Hofbauer, Josef Habeler, Anton Kirchweger
Investor: HYPO NOE Leasinggesellschaft - Valet Grundstücksverwaltungs GesmbH
Zastavaná plocha: 27690 m2
Podlažná plocha: 54773 m2
Návrh: 2016 - 2018
Realizácia: 2018 - 2020
Adresa: Sr. M. Restituta-Gasse 12, Mödling, Rakúsko
V nasledujúcich mesiacoch sa budeme snažiť predstaviť realizácie z okolitých krajín, ktoré boli nominované na Cenu európskej únie za súčasnú architektúru EU mies award. Slovenský výber sme koncom januára predstavili v samostatnom článku, ostatné realizácie nájdete v súvisiacich článkoch v závere textu. Pokračujeme predstavením ďalšej realizácie z verejného sektoru u našich západných susedov.
Dnes sa pozrieme do mesta Mödling, kde minulý rok dokončili štátnu nemocnicu s poliklinikou. Realizácia rozsahom zodpovedá plánovanej martinskej "nemocnici budúcnosti".
Večerný pohľad od hlavného vstupu Foto: Bruno Klomfar
Nemocnica pre stotisícové spádové územie okresu Mödling, ktorá sa nachádza iba päť kilometrov od južnej hranice katastrálneho územia Viedne nahradila staršie zdravotnícke zariadenie. Komplikovaná realizácia prebiehala v etapách a musela zabezpečiť súčasné fungovanie nových a starých blokov nemocnice. Projekt dokončený v roku 2020 kompletne nahradil nevyhovujúce objekty trojicou nových átriových pavilónov, ktoré zahŕňajú lôžkovú časť a modernú polikliniku.
Centrálne nádvorie pavilónu "C" Foto: Bruno Klomfar
Západný pohľad na vonkajšiu fasádu pavilónu "A" Foto: Bruno Klomfar
Urbanistické riešenie, ktoré člení prevádzku do vzájomne prepojených pavilónov s výškou 16 metrov sa snaží redukovať mierku novej zástavby. Nové objemy sú čiastočne ustúpené od ulice do zeleného prostredia vnútrobloku. Svet sám o sebe tvoria vnútorné átriá, do ktorých smerujú rozsiahle presklené plochy a výhľady z čakární a oddelení.
Situácia
Vonkajšie fasády z lícových tehál pieskovej farby pomáhajú začleniť novostavbu do mestskej štruktúry. Pevné vonkajšie steny a raster vonkajších perforácií nadväzuje typológiu v bezprostrednom okolí.
Severovýchodná hrana pavilónu "A" Foto: Bruno Klomfar
Pohľad do nádvoria pavilónu "A" Foto: Bruno Klomfar
Pavilóny vzájomne prepája transparentná centrálna hala. Architekti pri návrhu kládli dôraz na prehľadnosť prevádzky a jednoduchosť orientácie návštevníkov, pacientov a personálu. Výrazný informačný systém vedie návštevníkov z otvorenej centrálnej haly do jednotlivých pavilónov. Chodby sú na každom podlaží opticky prepojené s pohľadmi do átria, čo umožňuje rýchlu orientáciu v rámci celého komplexu. Samozrejmosťou je dôraz na flexibilitu využitia priestoru s minimom fixných konštrukcií (potrebu ešte zvýraznila “doba covidová”) a osobitá pozornosť venovaná štruktúre spoločných priestorov. Podporujú interakciu pacientov a vytvárajú komfortné zázemie pre personál.
Pôdorys prízemia
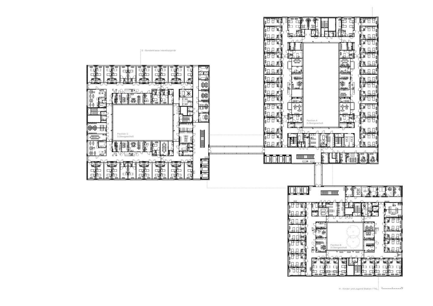
Pôdorys typického podlažia (3. NP)
Rezy
Pohľady
Dôraz autorov na kvalitu vnútorného prostredia podporuje materiálové riešenie. Tvrdé hygienické povrchy a svetlú farebnú schému dopĺňajú prírodné materiály ako drevo, alebo kameň.
Foyer, schodisko a výťahy Foto: Bruno Klomfar
Spojovacia chodba - optické prepojenie s átriom Foto: Bruno Klomfar
Kontaktný bod so zdravotnými sestrami na oddelení Foto: Bruno Klomfar
Hala pred pracoviskami doktorov Foto: Bruno Klomfar
Salónik / denná miestnosť pre personál Foto: Bruno Klomfar
Pohľad z chodby do átria Foto: Bruno Klomfar
Rádiologické pracovisko Foto: Bruno Klomfar
Interiér ambulancie Foto: Bruno Klomfar
Nemocničná izba Foto: Bruno Klomfar
Jednotka intenzívnej starostlivosti Foto: Bruno Klomfar
Nemocničná kuchyňa. Foto: Bruno Klomfar
fasch&fuchs.architekten
#eu mies award, #rakúsko, #nemocnica, #viedeň, #zdravotníctvo, #občianska budova, #infraštruktúra
Paul Katzberger
Michael Loudon
Fred Hofbauer
Josef Habeler
Anton Kirchweger
客服
消息
收藏
下载
最近























