查看完整案例

收藏

下载
Bình Thạnh House
Thiết kế: KTS. Võ Trọng Nghĩa + KTS. Shunri Nishizawa + KTS. Daisuke Sanuki (công ty Võ Trọng Nghĩa Architects và công ty Sanuki Nishizawa Architects)
Quy mô: 6 tầng
Diện tích sử dụng: 500 m2
Địa chỉ: quận Bình Thạnh, TPHCM
Đón được ánh sáng mỗi sớm mỗi chiều, đồng thời hiệu quả ánh sáng qua những khối bê tông còn tạo thành bóng đổ đẹp mắt, công trình này gợi nhơ một tác phẩm nổi tiếng của bậc thầy kiến trúc Le Corbusier:
Shodan House
được xây dựng ở Ahmedabad (Ấn Độ) năm 1956 – một mẫu mực về nhà ở bằng bê tông.
Yêu cầu của chủ đầu tư đặt ra với các kiến trúc sư Việt – Nhật là một ngội nhà cho hai gia đình – thật ra là một gia đình ba thế hệ: ông bà sẽ sử dụng hai tầng dưới, vợ chồng người con và đứa cháu sẽ ở hai tầng trên cùng, ở giữa các khu vực riêng ấy là các khối không gian chung.
Theo thiết kế, các khối riêng tư đều bao quanh phòng ngủ, phòng dành cho khách, bếp, phòng tắm giặt, vệ sinh… Ở khu vực chung cũng có phòng tiếp khách riêng cho mỗi gia đình, và đây là không gian tiếp cận hoàn toàn với thiên nhiên, khi các cửa kính ngăn các phòng khách và khoảng sân vườn được mở ra. Thêm vào đó, nhờ các block bằng bê tông đúc sẵn mà ánh sáng trời luôn chan hòa các khoảng sân vườn mặt trước và sau ngôi nhà cũng như tạo được hiệu quả ánh sáng cho các không gian.
Bắt tay nghiên cứu công trình này, các kiến trúc sư tìm thấy một yếu tố “trời cho”: ngôi nhà tương lai sẽ nằm cận kề sông nước và một công viên xanh tươi quanh năm – điều đó khiến họ đi tới giải pháp về một ngôi nhà thông thoáng tự nhiên, sử dụng tối đa ánh sáng và khí trời. Và đó còn là một kiến trúc của vùng nhiệt đới, gần gũi với người Việt, có hình khối được thiết kế hợp lý, luôn thoáng đãng nhưng vấn ngăn được bức xạ mặt trời và những cơn mua nặng hạt, đồng thời đảm bảo an toàn và sự riêng tư cần thiết cho gia chủ.
Trên cơ sở đó, các kiến trúc sư đã quyết định sử dụng những khối bê tông đúc sẵn cho công trình – mỗi khối có chiều ngang 60cm, cao 40cm; nhờ cách làm này ngôi nhà luôn đón được ánh sáng đẹp mỗi sớm mỗi chiều, đồng thời hiệu quả ánh sáng qua những khối bê tông còn tạo bóng đổ huyền ảo, gợi nhớ ngôi nhà Shodan nổi tiếng.
Giản dị, ngôi nhà bê tông này có một kiến trúc mới mẻ, không lại bất kỳ hình ảnh nào đã có trước đây nhưng vẫn quen mắt với người Việt. Một công trình xanh, gắn bó với thiên nhiên, được xây dựng với vật liệu hoàn toàn địa phương, phù hợp với sự phát triển của các đô thị lớn tại Việt Nam.
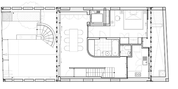
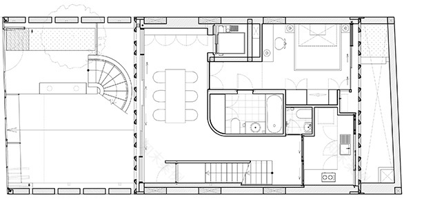
Mặt bằng tầng trệt
Mặt bằng tầng 1
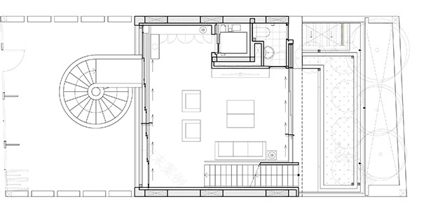
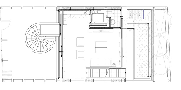
Mặt bằng tầng 2
Mặt bằng tầng 3
Mặt bằng tầng 4
Mặt bằng tầng 5
Mặt cắt
客服
消息
收藏
下载
最近

































