查看完整案例

收藏

下载
Anenská_Jeden byt, dva ateliéry, štyria obyvatelia ô + benkobenko v centre Bratislavy.
Autori: Ing. arch. Martin Kvitkovský, Mgr. art. Martin Varga, Mgr. art. Ing. arch. Jana Benková, Ing. arch. Juraj Benko
Investor: Mladá rodina
Podlažná plocha: 90 m2
Návrh: 2021 - 2022
Realizácia: 2022 - 2022
Adresa: Anenská, Bratislava, Slovensko
Bývanie pre mladú štvorčlennú rodinu. Priestor so silnou identitou v dome z 20. rokov minulého storočia. Sofistikovaná práca s priestorom a pôvodnou stavebnou substanciou.
Realizáciu bližšie predstaví výstižné sprievodné slovo autorov:
Koncom roka 2021 nás oslovili kamaráti, ktorí už dlhšiu dobu hľadali nový byt pre svoju rozrastajúcu sa rodinu s otázkou: „čo by sa dalo urobiť s týmto bytom?“. Situácia na realitnom trhu bola horúca a v podstate všetko, čo bolo uverejnené na inzertných portáloch, bolo do niekoľkých dní predané. Ešte v ten večer nasledovalo zopár rýchlych skíc, overenie niekoľkých variantov a odpoveď: „až tak veľa sa s tým urobiť nedá, ale ani to nie je potrebné“. O dva dni bol aj tento byt predaný - kamarátom.
Keďže sme v tej dobe mali v ateliéri vcelku napilno, padlo rozhodnutie osloviť na spoluprácu ďalších kamarátov, tentokrát architektov z ateliéru benkobenko. Jankin tvorivý optimizmus a Jurajov čistý pragmatizmus bolo niečo, čo mohlo tomuto bytu viac ako prospieť.
Fotografie pôvodného stavu: Dobrý základ
Centrum Bratislavy, Anenská ulica, modernistická stavba z rokov 1925 - 27. Dôstojnícke a rotmajsterské domy od dvojice českých architektov Alois Balán a Jiří Grossmann, boli viac ako dobrý základ pre akúkoľvek prácu. Byt v takmer pôvodnom stave sa nachádzal na 3. podlaží. Dispozícia bola šitá na danú dobu a potreby. Veľkorysá vstupná chodba s malou loggiou a samostatným wc, dve priechodné obytné izby a kuchyňa, z ktorej bol prístup do odvetranej komory, izby pre služobníctvo a priechodnej kúpeľne. Zachované obložky dverí s jemnou profiláciou, kazetové dverné krídla, pôvodné parkety a kovania. Okenné výplne už medzičasom síce stihli prejsť výmenou, všetko ostatné však nieslo známky prvého majiteľa. V čase, keď sme vstúpili do projektu, prebiehala v bytovom dome rozsiahla komplexná rekonštrukcia fasád a spoločných priestorov, počas ktorej dokázali zachovať celkový výraz objektu, ako aj množstvo dobových detailov.
Pôdorys - východiskový stav
Autori: ô + benkobenko
Návrh
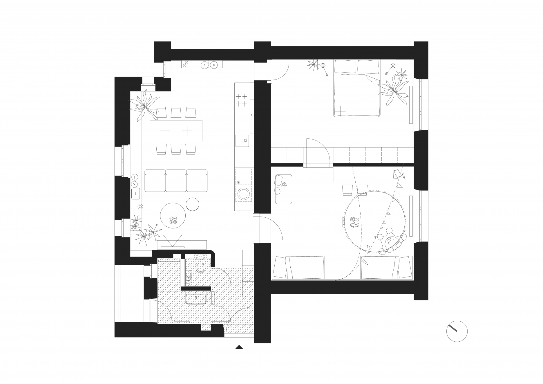
Zadanie bolo pomerne jednoduché - bývanie pre mladú štvorčlennú rodinu. Po zameraní však bolo pomerne rýchlo jasné, že lokalitný program s pôvodnými požiadavkami nebude možné do priestoru napratať. Po viacerých variantoch nakoniec vznikol návrh, ktorý v mnohom rešpektuje pôvodnú dispozíciu bytu, ale zároveň ju posúva smerom k predstavám investorov. Kuchyňa aj naďalej zostala akýmsi jadrom bytu, je však už súčasťou otvoreného denného priestoru. Priestranná chodba ustúpila novému bloku hygieny a malá loggia orientovaná do vnútrobloku, sa tak stala súčasťou kúpeľne (vetranie sprchy a sušenie prádla nikdy nebolo jednoduchšie:). Svetlosť chodby je nezmenená a sklenené výplne aj naďalej prepúšťajú do priestoru mäkké severné svetlo. Nenápadný oblý roh pôvodnej hygieny bol taktiež zachovaný a dostal svoje nové miesto na vloženom boxe sanity. Dve izby orientované do ulice slúžia ako spálňa s pracovňou a detská izba.
Pôdorys - nový stav
Autori: ô + benkobenko
Schematická axonometria
Autori: ô + benkobenko
Rekonštrukcia
Počas odstraňovania nenosných priečok, nášľapných vrstiev podlahy, poškodených častí stropov a maľoviek sa vynoril klasický balík otázok a problémov, ktoré sa objavia takmer vždy, keď sa pustíte do storočného interiéru. V severnej polovici bytu, v časti s miestnosťami s mokrou prevádzkou, boli odhalené železobetónové rebrové stropy, ktoré síce lákali na ich priznanie, zvíťazil však akustický komfort budúcich užívateľov. V južnej časti bytu sa pre zmenu nachádzajú ekonomickejšie drevené trámové stropy (podlahy), ktoré však bolo potrebné kvôli ich nadmernej dynamike dodatočne vystužiť. Stredová nosná stena, ukrývajúca komíny, zostala odhalená v pôvodnej pálenej tehle. Dubové parkety v izbách boli repasované, v nových častiach priestoru doplnené rovnakým formátom. Originálnu farebnosť a ornamentálnosť bytu, ktorá sa ukázala pri odstraňovaní niekoľkých vrstiev maľovky, sme sa dlho snažili ponechať aspoň vo fragmentoch, nakoniec však padlo rozhodnutie na jednotné zacelenie novou omietkou. Napriek tomu zostala pôvodná farebnosť miestností zachovaná, ale v prenesenej forme, na novom vstavanom nábytku. Dverné výplne a obložky boli repasované v bielej farbe.
Foto: Nora a Jakub Čaprnkovci
Foto: Nora a Jakub Čaprnkovci
Foto: Nora a Jakub Čaprnkovci
Povrchy a materiály
Interiéru bytu dominuje teplá drevená podlaha. Vstupná chodba s blokom hygieny nadväzujú na hexagonálnu keramickú dlažbu z podesty honosného centrálneho schodiska, avšak v komplementárnej farebnosti. Mohutná tehlová stena oddeľujúca dennú a nočnú časť bytu je v ostrom kontraste s hladkými štukovými omietkami a krehkým štruktúrovaným sklom na nových priečkach vloženej hygieny. Zelený laminát na hlavnom bloku kuchyne a mosadzné doplnky opäť raz odkazujú na pôvodnú farebnosť a vybavenie bytu.
Foto: Nora a Jakub Čaprnkovci
Foto: Nora a Jakub Čaprnkovci
Foto: Nora a Jakub Čaprnkovci
Foto: Nora a Jakub Čaprnkovci
Rekonštrukcie tohto druhu sú vždy krokom do neznáma a ich výsledný výraz sa častokrát mení za pochodu. Napriek tomu, že rozpočet a termín nasťahovania boli dané už na začiatku projektu, na jeho konci sa, žiaľ, podarilo prekročiť oboje. Vo finále tak nezostali prostriedky na všetky navrhnuté stolárske výrobky a mladá rodina sa nasťahovala do bytu, v ktorom je zatiaľ len to najnutnejšie. Tento fakt v žiadnom prípade neprekáža deťom, ktorých schopnosť zaplniť svojimi kreáciami akékoľvek prostredie nepozná medze. Príborník, dlhá lavica v obývacej izbe, knižnica alebo šatník, tak ešte čakajú na svoje postupné doplnenie do priestoru. To všetko však môže pokojne prísť kedykoľvek neskôr (alebo aj nikdy), pokiaľ je dobrý základ.
Foto: Nora a Jakub Čaprnkovci
Foto: Nora a Jakub Čaprnkovci
Foto: Nora a Jakub Čaprnkovci
Foto: Nora a Jakub Čaprnkovci
Foto: Nora a Jakub Čaprnkovci
Foto: Nora a Jakub Čaprnkovci
Foto: Nora a Jakub Čaprnkovci
Foto: Nora a Jakub Čaprnkovci
Foto: Nora a Jakub Čaprnkovci
Foto: Nora a Jakub Čaprnkovci
Foto: Nora a Jakub Čaprnkovci
Foto: Nora a Jakub Čaprnkovci
Autori: ô, benkobenko
Foto: Nora a Jakub Čaprnkovci (nový stav), ô (pôvodný stav)
#martin kvitkovský, #martin varga, #jana benková, #juraj benko, #ô, #benkobenko, #bratislava, #anenská, #rekonštrukcia, #prestavba, #obnova, #bývanie, #byt, #nora a jakub caprnka
Poloha diela
Ing. arch. Martin Kvitkovský
Mgr. art. Martin Varga
Mgr. art. Ing. arch. Jana Benková
Ing. arch. Juraj Benko
客服
消息
收藏
下载
最近























