查看完整案例

收藏

下载
The Bow
Karoleena
The Bow
Karoleena The Bow
Base Price: (/sf)
Total Cost:
Size (sf): 755
Bedrooms: 1
Bathrooms: 1
Levels: 1
Deck (sf):
Porch (sf):
Karoleena Models: The Kingston / The Fundy / The Kitsilano / The Muskoka / The Waterton / The Niagara / The Kicking Horse / The Bow / The Waskesiu
Karoleena The Bow Prefab Home
Karoleena Homes was acquired by Horizon North Logistics Inc in 2016. The original founders and creators of Karoleena Homes, Kurt and Kris Goodjohn, have since started a new residential prefab design and build firm Dvele.
View The New Home Designs By The Founders Of Karoleena at Dvele
The Bow prefab home model by Karoleena is a single - level modern - style single family home intended as a small primary residence or as a small vacation home. The home design offers abundant natural light and unobstructed views with over - sized windows, large sliding glass doors and clerestory windows.
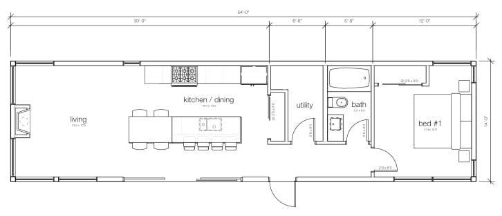
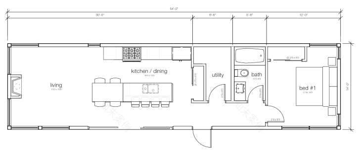
The exterior of the home features a large wrap - around deck space which is partially covered at the front and living room side. Inside the home, the front door opens to a combined, open kitchen / dining space with center island and sink. The living room extends from the combined kitchen / dining space to the outside wall of the home, which features a fireplace.
The single bedroom of the home offers excellent natural light and views with floor to ceiling corner windows. A full bath with a space - saving wall mounted toilet is adjacent to the bedroom. A large utility room offers storage and room for laundry and mechanicals.
Karoleena The Bow Features
West Coast modern styling
Large floor to ceiling windows and sliding glass doors
Precision factory construction
Steel framed modules
Spray foam insulation
High end finishes and fixtures
Bosch appliances
Duravit sinks
Grohe faucets
Heavy glass bath / shower enclosures
Emetek door hardware
Deck and rear of home
Exterior detail and deck at night
Living and kitchen view
Kitchen
Living and dining roooms
Bedroom
Hall and bathroom
Rendering of The Bow
The Bow floor plans
The Bow Room Summary (ft.in)
First Floor
Public Living Space
Living (13.2 x 13)
Kitchen / Dining (161 x 13)
Private Living Space
Master Bedroom (14 x 11.3)
Master Closet (8 x 2.5)
Bathrooms
Full Bath (5 x 5.8)
Utility Space
Outdoor Space
Second Floor
Bedrooms
Bathrooms
Additional Rooms
Home Build / Materials / Finishes
Prefab Home Package Includes
Build Details
Foundation: Foundation Wall & Footings
Roofing:
Framing:
Shealthing:
Construction Notes: All electrical circuits wired to code. Plumbing complete with PEX (crosslinked polyethylene), all fixtures and two exterior hose taps. Optional home automation, entertainment, data, security and audio wiring. Steel box frame with I-Beam frame and Hollow Square Structural columns.
Insulation
Ceiling: (R | Type) R-28 Polyurethane Spray Foam
Wall: (R | Type) R-28 Polyurethane Spray Foam
Ceiling: (R | Type) R-44 Polyurethane Spray Foam
Finishes
Siding:
Windows: Low-E dual pane
Entry Doors: Douglass Fir Slab Karoleena Entry
Sliding / Terrace Doors:
Walls: Gypsum drywall
Floors: Hardwood
Interior Finish Notes:
Karoleena The Bow Package Includes
Appliances
Range:
Cooktop: Bosch 500 Series Electric or Gas 36"
Microwave:
Oven: Bosch 500 Series Electric Wall Oven with Microwave (HBL5750UC)
Kitchen Hood: Bosch 29" Canopy Hood Stainless Steel (DHL755BUC)
Refrigerator: Bosch Linea 500 Series Stainless Steel (B22CS50SNS)
Dishwasher: Bosch 500 Series 24" Stainless Steel (SHX65T55UC)
Washer / Dryer:
Kitchen
Countertops: Formica and butcher block countertops
Kitchen Cabinets: Ikea
Kitchen Sink: Duravit Vero
Kitchen Faucet: Grohe Atrio
Bath
Bath Sink: Duravit Vero
Bath Faucet: Grohe Atrio
Toilet: Duravit D-Code Series (Wall Mounted)
Bath Tub: Aquabrass Caicos
Mechanicals
Water Heater: Rinnai Gas On-Demand
HVAC Heating: Heat Exchanger with Unico Small-Duct, High-Velocity System
HVAC Cooling: Optional using the Unico System
Ventilation System: Unico Small-Duct, High-Velocity System
Solar Panels:
Alt Energy System: Rais wood burning stove or Regency Horizon gas fireplace
Green Home Features:
Green Home Features
Green Home Features:
Alt Energy System: Rais wood burning stove or Regency Horizon gas fireplace
Solar Panels:
客服
消息
收藏
下载
最近











