查看完整案例

收藏

下载
多樓層挑高的書架空間,香港中文大學深圳校園圖書館 / 王維仁建築設計研究室
多樓層挑高的書架空間,香港中文大學深圳校園圖書館 / 王維仁建築設計研究室
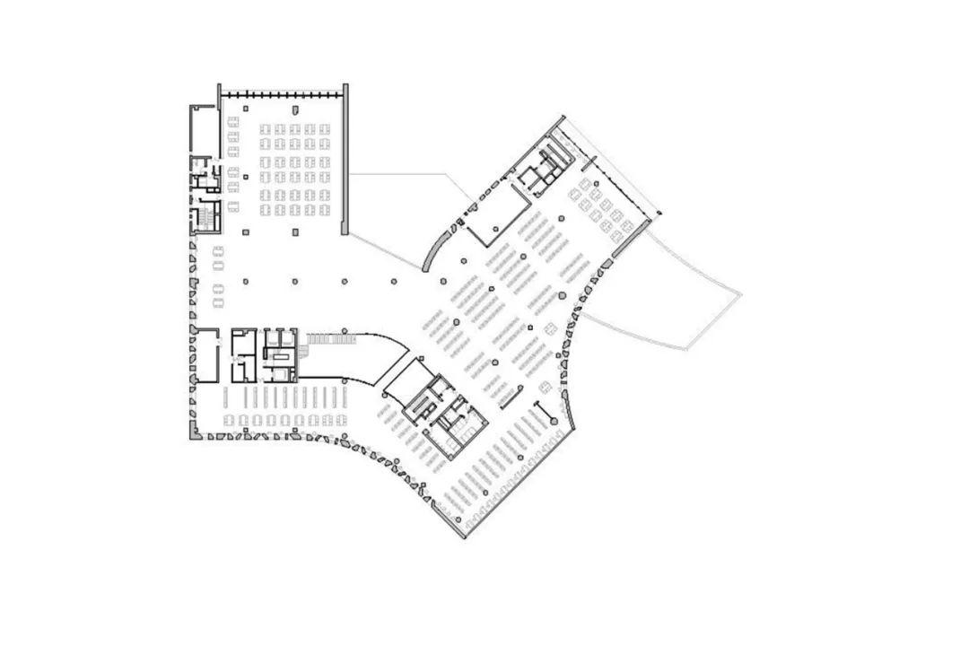
香港中文大學深圳校園的圖書館設計,將六層樓高的大面積樓板的機能量體,分開成兩個交錯的C字形長條量體。兩個各三層樓的長條型量體經由轉折和架空疊加,配合了校園的入口朝向與綠地軸線,保留了由中央綠地到山體的視線穿透性,也維繫了校園自然坡地的完整性。
建築以多個樓層挑高的書架天光大堂為空間中心,延展到線性量體底端,觀山框景的圖書閱覽室。
圖書館
室外的空間序列「庭/廊/台」配合了室內空間序列的「廳/堂/室」,彰顯了室內與室外的空間對話與平行雙重框景的空間張力。
設計利用內外牆體的過渡與木條和沖孔遮陽板的調控,將間接光源引入室內的閱覽空間。建築立面利用石材與青磚以退縮的外廊和開展的實牆,架起厚實而輕微曲折的上層鋁板量體,隨著觀者在校園的步換景移,呼應了傳統的屋瓦舉折與鳳凰展翅的大學意象。
設計團隊將兩萬平方公尺的功能面積分成上下兩組C字型的半圍合量體,每個量體分別有三層的樓面。下三層的量體對著校園空間展開,成為面向綠地大道的主要開口;上三層的長型量體對著背後的山體圍合展開,量體底端成為眺望山景的多層閱覽室。
在機能上,低層量體利用二樓入口的大台階串聯,結合地面層的24小時研習工作坊,使得圖書館的底部三樓成為以研習討論為主的彈性學習空間,上面的三個樓層則成為藏書與閱覽和研究為主的靜態空間。
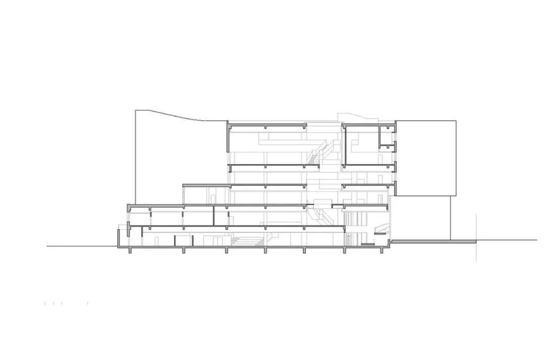
在六樓的量體內部安排了兩個平行而關鍵的空間穿透:第一個經由大階梯將視覺帶到背後的青山,另一個透過書架將變換的陽光帶入空間核心。第一個空間穿透是水平上仰的,設計利用上下兩個量體的交錯疊合空間,透過挑高的大廳入口和大台階的視覺引導,將讀者的視覺與流線從大門一路帶到三層的平台面對後山的綠意。這個穿透強化了量體圍合後院的形態關係,以及建築空間對自然山體的通透性。
設計在上下兩個空間量體重合的部分,隨著量體的曲折打開一個五層高的中庭天井,天井上方的輕微彎曲的採光天窗由校園軸線轉到南北向,透過穿孔鋁板的方位與角度變換過濾夏季的遮陰引入冬季的陽光,讓早晚與季節光影的變化成為書架與地板的痕跡。
天井側牆的挑空書架背面是善本藏書室與閱覽廳,讀者透過樓梯節節上升的引導和連橋的交錯,產生天窗、遮陰、書架、樓板、梯橋的多重空間層次,以及視覺與身體向上運動時和書架與書本的互動暗示。
圖書館作為校園空間的核心建築,擔負了校園形式象徵與活動聯繫的多重功能。作為校園綠地軸線序列公共建築的關鍵,以及中庭廣場方院連橋的轉折,圖書館建築面對了多面向的場地張力。
無論是圖書館與學生中心之間的荷花水池,或是圖書館與行政樓之間的草坡樹林,圖書館的單體設計配合了整體校園規劃理念,在整體基地上連接學院與與學生活動和中庭廣場,將大面積的建築拉成轉折而穿透的量體,保持了由綠地到山體的視線穿透性。
作品資訊
作品名稱:香港中文大學深圳校園圖書館
作品位置:中國深圳
建築設計:王維仁建築設計研究室
竣工:2017年
總樓地板面積:21801平方公尺
主持建築師:王維仁
專案團隊:Xie Jing,Wang Haoran,Su Chang,Tian Yi,Li Shuqing
本地建築師:CSCEC
攝影師:張超,Wade Zimmerman,Ji Xiang,王維仁建築設計研究室
客服
消息
收藏
下载
最近




































