查看完整案例

收藏

下载
Desain Rumah 70 m2 Dengan Mushola Semi Terbuka Plus Denah
- Hunian yang dibangun seluas 70 meter persegi ini memiliki desain yang minimalis. Tentunya akan membuat tampilan rumah nampak apik dan nyaman. Berikut ini kami akan memberikan ulasan mengenai
Desain Rumah 70 m2 Dengan Mushola Semi Terbuka Plus Denah
. Yuk mari simak!
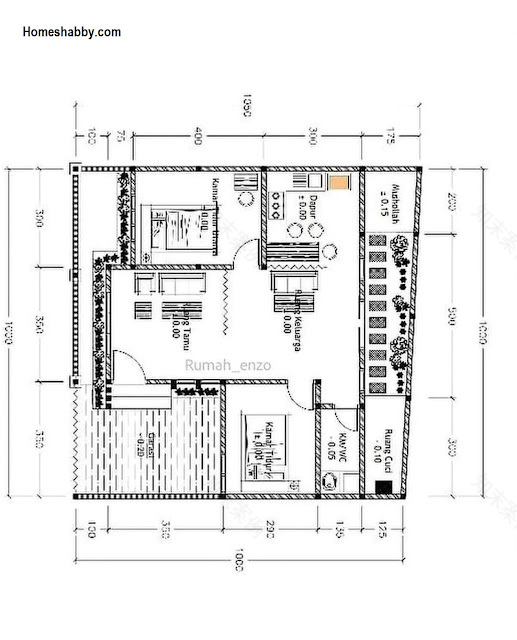
Denah
Denah pada rumah minimalis ini terdiri dari:
- garasi dan teras
- ruang tamu
- ruang keluarga
- 2 kamar tidur
- 1 kamar mandi
- dapur
- ruang cuci/laundry
- mushola
- taman belakang
Ruang tamu
Desain interior
bernuansa putih ini memberikan kesan ruangan yang luas dan nyaman. Apalagi dipadukan dengan warna yang contrast seperti warna abu-abu atau coklat, tentu membuat ruang tamu ini tampak apik dan eye-catching.
Ruang TV
Ruang TV atau ruang keluarga ini memiliki konsep lesehan. Yang mana tentunya membuat ruangan terasa lebih luas dan dapat memuat cukup banyak orang. Agar lebih nyaman, sebaiknya berikan karpet sebagai alas untuk tempat duduk di ruang keluarga ini.
Kamar tidur
Desain minimalis serta sederhana, membuat kamar tidur ini tampak apik. Dengan hanya menempatkan barang yang penting saja akan membuat kamar tidur kecil terasa luas dan nyaman.
Mushola
Mushola yang memiliki desain semi terbuka ini terletak di area belakang rumah. Dengan dibangun tanpa pintu, dan dekat dengan taman tentu membuat mushola terasa nyaman dan fresh.
Dapur
Dapur yang dibuat letter L ini nampak apik dan tentunya menghemat banyak tempat. Tak hanya itu, adanya kabinet serta rak penyimpanan membuat dapur tampil rapi. Pasang lampu tambahan pada area dapur ini agar dapat membuat kegiatan memasak lebih menyenangkan.
Ruang laundry
Begitupun area laundry atau ruang cuci yang terletak di area belakang rumah, tentu dapat di desain dengan baik. Dengan lokasinya yang dekat dengan taman dan juga di seberang mushola, ruang cuci ini tampak apik dengan nuansa warna putih dan juga dinding bertekstur.
Kamar mandi
Meskipun memiliki ruangan yang mungil, kamar mandi ini di desain dengan apik. Menggunakan toilet duduk, anda juga dapat membuat area shower untuk menghemat tempat pada kamar mandi memanjang ini.
Semoga artikel ini bermanfaat ya bagi anda yang sedang mencari inspirasi desain dan denah rumah.
Semoga anda dimudahkan rezekinya dalam membangun rumah idaman.
Jangan lupa dibagikan ke kerabat dan keluarga anda agar bermanfaat bagi yang lainnya.
客服
消息
收藏
下载
最近











