查看完整案例

收藏

下载
سفارت فرانسه در جاکارتا، اثر تیم طراحی Segond-Guyon ،اندونزی
مکان
: Jl. M.H. Thamrin No.10, Menteng, Kota Jakarta Pusat, Daerah Khusus Ibukota Jakarta 10350, Indonesia
سال
: 2014
آرشیتکت (معمار /معماران)
: Segond-Guyon Architectes
همکاران طراحی
: Atelier 6 International
طراحی منظر
: Frédéric Reynaud
مجری
: Vinci Grands Projets / NKE
طراحی سازه
: Atelier 6 Struktur
زیربنا پروژه
: 5600 مترمربع
عکس
: Jerome Ricolleau
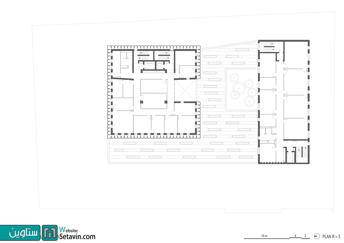
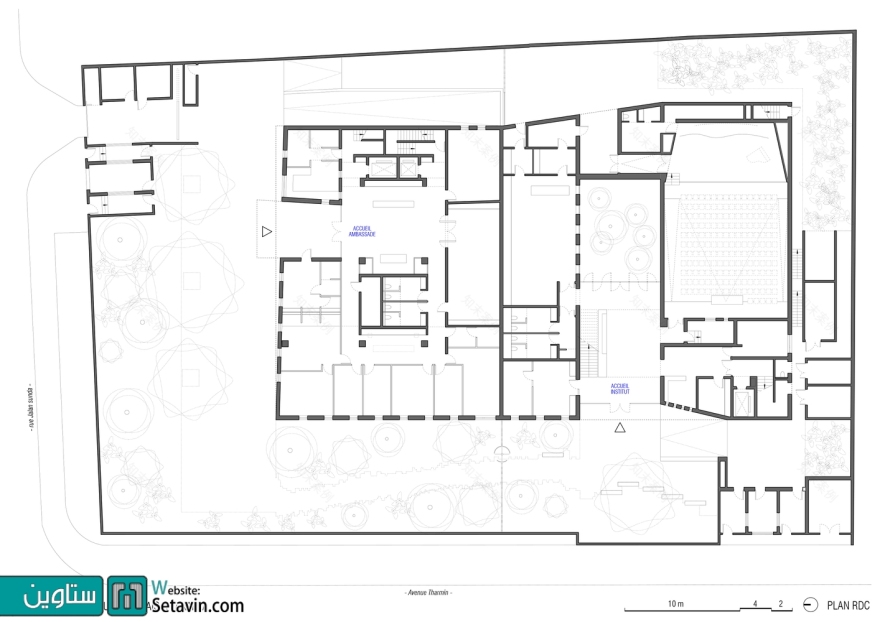
در این پست، نگاهی خواهیم داشت به سفارت فرانسه در جاکاتا ، اندونزی که در سال 1975 تاسیس شده است . ساختمان سفارت در خیابان Jalan Thamrin واقع شده است . این پروژه در واقع یک مرکز دیپلماتیک و فرهنگی فرانسوی در جاکارتا می باشد .
به گفته طراح پروژه Segond-Guyon، این پروژه به مثابه پردیس دانشگاهی به جهت عملکردی ، در میان بسیاری آسمان خراش ها و بزرگراه اصلی با وجود مقیاس کوچک آن به عنوان یک ساختمان پنج طبقه نسبت به زمینه و به واسطه حجم و پوسته آن، دارای سیگنالهای بسیاری جهت خودنمایی می باشد . به عبارتی این پروژه با هدف ارائه یک معماری خوانا و روشن طراحی و اجرا گردیده است .
ریزفضاهای داخلی پروژه از بخش های اقتصادی،نظامی ، فرهنگی و ... در پیرامون یک حیاط مرکزی شکل گرفته است . مسائلی چون ارتباط صحیح با شهر، عملکرد و ایمنی از موارد و اصول مهم در طراحی این بنا می باشد . حجم بنا با تضاد رنگی و جنس متریال و نیز تناسب احجام به دو بخش تقسیم شده است . بخش زیرین به که مثابه یک پدستال عمل می کند و به رنگ سیاه بوده و بخش فوقانی که سفید رنگ و دارای پوشش کامپوزیت آلومینیوم پانچ شده می باشد .
客服
消息
收藏
下载
最近































