查看完整案例

收藏

下载
Ugodna oaza za studente zagrebačkog Arhitektonskog fakulteta
Ugodna oaza za studente zagrebačkog Arhitektonskog fakulteta
Preuređenje prostorija 503 i 504
Studentskog zbora Arhitektonskog fakulteta u Zagrebu
završilo je svečanim otvorenjem u četvrtak, 29. rujna 2016.
Na studentskom natječaju za projekt preuređenja prošle su godine prvu nagradu osvojili studenti 3. godine
Rudolf Martinović, Mark Miščević i Mario Peko.
Studentski zbor se odlučio za realizaciju prvonagrađenog projekta te velikim trudom i zalaganjem svih članova, predvođenih predsjednicom zbora
Ivom Erić
i zamjenicom predsjednice
Leilom Nanuk,
osigurao sredstva i uvjete za izvedbu.
Uz upravu fakulteta i profesore te dekana prof.mr.sc.
Borisa Koružnjaka
koji su podržavali studentsku inicijativu od samog početka, najveća pomoć bile su velikodušne donacije sponzora koje su omogućile izvedbu novog poda, regala, kliznih stijena, rasvjete, bojanja zidova…
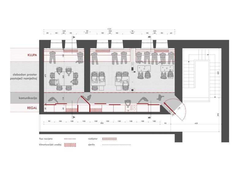
Autori projekta su kao
najveći nedostatak prijašnjeg stanja prepoznali skriveni i neprepoznatljivi glavni ulaz
u prostorije iz odbojnog, mračnog hodnika.
Stoga je osnovna ideja bila premjestiti ulaz na podest 5. kata i ostvariti vizualnu prepoznatljivost prostorija zbora.
Promjenom položaja glavnog ulaza, ostvaren je i novi prostorno-funkcionalni koncept samih prostorija.
Minimalnom građevinskom intervencijom prostorije su dobile novi karakter i doživjele istinsko preuređenje, a ne puko kozmetičko uljepšavanje.
Projekt je paradigmatski demonstrirao ovisnost funkcionalne organizacije i karaktera prostora o položaju i oblikovanju ulaza.
Tlocrtno dijagonalno postavljanje i predimenzioniranje ulaznih vrata proizašlo je dijelom iz funkcionalnih razloga, ali ujedno predstavlja i
oblikovni akcent
te osigurava vizualnu prepoznatljivost prostorija.
Također, ostvaren je i jedinstveni doživljaj ulaska u prostoriju i čitanja interijera iz ugla pod 45 stupnjeva.
Odmak od klasičnog ortogonalnog rastera ukazuje posjetitelju da je riječ o ulazu u “netipične” fakultetske prostorije
, odnosno o ulazu u neformalnu oazu namijenjenu radu, odmoru i druženju studenata.
Znajući da život prostora u njegovoj četvrtoj dimenziji – vremenu, nije moguće točno predvidjeti,
namjera projekta nije bila iluzorno definirati scenarije korištenja, niti striktno prejudicirati postavu namještaja, već isključivo jasno odrediti fiksne elemente
koji su smješteni uz uzdužne zidove afirmirajući time koncept središnjeg slobodnog prostora, koji se koristi u različitim scenarijima i za različite namjene, bez ograničenja.
Time se
očuvalo
“laissez-faire”
korištenje prostorija SZAF-a, jer je upravo njihova gotovo neograničena sloboda korištenja najveći šarm i razlog simpatija studenata.
Regal se proteže u cijeloj dužini zida na višoj strani prostorije, te je u njemu integrirana i čajna kuhinja.
Kinetički element kliznih stijena kojima se regal može zatvoriti, a koje se koriste kao ploče za crtanje i skiciranje ili kao izložbeni panoi ili površine za projekciju, promjenom položaja unose dinamiku u prostor.
Bjelina zidova i svjetloća poda vizualno su povećali prostorije i osigurali neutralni i nenametljivi karakter prostora.
S obzirom na veliki intenzitet korištenja i dosadašnja negativna iskustva u održavanju,
u interijeru su korišteni trajni i maksimalno izdržljivi materijali otporni na habanje,
poput perivih zidnih boja, poliuretanskog poda, perivih/zamjenjivih navlaka za namještaj…
Studentski zbor Arhitektonskog fakulteta i autori projekta zahvaljuju se svima koji su na bilo koji način sudjelovali u realizaciji projekta i tako studentima podarili “novi” prostor koji će im značajno uljepšati zahtjevne studentske dane.
Fotografije: Nikolina Kentrić, Mark Miščević
客服
消息
收藏
下载
最近

















