查看完整案例

收藏

下载
Le Corbusier
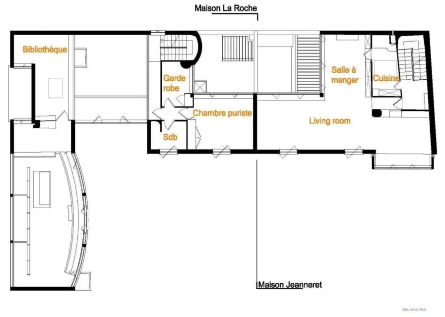
Planos de Villa La Roche-Jeanneret
Planos de Villa La Roche-Jeanneret Le Corbusier
En el proyecto de la Maison La Roche Jeanneret, Le Corbusier expone un nuevo formulario alterando el carácter compacto de sus composiciones, por otro compuesto de volúmenes con diferente generación inscriptos a un proyecto común.
Planos de Villa La Roche-Jeanneret, documentación original ©FLC
Planos de Villa La Roche-Jeanneret ©FLC Planos de Villa La Roche-Jeanneret
Planos de Villa La Roche-Jeanneret ©FLC
Las Casas La Roche-Jeanneret de Le Corbusier, cuestiones de restauración
El objetivo de este trabajo, realizado a petición de la Fundación Le Corbusier y desarrollado bajo la dirección científica de Bruno Reichlin, era elaborar un «modelo» de expediente, que se repetiría, con características particulares definidas según el caso, para cualquier edificio existente de Le Corbusier.
Debe ser considerado como un estudio preliminar, constantemente actualizable, para ser utilizado en cualquier proyecto futuro de restauración. Pierre-Antoine Gatier, arquitecto y director de Monumentos Históricos, explotó estas premisas cognitivas para un proyecto de restauración de la casa de La Roche, actualmente en curso. Gatier completó el marco de referencia solicitando a la Fundación Le Corbusier la ejecución de los ensayos estratigráficos requeridos, que fueron imposibles de realizar durante el tiempo de ejecución del expediente.
Su proyecto, nacido de una simple solicitud de actualización de la central eléctrica de la Villa La Roche a las normas actuales, se extendió posteriormente a todo el cuerpo arquitectónico de la casa, teniendo en cuenta diversos aspectos de la materialidad de la construcción y tratando de dar respuestas justas a las contradicciones reveladas.
Situación
El dossier de restauración proporciona un cuadro orgánico de la situación del edificio existente. Para ello se han utilizado todas las fuentes de archivo de la Fundación Le Corbusier, incluidos los archivos «actuales» recientes. Estos expedientes recogen todos los documentos relacionados con cualquier tipo de trabajo realizado en el edificio, desde que fue ocupado por la Fundación (en 1970) hasta hoy.
Los datos disponibles se integraron y verificaron mediante entrevistas a los testigos y a los responsables de las obras. Además del estudio y la cronología de los trabajos de restauración, entre los contenidos del «dossier de restauración» hay una parte técnica sobre la «materia» del edificio y su sistema constructivo, así como otra parte dedicada a los marcos de las ventanas.
Trabajos de restauración y principales modificaciones
La restauración más importante de las casas de La Roche-Jeanneret fue dirigida por Christian Gimonet, primer director de la Fundación Le Corbusier, en 1970. El objetivo era restaurar la casa de La Roche para abrirla al público, y renovar la Casa Jeanneret, para albergar las oficinas y los archivos de la Fundación. Muchas de las modificaciones realizadas como parte de este trabajo están tan bien envejecidas y camufladas que han causado malentendidos, incluso para algunos expertos. Por ejemplo, una foto del patio interior, publicada
en algunos libros, se indicó a veces como un ejemplo de la influencia del movimiento De Stijl en este edificio, debido a su composición de planos ortogonales. En efecto, este lugar fue modificado considerablemente por Gimonet en 1970, y eso abrió el paso entre los patios de las dos casas. En esa ocasión también añadió el dosel, que, en efecto, está ausente en las fotos históricas.
En esa época se llevaron a cabo un gran número de pequeñas modificaciones de distinta importancia. Entre ellas, se puede recordar la demolición de los baños y de algunos tabiques del segundo piso de la casa Jeanneret, para crear la sala de reuniones de la Fundación, ampliando una de las habitaciones de las hijas de Lotti Raaf.
Otras cuestiones a las que Gimonet tuvo que enfrentarse en 1970 fueron las normas de seguridad. De hecho, según las normas de la época, la altura de las barandillas de la sala era insuficiente para abrir la casa de La Roche al público. El asunto era difícil, porque cualquier transformación podía comprometer la autenticidad de la arquitectura de Le Corbusier. Afortunadamente, en esa ocasión, la Fundación pudo obtener una derogación de la autoridad competente. Esto no fue posible para el jardín del tejado, debido a la ausencia de barandillas en una parte del mismo. Así que, desde entonces, el tejado es inaccesible al público, y las personas que suben la escalera de la casa de La Roche hasta la última rampa se paran detrás de una puerta cerrada de cristal.
Una importante transformación tuvo lugar en 1975, cuando la Fundación requirió algo más de espacio para la sala de microfilms. Se abrió una puerta en la pared divisoria entre el salón Jeanneret (que ya se utilizaba como biblioteca) y el dormitorio de La Roche, que estaba ocupado por la Fundación. Esto tuvo un efecto perturbador en el principio del paseo arquitectónico, aplicado por Le Corbusier en este proyecto, que ahora estaba roto en su continuidad. En efecto, las personas que hoy en día siguen el «paseo», recorren el estrecho pasillo del tercer piso, forzados entre el muro y la balaustrada muy baja, encuentran una puerta cerrada, y no pueden entrar. Este espacio minimalista era importante en el concepto global del diseño porque representaba la conclusión del recorrido de la colección de La Roche, completamente dedicada sólo a las pinturas puristas de Le Corbusier y Ozenfant.
Otro problema relacionado con las normas de seguridad se produjo en 1984, cuando ya no fue posible evitar los problemas relacionados con el sistema eléctrico. En ese momento, debido al endurecimiento de las normas de seguridad, fue necesario rehacer completamente los circuitos. Por lo tanto, se decidió dejar los interruptores de latón originales (considerados como iconos de una estética «moderna») en su lugar, sin corriente eléctrica, evitándolos con nuevos cables e interruptores.
En 1986, fue necesario reemplazar el piso de linóleo original de la galería. Encontrar un material de las mismas características fue una tarea muy difícil. Tras una larga investigación, se encontró uno similar, pero con una ligera diferencia en el color. Lamentablemente, el proveedor no pudo producir una superficie única, monolítica y continua como la original. Por lo tanto, el pavimento se colocó en diferentes piezas, unidas con juntas finas. Un trozo del pavimento original, conservado en los archivos de la Fundación, es una prueba fiable del antiguo color. Incluso el accesorio bajo la rampa fue restaurado en ese período, bajo la supervisión de su diseñadora original Charlotte Perriand, quien era, en ese momento, miembro de la Fundación Le Corbusier.
La evidencia del trabajo de restauración está en la parte superior del accesorio, cubierta con el mismo material usado para el piso de la galería.
En cuanto a los marcos de las ventanas, a partir de la cronología de los trabajos realizados en el «dossier de restauración» podemos discernir qué ventanas son todavía originales y cuáles fueron modificadas o reemplazadas a lo largo del tiempo. Se realizó un estudio preciso de cada tipo de ventana y se identificaron los diferentes tipos de trabajos de restauración realizados. Se puede afirmar que, para las casas de La Roche - Jeanneret, nunca hubo un trabajo de restauración global en la totalidad de los marcos, sino sólo muchos trabajos individuales para grupos o tipos de ventanas. En general, las piezas de madera eran más frecuentemente objeto de restauración/reemplazo, debido a su fragilidad. Por ejemplo, en las ventanas cuadradas del segundo piso de la fachada principal, todas las piezas de madera fueron sustituidas por Jean - Louis Veret en 1981.
Las partes de acero de los marcos fueron restauradas, pero no reemplazadas. En ese tiempo, sin embargo, esos marcos de acero blando, típicos de la arquitectura moderna temprana, se producían comúnmente en Francia. Por consiguiente, si era necesario, era posible reemplazar algunas partes rotas por otras nuevas12.
El marco estaba demasiado dañado como para hacer un estudio con instrumentos de medición comunes, por lo que se utilizaron algunos moldes de arcilla para el edificio entre el ala de la galería y la entrada de la casa de La Roche. Su posición, protegida de las inclemencias del tiempo, ayudó a preservarlo y a mantener su originalidad. Entre los trabajos de restauración llevados a cabo en los otros tipos de ventanas, se puede tomar como ejemplo la ventana de cinta del comedor de La Roche. En ese marco se sustituyó la base de madera, así como el delgado marco de madera utilizado para bloquear el vidrio al marco principal de la ventana. Las demás piezas de madera y acero, según las fuentes, deben ser originales, excepto las cerraduras de las ventanas que fueron sustituidas por réplicas en el año 2000.
Las policromías
En cuanto a la policromía interior, muy pocos trabajos están realmente documentados. Aunque se encontraron muchos rastros de trabajos de repintado en los archivos, es imposible entender exactamente en qué superficie se han realizado. Para obtener una información más detallada sobre el estado original de la policromía en 1925, teniendo en cuenta incluso las primeras modificaciones realizadas por Le Corbusier en la galería en 1928 y 1936, es necesario examinar los resultados de los ensayos estratigráficos. Sin embargo, hay que precisar inmediatamente que estos ensayos están actualmente en curso y que es necesario realizar nuevas investigaciones y verificaciones de laboratorio. La primera serie de ensayos, en efecto, no ha dado más que un cuadro fragmentario e incompleto, por lo que hasta ahora la Fundación Le Corbusier no lo considera totalmente fiable. Antes de confirmar oficialmente los resultados, la Fundación está esperando el resultado de una serie adicional de ensayos que se llevarán a cabo en la casa de La Roche.
Las fachadas
En cuanto a las fachadas, en 1970 Gimonet tuvo que lidiar con el problema de elegir la tonalidad de color correcta. En ese tiempo,
las fachadas estaban muy sucias y arruinadas, por lo que era muy difícil entender qué capa era el color original, ya que la capa exterior no era la original. Los testimonios dieron diferentes versiones. Después de una larga investigación, decidió aplicar una capa de Polistrat, una pintura sintética hecha como una película fina adherida a la pared. El color de esta capa era blanco frío, y su superficie perfectamente lisa, así que, según la opinión común, respetuosa con la estética del purismo. Desafortunadamente, esta capa de Polistrat hacía que la pared no pudiera transpirar, y esto causaba serios y continuos daños a las policromías interiores, por lo que la Fundación se veía obligada a repintar los interiores muy a menudo. Esta capa sintética fue completamente removida sólo en 2001.
Lotti Raaf afirmó, en una carta de 1970
, que el mortero original estaba mezclado con polvo de piedra, y aparecía como una capa cruda, con un color cálido, completamente diferente del blanco frío y liso que existe hoy en día. Esto puede ser confirmado por los actuales ensayos estratigráficos
, que intentan descubrir, con muchas dificultades, algunos rastros residuales del mortero original (la eliminación de la capa Polistrat había eliminado todas las capas inferiores).
Cuestiones de restauración
Un proyecto de restauración debería afrontar varios problemas sin resolver del estado actual de la casa de La Roche. En primer lugar, es indispensable mirar los principios que Le Corbusier puso en su proyecto. En efecto, hoy en día, después de muchas modificaciones, algunos de estos principios parecen actualmente privados de su sentido original y olvidados. Como afirma Le Corbusier en la çuvre Complète, el principio fundamental aplicado en el diseño de la casa de La Roche fue el ‘paseo’ arquitectónico, que coincide en su mayor parte con el recorrido de la colección de arte. El colgado de arte y la disposición de las esculturas de 1926, en efecto, también fueron preparados por Le Corbusier, siguiendo reglas programáticas específicas y cuidando un reflexivo equilibrio entre las obras de arte y los espacios arquitectónicos. Así, un proyecto de restauración debe tener en cuenta el restablecimiento del principio del paseo, restaurando su último episodio, la habitación de La Roche, en su forma original. Una cuestión no resuelta, por desgracia, será la ausencia de la colección de arte de La Roche (hoy en día propiedad de la Kunstsammlung de Basilea), que influyó significativamente en el diseño de los espacios arquitectónicos.
Otro problema abierto es, en este contexto, el posible restablecimiento del mobiliario original. Si se pudieran encontrar algunas piezas originales en el mercado del comercio de antigüedades de principios del siglo XX, podría ser posible una nueva versión de algunos muebles particulares diseñados a medida por Le Corbusier a partir de los dibujos de detalle originales.
Otra cuestión se refiere a las policromías interiores. Para su restauración, no se debe simplemente restaurar la capa de pintura más antigua encontrada en los ensayos, sino también implementar una correcta interpretación de las reglas usadas por Le Corbusier en su elección. En efecto, como el propio Le Corbusier afirmó18 con respecto a la casa de La Roche, al principio procedió a menudo a muchos cambios de los colores interiores, probando empíricamente el efecto del color en la superficie de la pared.
El problema relacionado con esto que hay que enfrentar, hoy en día, es la elección del tipo de pintura adecuado. La pintura original utilizada en 1925 era una pintura al óleo y cola que permitía obtener un efecto de color mate y cálido, pero era extremadamente frágil. Su uso hoy en día es inapropiado; debido al intenso flujo de visitantes de la casa de La Roche, llevaría a frecuentes trabajos de repintado. Por lo tanto, será necesario definir cuidadosamente las opciones, en un proceso de decisión minucioso que involucrará, además de la Fundación Le Corbusier, a expertos y funcionarios del Ministerio de Cultura francés.
Una tarea particularmente difícil es la negociación con las autoridades competentes que podría permitir, como en el pasado, lograr una derogación de las cuestiones reglamentarias que impiden el acceso del público a la terraza del tejado. La altura de la balaustrada de la terraza, de hecho, no es adecuada según la actual legislación francesa. Además, una parte de la terraza, sobre el vestíbulo y el techo de la galería, carece completamente de barandillas y definitivamente nunca estará abierta al público. El arquitecto debe acordar una solución apropiada, teniendo en cuenta las diferentes instancias.
En conclusión, como se ha visto, el abanico de cuestiones a afrontar con el proyecto de restauración es bastante amplio. El estatuto de protección institucional de la casa de La Roche - Jeanneret compromete en su salvaguarda a un gran número de actores que controlarán cada una de las etapas de la restauración, compartiendo la responsabilidad decisoria. Así pues, surgen algunas buenas premisas para devolver a esta obra maestra temprana de Le Corbusier a una nueva vida.
客服
消息
收藏
下载
最近












