查看完整案例

收藏

下载
罗曼罗兰文化传播旗下媒体:《AD建筑装饰》杂志、AD建筑装饰微平台
“柳叶道”位于洛龙区泉舜商圈,项目上下两层面积350㎡,项目旨在通过空间与元素的巧妙融合,传递纯粹的日式美学与用餐体验。
Liuye Lane is situated in the Quanchun Business District, Luolong District. The two-story project covers 350㎡ and seeks to deliver an authentic Japanese aesthetic and dining experience through the harmonious blend of space and elements.
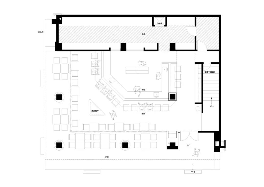
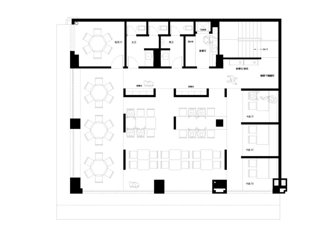
△平面图
△平面图
ABOUT 关于设计
——
建筑外观采用简约的几何形态,以素雅的浅色调为主,搭配利落的线条,勾勒出简洁而大气的轮廓。
The building’s exterior features minimalist geometric forms, dominated by understated light hues and accentuated with clean lines, creating a sleek yet imposing silhouette.▼外观,exterior
店内空间规划注重流动性与私密性的平衡。入口处设置小型过渡空间,引导顾客自然进入用餐区域。
The store’s interior layout balances openness and privacy.
An entry transitional space guides guests smoothly into the dining area.
▼入口,exterior
开放式吧台位于正中,师傅现场料理,增添互动性与观赏性。
An open bar counter sits centrally, where chefs prepare dishes live, enhancing interaction and visual appeal.▼吧台,Bar counter
散座分布在靠近窗户及开放区域,光线充足、视野开阔;
Scattered seating is arranged near windows and open areas, offering ample light and broad views.▼散座,Loose seating
卡座以木质格栅适度分隔,营造相对独立私密氛围;
Wooden lattice partitions create semi-private booths with cozy seclusion.▼卡座,Booths
包间则为团体聚会提供安静空间。大量选用木饰面,从桌椅到墙面木材温润质感带来自然亲和感,契合日式崇尚自然理念。
Private rooms offer quiet spaces for group gatherings, featuring extensive wood finishes that evoke natural warmth—a nod to Japanese aesthetics.▼包间,Private rooms
地面深色地砖,增加稳重感与空间层次。顶部运用肌理涂料,在灯光映射下营造温馨氛围。
Dark floor tiles add depth and stability, while textured ceiling paint creates a warm ambiance under lighting.▼顶部与底部空间,upper and bottom space
整体色彩以木色的自然色调为基础,搭配米白、浅灰等中性色,营造出简洁、宁静且雅致的氛围。局部以绿植点缀,为空间注入生机活力,同时呼应自然主题。
The palette features natural wood tones as a base, complemented by neutral beiges and grays for a serene, refined ambiance. Accents of greenery add vitality while echoing the natural theme.
▼空间,space
当夜幕悄然降临,建筑与背后的高楼形成鲜明对比。柔和的灯光勾勒出它的轮廓,在这里,美食与美景相伴,为人们带来别样的体验。
As night falls quietly, the building stands in stark contrast to the towering structures behind it. Soft lighting outlines its silhouette. Here, delicious food and beautiful scenery go hand in hand, offering people a unique experience.
ABOUT 项目信息
——
室内设计:煦石室内建筑设计咨询
項目名稱:洛阳•柳叶道•泉舜店
項目地点:河南洛阳
设计面积:350sqm
ABOUT 设计团队
——
煦石室内建筑设计咨询成立于2008年,公司创始人及主要合伙人均在EDGVINYL Group等知名设计公司担任设计总监或其他重要职位。是一个专注于室内设计,建筑概念,陈设软装,品牌设计的专业机构。在别墅大宅,酒店会所,商业空间及地产领域,我们拥有完整的专业设计团队及施工团队,为客户提供从概念设计到最终实施的全方位服务。
“Aesthetics. Creation. Innovation. Keep going, and drinking,and designing...”
客服
消息
收藏
下载
最近

























